EasyManua.ls Logo

Compool Cp3800 - Low Voltage Wiring; Power Center Circuit Board

Compool Cp3800
45 pages
Print Icon
To Next Page IconTo Next Page
To Next Page IconTo Next Page
To Previous Page IconTo Previous Page
To Previous Page IconTo Previous Page
Loading...
12
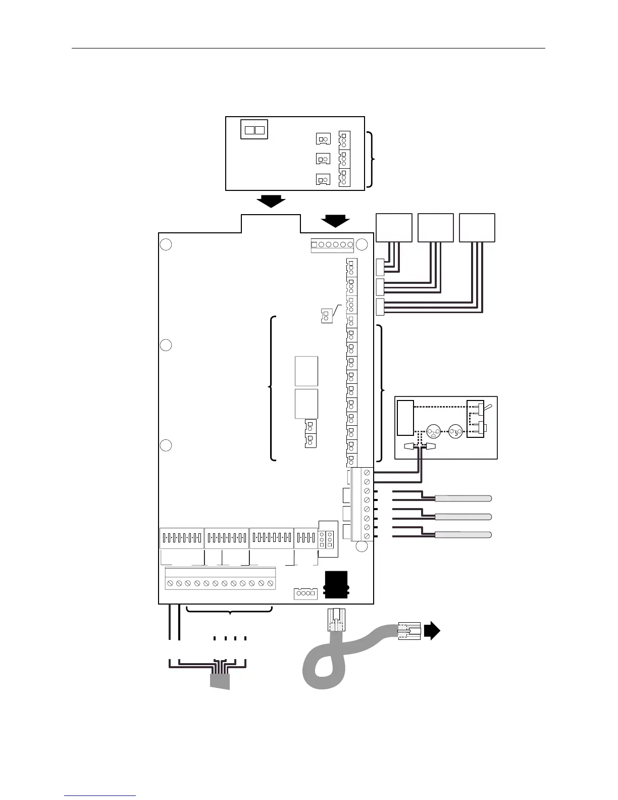
Compool Cp3800
Low Voltage Wiring
Power Center Circuit Board
O
N
WATER SENSR
SELECT 4 CIRCUITS
Switch
Switch
Switch
Switch
CNTRL
AS VALVE
PRESSURE
THERSTAT
LIIT
N
REEE SENSR
SLAR SENSR
VLV2
VLV3
VLV1
N
N
N
N
V
COMPOOL 11040A
PART# MOD-VLV3
VLV1
WITH
VLV2
VLV2
WITH
VLV3
944-1063
GND
HLMP
HBST
SPA
FLTR
REM1
REM2
REM3
REM4
REM5
REM6
REM7
TRANSRER
CNNECTINS
1810 24
PART# PC-LX3800COMPOOL 11063
2SPD
FLTR
AUX1
AUX2
AUX3
AUX4
AUX5
AUX6
AUX7
AUX
VLV
CNTRL
FREEZE I/L SYST SPEC FUNCT HI SPD
SPA
POOL
HEAT
SPA
CLNR
FDEL
SOLR
HTPMP
MANHT
WFAL
FLRCL
DIM3
DIM4
A7BW
A730
SPA
HTR
AUX1
SOLR
PHONE CONTROLS
DIMMER 3DIMMER 4
FLRCL
CONTROL
JUMPERS
COMBINED VALVES
PHONE
COM PORT
SOLR SENSFRZ SENS
GRN
RED
GRN
RED
GRN
RED
HTR
INT
VLV
RET
VLV
AUX
VLV
SPA
FLTR
AUX1
AUX2
AUX3
AUX4
AUX5
AUX6
AUX7
EHTR
SOL
PUMP
WAT SENS
INTAKE
VALVE
ACTUATOR
RETURN
VALVE
ACTUATOR
AUX
VALVE
ACTUATOR
AUXILIARY VALVE
ACTUATORS
CAUTION: DO NOT SHORT PINS OF RELAY SOCKETS
RELAY CONNECTIONS
GRN
RED
GRN
RED
GRN
RED
BLU
BLU
BLK
ORG
RED
YEL
GRN
BLU
to SPA-SIDE REMOTE
to CONTROL
PANEL
HEATER
VALVE MODULE
(optional)

Table of Contents

Related product manuals