EasyManua.ls Logo

Consort PLE050 - Installation

Consort PLE050
9 pages
Print Icon
To Next Page IconTo Next Page
To Next Page IconTo Next Page
To Previous Page IconTo Previous Page
To Previous Page IconTo Previous Page
Loading...
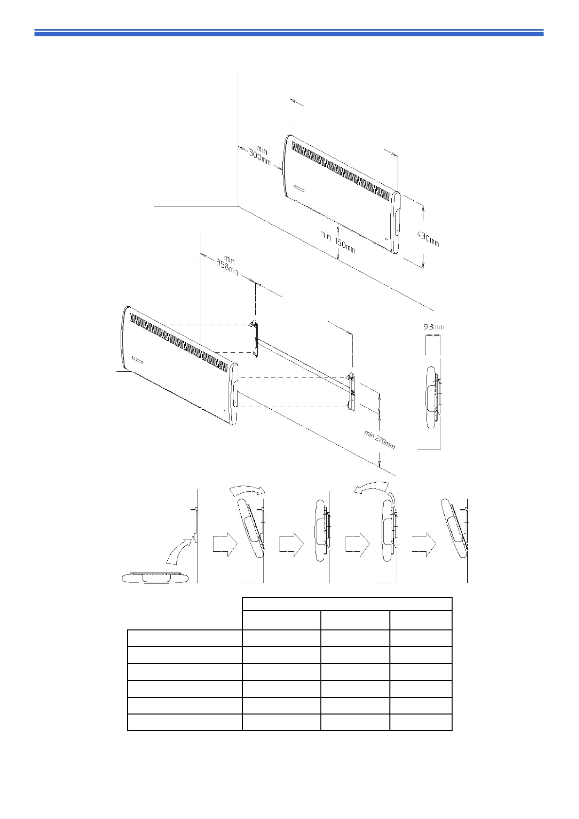
3
195mm
A
B
Installation
MILLIMETRES
WATTS A B
PLE050 500 442 303
PLE075 750 442 303
PLE100 1000 614 477
PLE125 1250 720 582
PLE150 1500 720 582
PLE200/SS 2000 852 713
Fig. 1
Note: The heater MUST be fully secured in the vertical position before being switched on.
It must be ‘clicked’ into the locking tabs. See section 15 for more mounting information.

Related product manuals