EasyManua.ls Logo

Cornelius Linus 40 - Page 10

Cornelius Linus 40
21 pages
Print Icon
To Next Page IconTo Next Page
To Next Page IconTo Next Page
To Previous Page IconTo Previous Page
To Previous Page IconTo Previous Page
Loading...
Linus
25
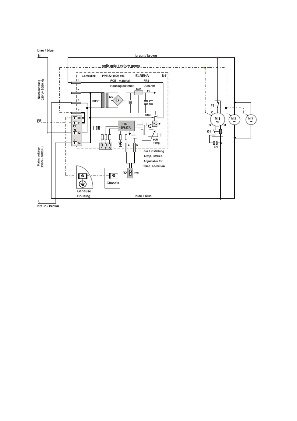
13.2 Circuit Diagram for Linus 60 with electrical Controller
C1 Starting Capacitor N1 Temperature Controller
F1 Thermal Protection R2 Temperature Probe
K1 Starting Relay 11; 12; 13 Mains Voltage Input
M1 Compressor 6; 8 Compressor, Fan
M2 Fan Motor 4; 5 Temperature Probe
M3 Fan Motor

Related product manuals