EasyManua.ls Logo

Craftsman 50168 - Exploded View and Parts List; Troubleshooting

Craftsman 50168
8 pages
Print Icon
To Next Page IconTo Next Page
To Next Page IconTo Next Page
To Previous Page IconTo Previous Page
To Previous Page IconTo Previous Page
Loading...
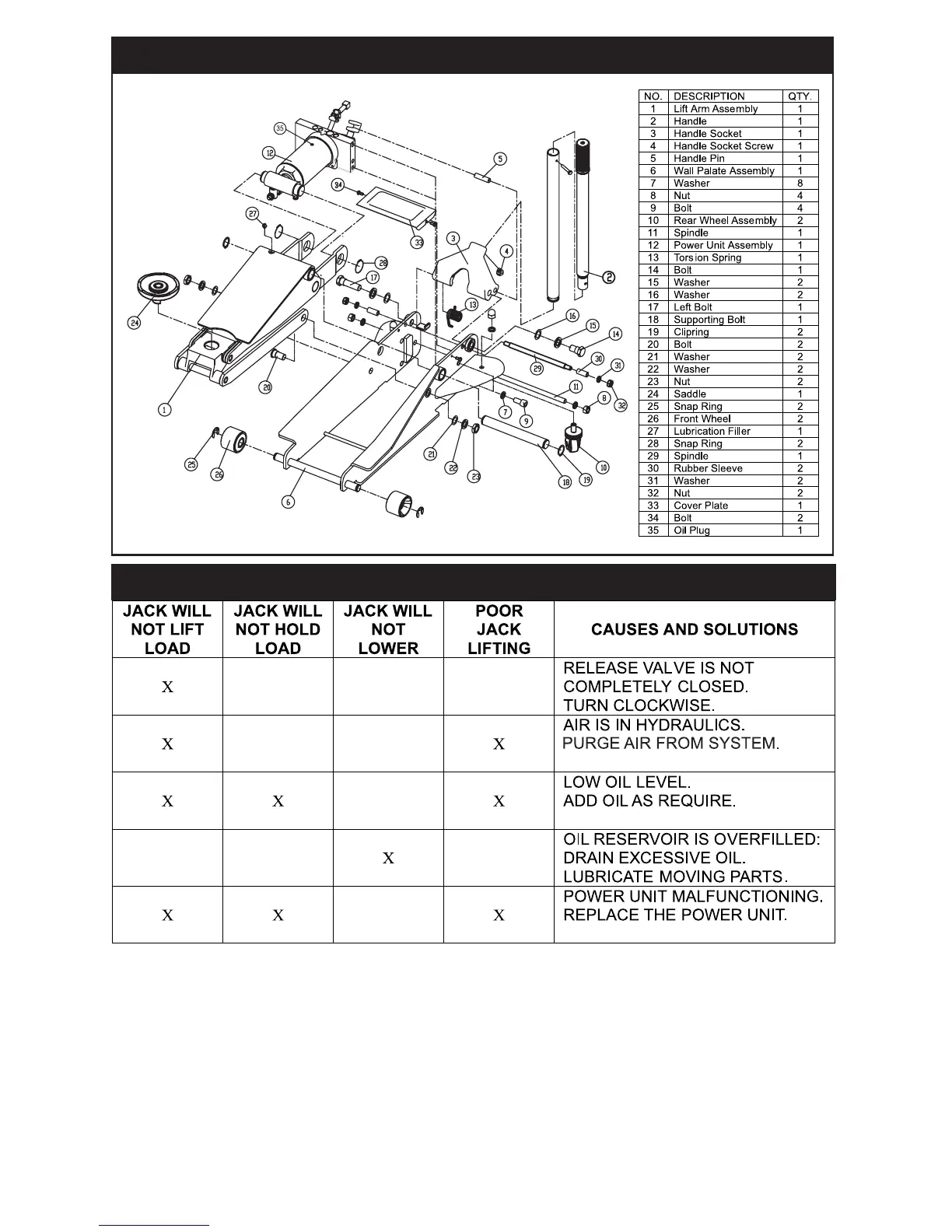
EXPLODED VIEW AND PARTS LIST
3
FOR AFTER SALE PARTS AND SERVICE:
Call 8 AM - 5 PM PST., Monday - Friday
1-888-448-6746
TROUBLESHOOTING

Related product manuals