EasyManua.ls Logo

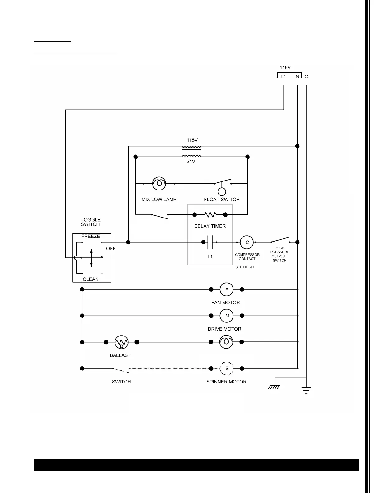
Crathco 3311 - 115 V Water-Cooled Model Ladder Diagram

Crathco 3311
40 pages
Print Icon
To Next Page IconTo Next Page
To Next Page IconTo Next Page
To Previous Page IconTo Previous Page
To Previous Page IconTo Previous Page
Loading...
Model 3311 Beverage Freezer Crathco
®
33
Ladder Diagram (continued)
Model 3311
115V Water-Cooled Model
MICRO SWITCH
FLUORESCENT LAMP