EasyManua.ls Logo

Crest Audio X-VCA - Page 44

Crest Audio X-VCA
142 pages
Print Icon
To Next Page IconTo Next Page
To Next Page IconTo Next Page
To Previous Page IconTo Previous Page
To Previous Page IconTo Previous Page
Loading...
p. 44
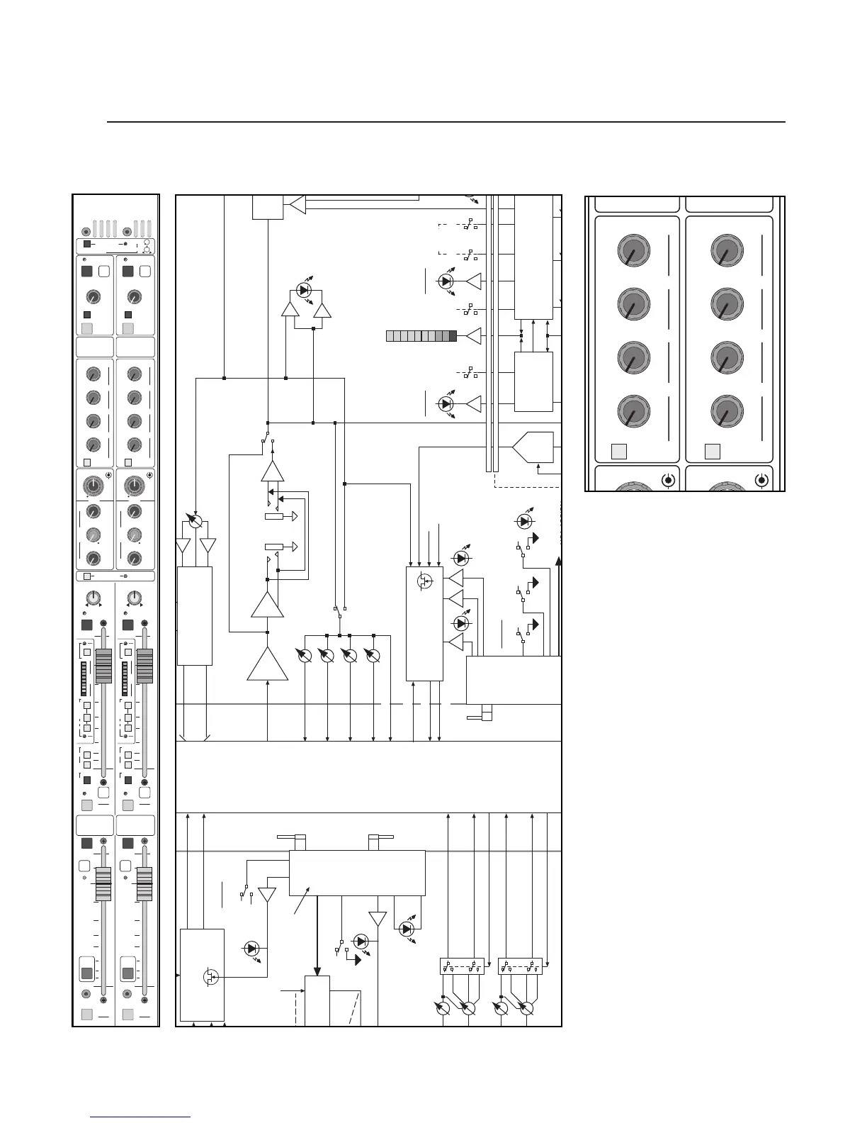
group module
3
X-VCA owner’s manual
module panel
MATRIX
SENDS
1
2
3
4
1
2
3
4
MATRIX
SENDS
MTX SENDS
POST GRP 1
MTX SENDS
POST GRP 2
40
20
10
0
6
3
30
+
40
20
10
0
6
3
30
+
40
20
10
0
6
3
30
+
40
20
10
0
6
3
30
+
40
20
10
0
6
3
30
+
40
20
10
0
6
3
30
+
40
20
10
0
6
3
30
+
40
20
10
0
6
3
30
+
GATE GATE
O
THR
1
:
2
O
THR
1
:
2
30
25
40
30
25
40
block diagram
E
V
A
N
E
V
A
N
GC
VC
A
PK
SIG
SOLO
VCA
ASSIGN
MUTE
SOLO LEFT
SOLO RIGHT
SOLO CONTROL
& SWITCHING
INPUT CHAN
MICRO
INTERFACE
CARD
VCA,
MUTE
AND
SOLO
CTRL
A
ASSIGN
A
TCHES
A
MASTER
U
SES 1-8
SENDS
H
RU 4
SAFE
PREVIEW
1 OF 4
CIRCUITS
FROM
PREV
MODULE
TO
NEXT
MODULE
1-2 LEV/PAN CTRL
AUX 1
AUX 2
3-4 LEV/PAN CTRL
AUX 3
AUX 4
RIBBON
CABLE
INTER-
CONNECT
MIX AMP
GROUP INSERT
SEND RTN
GRP
MIX
GROUP PRE
GROUP
INSERT
ON
POST
GROUP
MATRIX
SENDS
M1
M2
M3
M4
SOLO CONTROL
& SWITCHING
GROUP
SOLO
ASSIGN
AUX
SOLO
GROUP PRE
AUX POST
GROUP
TO
INPUT
MICRO
CARDS
TO GROUP FADER
VCA ASSIGN
GROUP
POST
GATE
ON
COMP
ON
GROUP
ATTENUATION
METER
VOX PERC
AUTO
1
2
3
5
7
9
12
15
18
21
THRESH
ON
SOFT
KNEE
PFL
SLAVE
VCA
COMPRESSOR CONTR
O
EXPANDER
CONTROL
THRESH
ON
GROUP
PA N
GROUP
BUS ASSIGN
SWITCHES
(1
OF
8
SHOWN)
TO EXT MTX
AUX ODD/EVEN
STEREO PAIR
AUX PRE
SOLO LEFT
SOLO RIGHT
AFL MODE
SOLO
SAFE
PREVIEW
AUX 1
2
STEREO PAIR
INPUT SENDS
LEV
PAN
OUTPUT
LEV
MATRIX
SENDS
1
2
3
4
SOLO
TALK
TO
MUTE
SAFE
PREVIEW
OUTPUT
LEV
1
2
3
4
MATRIX
SENDS
AUX
2
TALK
TO
MUTE
AUX
1
MTX SENDS
POST GRP 1
MTX SENDS
POST GRP 2
MUTE
VCA
1
MUTE
VCA
2
40
15
10
0
10
5
20
+
40
15
10
0
10
5
20
+
40
20
10
0
6
3
30
+
40
20
10
0
6
3
30
+
40
20
10
0
6
3
30
+
40
20
10
0
6
3
30
+
40
20
10
0
6
3
30
+
40
20
10
0
6
3
30
+
40
20
10
0
6
3
30
+
40
20
10
0
6
3
30
+
5
10
0
5
10
20
30
15
50
40
UNITY
VCA 1
SOLO
ASSIGN
EDIT
VCA 1
ASSIGN
5
10
0
5
10
20
30
15
50
40
UNITY
VCA 2
SOLO
ASSIGN
EDIT
VCA 2
ASSIGN
MUTE
SAFE
PREVIEW
GRP
ATT
(
DB
)
VOX
PERC
AUTO
SOFT
KNEE
1
2
3
5
7
9
12
15
18
21
COMP
GATE
LR
=
ON
M
L
-
R
GROUP
ASSIGN
GROUP
INSERT
GRP DYN
PK
SIG
GRP
1
MUTE
SAFE
PREVIEW
LR
GROUP
PAN
=
GRP
2
GROUP
PAN
VOX
PERC
AUTO
SOFT
KNEE
1
2
3
5
7
9
12
15
18
21
COMP
GATE
GRP DYN
THR
ON
THR
ON
THR
ON
THR
ON
SOLO
VCA
ASSIGN
SOLO
VCA
ASSIGN
5
10
0
5
10
20
30
15
50
40
5
10
0
5
10
20
30
15
50
40
GRP
ATT
(
DB
)
ON
M
L
-
R
GROUP
ASSIGN
GROUP
INSERT
PK
SIG
3
16
12
2
020
6
THR
(
DBU
)
STEREO
LINK
GATE
C
O
M
P
RATIO
(
N
:
1
)
GAIN
(
DB
)
10
+
35
40
15
15
0
25
1
2
GATE
1
4
20
10
2
RATIO
THR
1
:
5
1
:
2
3
16
12
2
020
6
THR
(
DBU
)
C
O
M
P
RATIO
(
N
:
1
)
GAIN
(
DB
)
10
+
35
40
15
15
0
25
COMP GATE
RATIO
THR
1
:
11
:
5
1
:
2
1
:
1
1
4
20
10
2
50
60
30
20
25
40
50
60
30
20
25
40
1
2

Other manuals for Crest Audio X-VCA

Related product manuals