EasyManua.ls Logo

Crestron PAC2M - Page 17

Crestron PAC2M
32 pages
Print Icon
To Next Page IconTo Next Page
To Next Page IconTo Next Page
To Previous Page IconTo Previous Page
To Previous Page IconTo Previous Page
Loading...
Crestron PAC2M Professional Automation Mini Computer
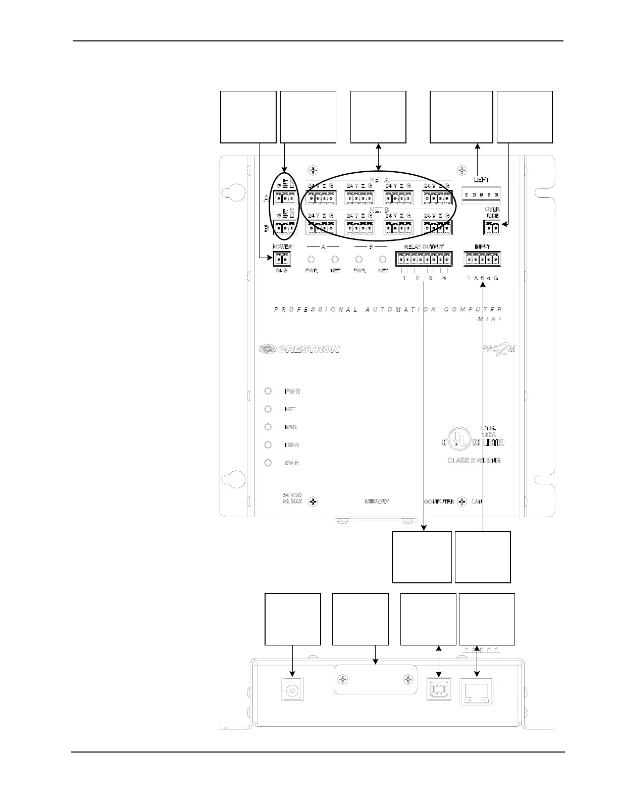
Hardware Connections for the PAC2M
G/INT/EXT:
24 VDC
TO HUB FROM
INTERNAL OR
EXTERNAL
POWER
POWER:
24 VDC
INPUT,
PARALLELED
WITH 24 VDC
JACK
CRESNET:
TO ANY
CRESNET
NETWORK
DEVICE
LEFT:
TO CLX-(or CLXI-)
SERIES
LIGHTING
CONTROL
MODULE
OVERRIDE:
FROM
EXTERNAL
CONTACT
CLOSURE
RELAY OUTPUT
(1 - 4):
TO
CONTROLLABLE
DEVICES
INPUT (1 - 4):
FROM DEVICE
OUTPUTS
COMPUTER:
TO USB PORT
ON PC
LAN:
10/100 BASE-T
ETHERNET TO
LAN OR WEB
24 VDC
2A MAX:
AC POWER
PACK
(24 VDC, 2A)
MEMORY:
FOR OPTIONAL
MMC
COMPATIBLE
MEMORY
CARD
-CONTACT CLOSURES
-RELAY CLOSURES
Operations Guide – DOC. 6507 Professional Automation Mini Computer: PAC2M 13

Other manuals for Crestron PAC2M