EasyManua.ls Logo

Cristec CPS3 12V/16A - Cps3 12 V;40 A, 24 V;20 A, 12 V;60 A, 24 V;30 A, 48 V;15 A

Cristec CPS3 12V/16A
Print Icon
To Next Page IconTo Next Page
To Next Page IconTo Next Page
To Previous Page IconTo Previous Page
To Previous Page IconTo Previous Page
Loading...
CPS3-1M-2M-DED
13
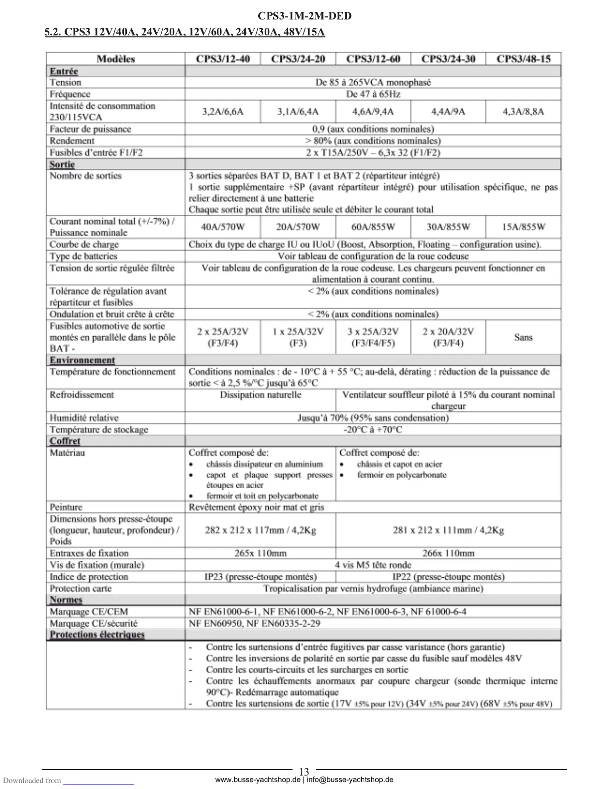
5.2. CPS3 12V/40A, 24V/20A, 12V/60A, 24V/30A, 48V/15A
www.busse-yachtshop.de | info@busse-yachtshop.de

Table of Contents

Related product manuals