EasyManua.ls Logo

Crown FM100 - Page 93

Crown FM100
111 pages
Print Icon
To Next Page IconTo Next Page
To Next Page IconTo Next Page
To Previous Page IconTo Previous Page
To Previous Page IconTo Previous Page
Loading...
DWG. NO.
REV.
A
201069-SCH
H
G
F
E
D
C
B
A
1 2 3 4 5 6 7 8 9 10 11 12
H
G
F
E
D
C
B
A
1 2 3 4 5 6 8 9 10 11 12
E . C . N. REV DESCRIPTION
APPROVALS
PECHK CMDATE DWN
REVISION HISTORY
THESE DRAWINGS AND SPECIFICATIONS ARE THE
PROPERTY OF INTERNATIONAL RADIO CORP.
AND SHALL NOT BE REPRODUCED, COPIED OR USED AS
THE BASIS FOR THE MANUFACTURE OR SALE OF APPARATUS OR
DEVICES WITHOUT PERMISSION.
SHEET
OF
SCALE : NONE PROJ NO.FILENAME:
DWG . NO .
REV
A
201232-SCH
TITLE:
UNCONTROLLED
UNLESS OTHERWISE MARKED IN RED INK BY CM AS A
CONTROLLED COPY, COPIES OF THESE DOCUMENTS
INCLUDING ASSOCIATED ELECTRONIC REPRODUCTIONS
ARE FOR REFERENCE ONLY.
APPROVALS
DWN
CHK
CM
PE
DISTRIBUTION
K
SIZE
C
C_L_SHT1_A.DOT REV. A
Error : logo3A.jpg file not found.
INTERNATIONAL RADIO AND ELECTRONICS CORP.
25166 LEER DRIVE ELKHART, IN. 46514
574-262-8900
WWW.IREC1.COM
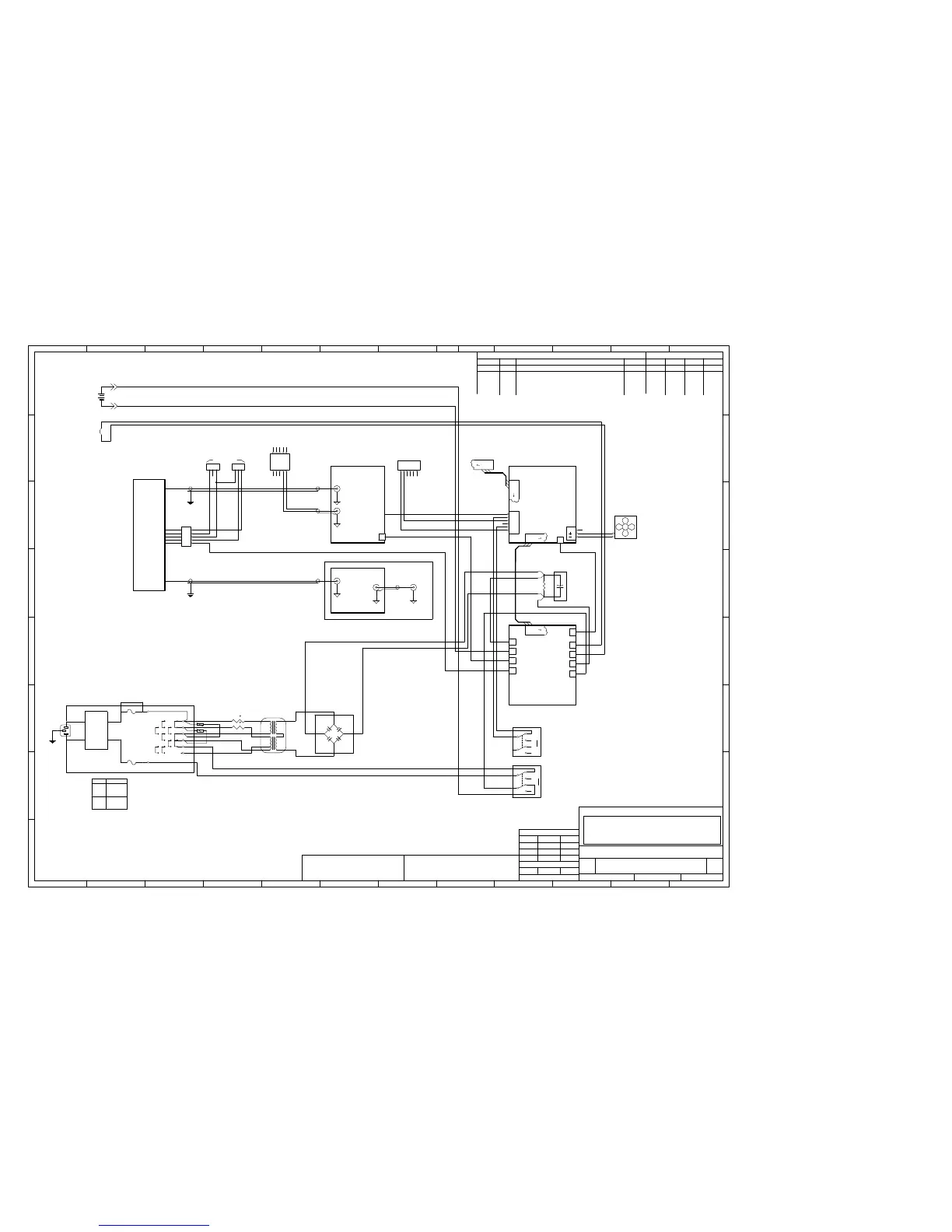
IREC
M1HD-S RF POWER AMP
1
2
3
4
5
PL1005
PL1001
BNC
TO
MOTHER BOARD
FAN
RF OUT
PA FAN
RF IN
RF DRIVER
VOLTAGE REGULATOR
x
x
x
HD503
20 C0ND. RIBBONCBL
1
2
3
HD703
x
x
x
HD702
20 C0ND. RIBBONCBL
1
2
3
4
5
6
HD701
HEADER 6
1
2
3
4
5
6
HD502
x
x
x
HD4
6 C0ND. RIBBONCBL
1
P1
+UNREG
1
P805
1
P804
1
P808
PA DC OUT
1
P807
GND
1
2
3
PL1002
1
2
3
PL1004
x
x
x
HD1
6 C0ND. RIBBONCBL
RF IN
RF OUT
LP FILTER
RF OUT
RF IN
RF OUT
POWER REGULATOR
S1002
S1002
CARRIER
POWER
TO
MOTHER BOARD
TO
MOTHER BOARD
DRVR V+
12
34
56
78
910
HD505
ON
MOTHER BOARD
TEMP SENSE
SCH, FM CHASSIS INTERCONNECT
533
DW 04-04-05
PRODUCTION RELEASEA 04-04-05 DW
120V
200V
6.3A
VOLTAGE FUSE SIZE
*
120/240 VAC
NOT USED
SEE CHART
50/60HZ
NEUTRAL
HOT
FILTER
*
A
B
C
D
E
F
G
H
t
NTC
t
NTC
T1001
1
P801
R1003
2K 3W
C1001
15,000UF/110V
+12V
-12V
1
J4
1
Z3-2
DRVR V+
CB1001
CIRCUIT BREAKER
1
P803
BATTERY IN
1
P802
ON
OFF
ON
OFF
220V
240V
3A
220
100
240
120
MOV
MOV
SLO-BLO FOR ALL APPLICATIONS
1
P806
GND
+
1
2
3
4
D1001
BRIDGE
DW 04-04-05
DP 04-04-05
DP
CORCOM 6EDL4CM

Related product manuals