EasyManua.ls Logo

Crystal Mountain Crystal Pro - Electrical Wiring Diagram

Crystal Mountain Crystal Pro
24 pages
Print Icon
To Next Page IconTo Next Page
To Next Page IconTo Next Page
To Previous Page IconTo Previous Page
To Previous Page IconTo Previous Page
Loading...
22
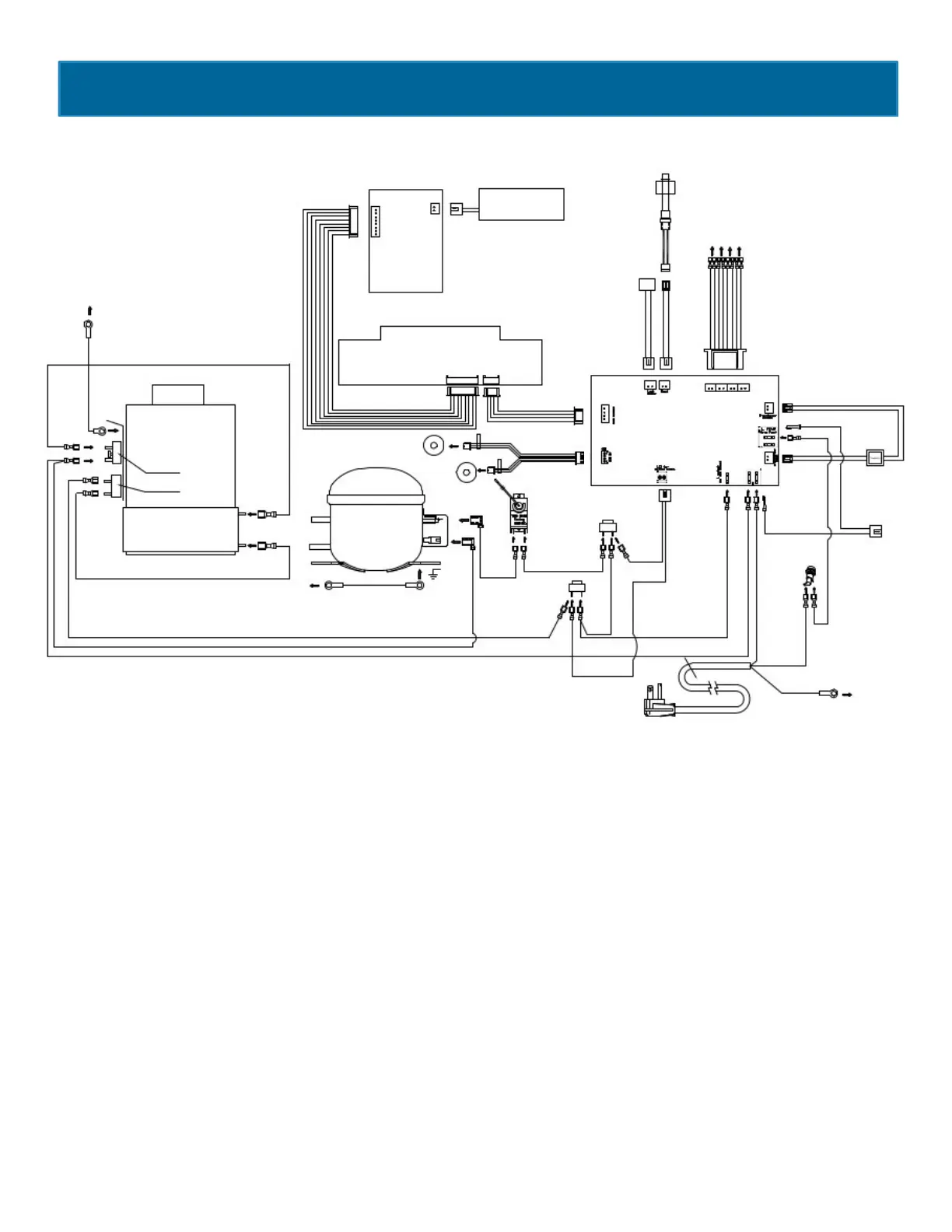
Electric Diagram
Link to Mid Shelf
PCB UV Display
Logo Lamp
PCB, Push Button Module
Leak Detection Line
Electric Ball
Float Valve
Leak Sensor
Float
Solenoid
Fuse
Link with Top Shelf
Power Cord
Cold Control
Cold Switch
Compressor
Hot Switch
Hot Tank
Limiter
Thermostat
N
L
L
UV Module
UV Module
To Relay
To Overload
Heater
Main PCBA
Transformer
Input
Output
Hot/Cold Switch LED
LED UV
Pushbutton
L Input fromFuse
W/W Link w/ Cook Solenoid
B/B Link w/ Cold Solenoid
R/R Link w/ Hot Solenoid
R/B Link w/ Inlet Solenoid

Other manuals for Crystal Mountain Crystal Pro

Related product manuals