EasyManua.ls Logo

Cub Cadet Yanmar Lx490 - Tractor - Front Axle & Transmission; Front Axle Components

Cub Cadet Yanmar Lx490
230 pages
Print Icon
To Next Page IconTo Next Page
To Next Page IconTo Next Page
To Previous Page IconTo Previous Page
To Previous Page IconTo Previous Page
Loading...
Lx490Lx Series
54
Copyright 2011 Cub Cadet Yanmar LLC
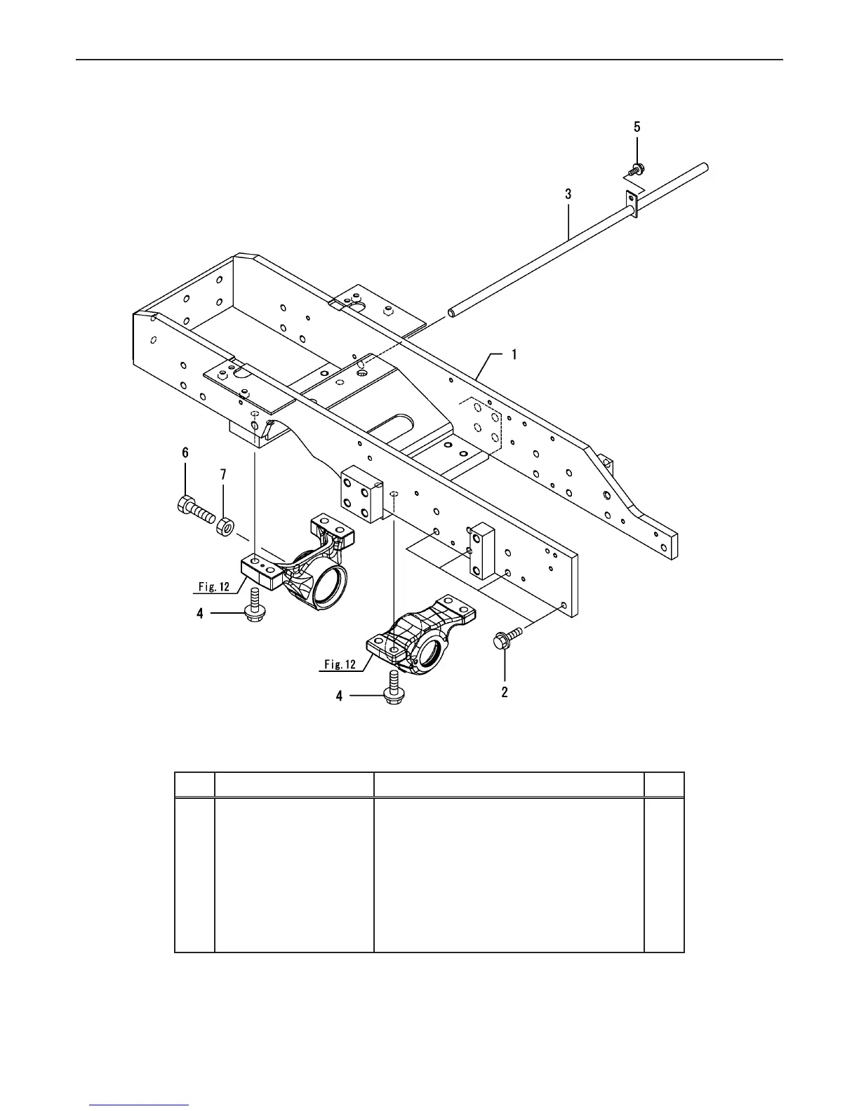
Fig 11. Front Axle Bracket
Ref.
Part Number Description Qty
1 C Y-1A 82 50 -1110 0 BRACKET ASSY, F AXLE 1
2 CY-1A8160-11520 BOLT, M12X34 14
3 CY-1A8275-17450 GUARD, PST CYLINDER 1
4 CY-1A6680-85980 BOLT 14*45 8
5 CY-26106-080162 BOLT M 8X 16 PLATED 1
6 CY-26116-160604 BOLT M16X 60 PLATED 1
7 CY-26716-160002 NUT M16 1
Fig.11. FRONT AXLE BRACKET
0CNP5-G37900
0CNP5-G37900
11. FRONT AXLE BRACKET
(F)=
(E)=
(D)=
(C)=LX490
(B)=LX450
(A)=LX410
LEV.REF. PARTS NO. DESCRIPTION
RI
Q'TY
(F)(D)(C)(B)(A) (E)
BRACKET ASSY, F AXLE1A8250-1110011 111
BOLT, M12X341A8160-1152012 141414
GUARD, PST CYLINDER1A8275-1745013 111
BOLT 14*451A6680-8598014 888
BOLT M 8X 16 PLATED26106-08016215 111
BOLT M16X 60 PLATED26116-16060416 111
NUT M1626716-16000217 111
(C)Copy Rights YANMAR CO.,LTD.

Related product manuals