EasyManua.ls Logo

Currys Essentials CCHOBKN13 - Connecting the Hob to the Mains Power Supply

Currys Essentials CCHOBKN13
16 pages
Print Icon
To Next Page IconTo Next Page
To Next Page IconTo Next Page
To Previous Page IconTo Previous Page
To Previous Page IconTo Previous Page
Loading...
9
Connecting the Hob to the Mains Power Supply
Before proceeding with the electrical connection, verify that the current carrying capacity of the system
and the socket is adequate for the maximum power rating of the hob.
Electrical installation of the residence and the electrical current plug in use must be earthed and conform
with safety regulations.
If there is no dedicated hob circuit and fused switch, they must be installed by a qualied electrician
before the hob is connected.
Fused switch must be easily accessible once the hob has been installed.
Do not use adaptors, multiple sockets and/or extension leads.
This appliance conforms with the requirements of the following EEC Directives:
Vitroceramic hob EEC/73/23 and 93/68, EEC/89/336 relating to radio interference,
EEC/89/109 relating to contact with foods.
A circuit breaker with a contact opening of at least 3mm, rated 32A and delayed functioning type must be
installed inside the supply circuit.
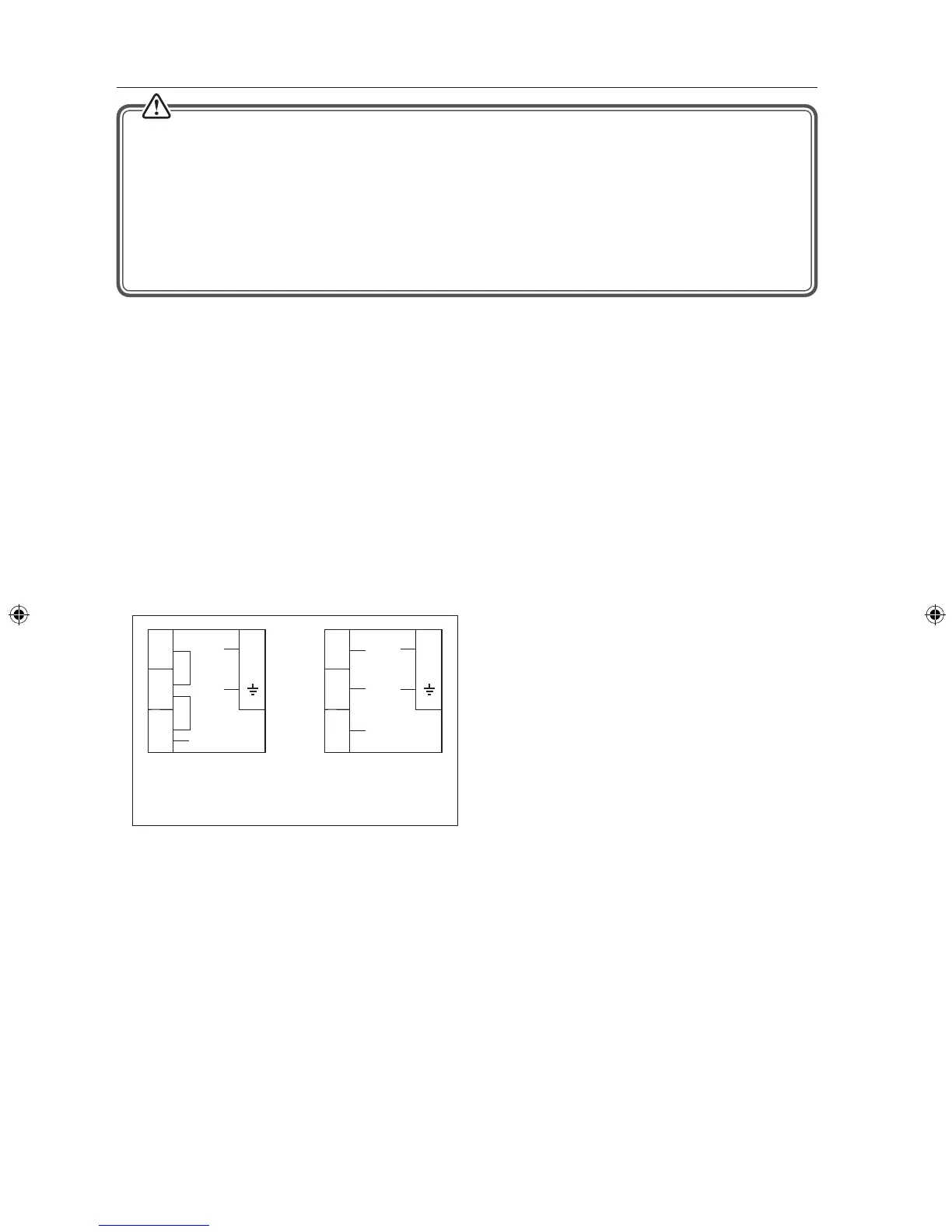
For the vitroceramic hob, the cable must be H05VV-F 5X1.5mm2 for 3 phase or 3X2.5mm2 for single phase /
60227 IEC 53. You will nd the connection diagram shown on the bottom of your appliance.
During installation, please insure that isolated cables are used. An incorrect connection might damage your
appliance. The guarantee will not cover such damages.
All repairs must be carried out by an authorised service personal or a qualied electrician.
Unplug your appliance before each maintenance. For reconnection, follow the connection diagrams strictly.
Cooking hobs not provided with supply cord.
If the mains cable is damaged and needs to be replaced, this should be done by a qualied person
using the proper tools, so as to avoid any accidents.
If the ceramic hob is being connected directly to the mains supply, an omnipolar circuit breaker must
be installed with a minimum gap of 3mm between the contacts.
The installer must ensure that the correct electrical connection has been made and that it complies
with safety regulations.
The mains cable must not be bent or compressed.
The mains cable must be checked regularly and only replaced by a qualied person.
1
L
2
3 4N
PE
1
L
1
2
3 4N
PE
L
2
L
3
3x2.5mm2 220V~
3x2.5mm2 230V~
3x2.5mm2 240V~
5 x 1.5mm
2
380 V~ 3N~
5 x 1.5mm
2
400 V~ 3N~
5 x 1.5mm
2
415 V~ 3N~
* All images are for indication only; please refer to your individual unit for actual item.
CCHOBKN13_IB.indd 9 12/04/2013 12:12