EasyManua.ls Logo

CUSHCRAFT LFA-6M4EL - Page 5

CUSHCRAFT LFA-6M4EL
12 pages
Print Icon
To Next Page IconTo Next Page
To Next Page IconTo Next Page
To Previous Page IconTo Previous Page
To Previous Page IconTo Previous Page
Loading...
53-3/8 INCHES
55-1/4 INCHES
48-3/4 INCHES
59-3/4 INCHES
174865 7/16 x 48 inches
174869
172922 7/16 x 47 inches
175512-1 7/16 x 42-3/4 inches
172928 7/16 x 53 inches
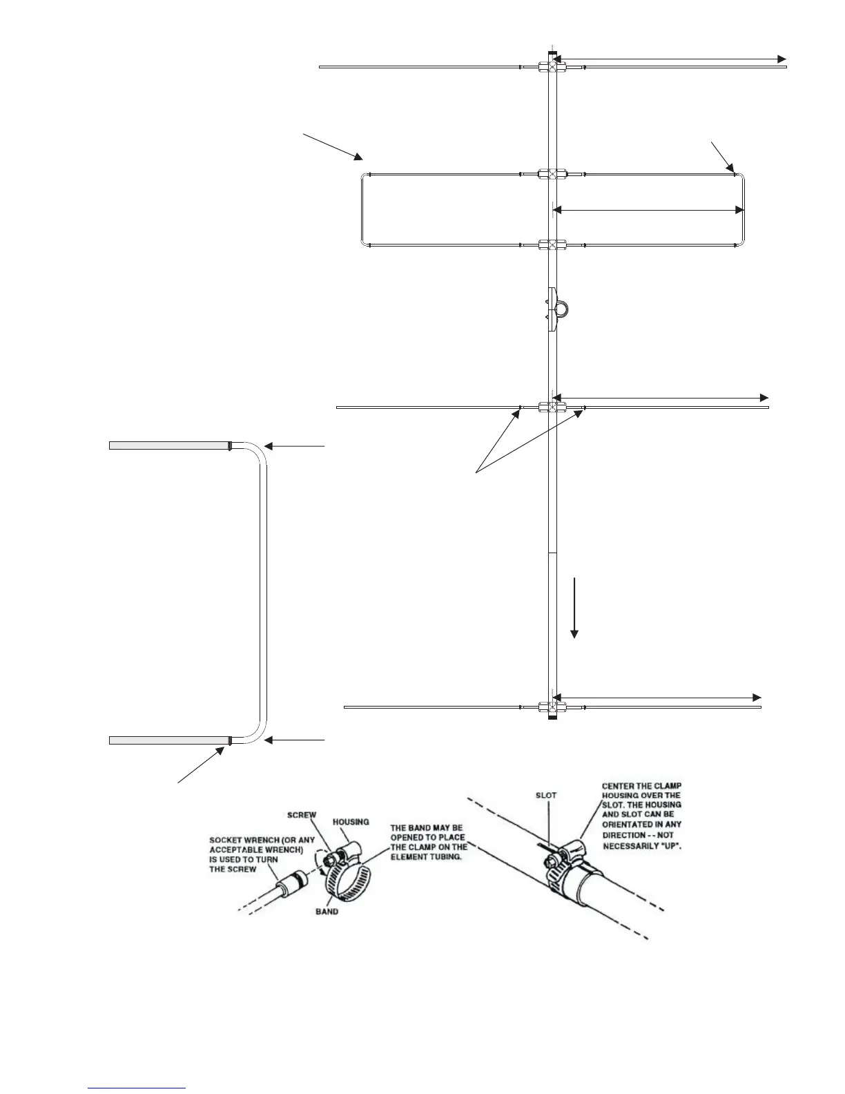
Instal the tubing in the locations shown.
The tubing can be identified by the lengths
given on the left side of the diagram.
This is the total length of the tube.
The element lengths are given from the
center of the boom to the tip of the tube.
For the driven element, the distance is
from the center of the boom to the outer
edge of the loop end. Slide a #4 hose
clamp over the loop ends before installing.
Verify the measurements and tighten the
clamps on the reflector and directors.
Leave the clamps on the loop end loose.
The loop end needs to move for final tuning
of the antenna. Install the 7/16 tube caps
on the ends of the elements.
Loop End
Don’t tighten loop clamps
until final tuning is done
#4 hose clamp
on each element
175512-1 7/16 x 42-3/4 inches
Front of antenna
5
Loop End
Slide the loop ends
into the tube evenly
so they do not bind.
Don’t tighten the
hose clamps until
tuning is finished.
Place hose clamp
over slot in tube

Related product manuals