EasyManua.ls Logo

Daewoo CP-520 - Dtc-21 Y1

Daewoo CP-520
85 pages
Print Icon
To Next Page IconTo Next Page
To Next Page IconTo Next Page
To Previous Page IconTo Previous Page
To Previous Page IconTo Previous Page
Loading...
CP-520/520A/520F Service Manual
DTV R&D Europe
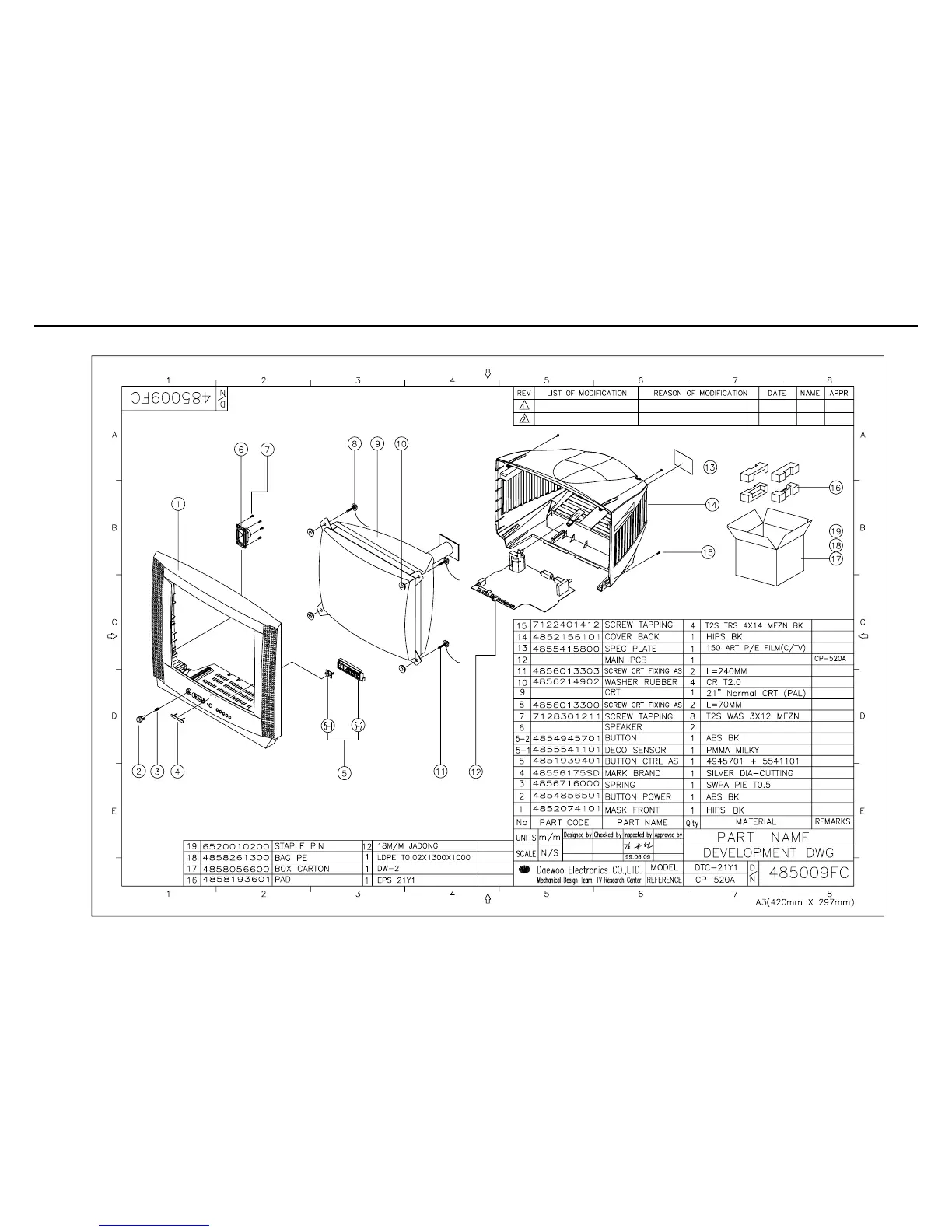
7. Exploded View
7-6 DTC-21Y1
74

Table of Contents

Related product manuals