EasyManua.ls Logo

Daewoo DE08TIS - 4 Maintenance of Major Components; Cooling System

Daewoo DE08TIS
147 pages
Print Icon
To Next Page IconTo Next Page
To Next Page IconTo Next Page
To Previous Page IconTo Previous Page
To Previous Page IconTo Previous Page
Loading...
D1146/D1146TI/DE08TIS
MAINTENANCE MANUAL
98
Printed in Jan. 2001 PS-MMA0415-E1A
4. Maintenance of Major Components
4.1. Cooling System
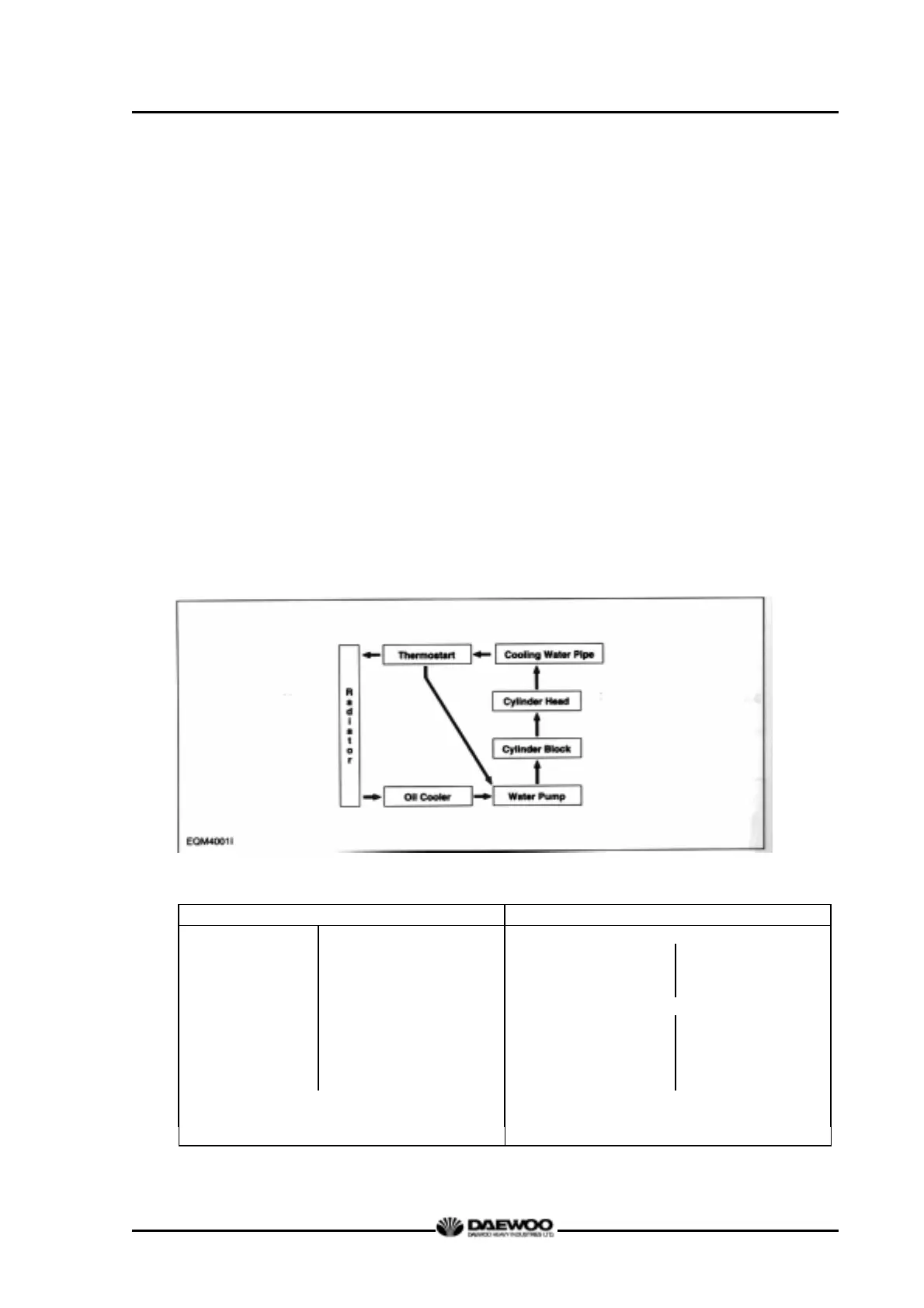
4.1.1. General information
This engine is water-cooling type. Heat from the combustion chamber and engine oil
heat are cooled down by coolant and radiated to the outside, resulting in the normal
operation of the engine.
Looking into the cooling system, the water pumped up by the water pump circulates
around the oil cooler through the water pipe to absorb the oil heat, and then flows
through the water jacket of the cylinder block and water passage of the cylinder head
to absorb the heat of the combustion chamber.
The water absorbing the oil heat and combustion chamber heat goes on to the
thermostat through the water pipe, and circulates to the water pump if water
temperature is lower than the valve opening temperature on the thermostat, while
circulating to the radiator at water temperature higher than the valve opening
temperature. At the radiator, the heat absorbed in the coolant is radiated to cool down
and the coolant recirculates to the water pump.
4.1.2. Specification
Item Specification
Type Centrifugal type
Pump speed 2,000 rpm 2,700 rpm
Delivery capacity about 190 liter/min about 280 liter/min
Operation pressure 0.5 bar 0.8 bar
1. Water pump
Allowable back pressure bellow 0.5 bar
Operating temperature
79°C 83°C
Valve lift
8 mm or more
(at 94°C)
8 mm or more
(at 94°C)
2. Thermostat
Operating temperature
79 94°C 83 95°C
3. Cooling fan and belt
Fan diameter – Number of blades
Truck : φ700mm – 8
Fan belt tension 15mm deflection by thumb

Related product manuals