EasyManua.ls Logo

Daewoo DW-1411 - Page 6

Daewoo DW-1411
26 pages
Print Icon
To Next Page IconTo Next Page
To Next Page IconTo Next Page
To Previous Page IconTo Previous Page
To Previous Page IconTo Previous Page
Loading...
5
FUNCTION
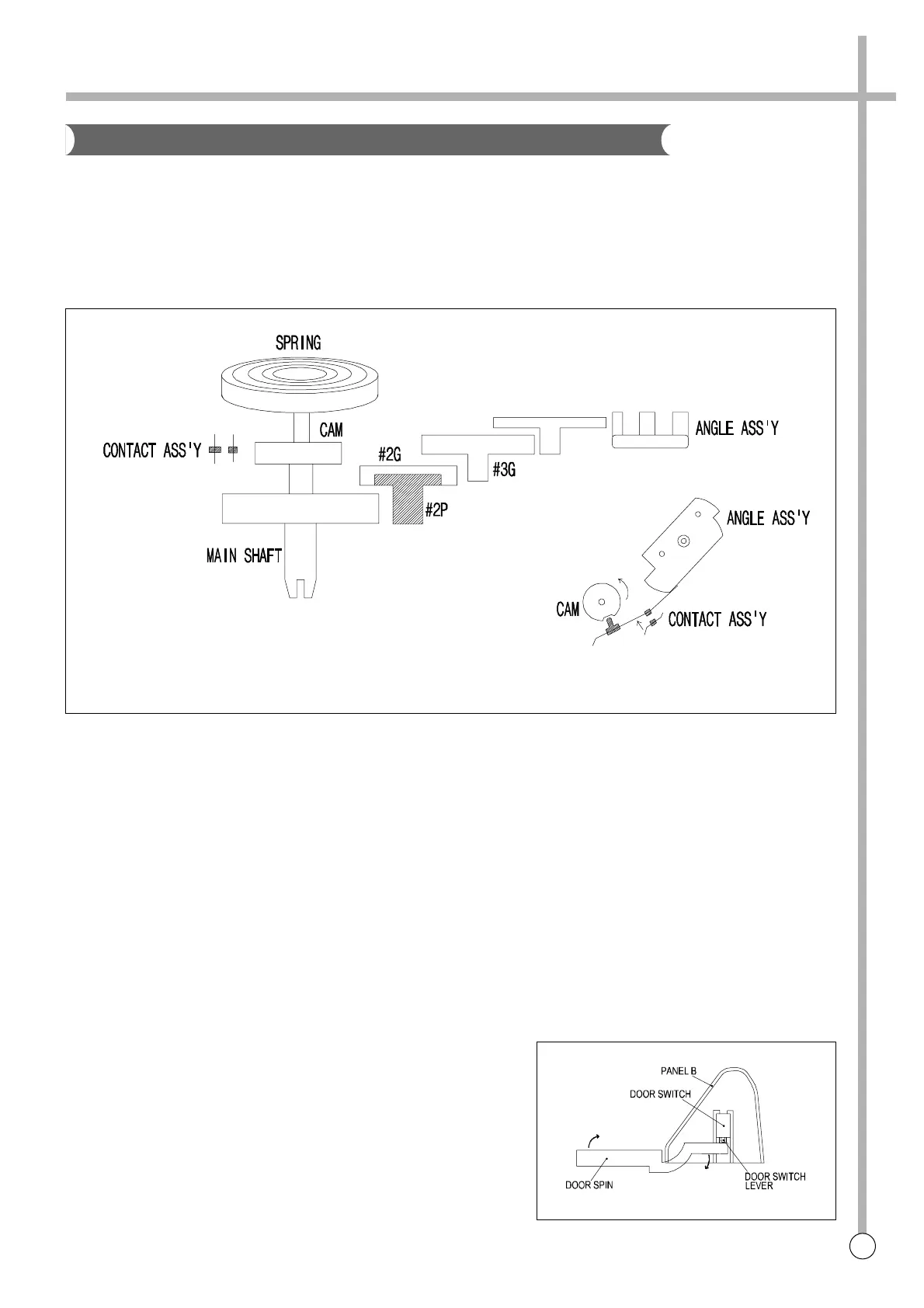
The spin timer is the switch providing power to the SPIN MOTOR(DRAIN PUMP MOTOR) during the set spin dry
time, and is a spring-type time switch comes on turning and those contact points comes off after the set time.
STRUCTURE AND PRINCIPLE OF ACTIVATION
1) The main shaft turns due to the unwinding force when the spin timer is turned, the spring wound with that force
being delivered through each gear and the spring slowly unwinding at a speed finally controlled by the angle
assembly.
2) The contact point Turns ON and the assembly angle is set in motion which is in the CAM groove in the OFF
state, comes off the groove when the main shaft is turned to wind the spring. The contact point turns OFF,
return to CAM groove when the spring unwind completely.
SAFETY DEVICE FOR BASKET SPIN
The BASKET SPIN is an apparatus which eliminates the water from the laundry through centrifugal separation
generated by rapid revolution(approximately 1,700rpm for 60Hz). Accordingly, there are a DOOR SWITCH to cut
off the power going into the DOOR SPIN is opened and a brake system to stop the rotating BASKET SPIN.
DOOR SWITCH
When the DOOR SPIN is opened during spinning, the DOOR
SWITCH LEVER which sites atopt the DOOR SPIN falls off the
contact, and cuts off the power going into the SPIN MOTOR.
Spin Timer

Related product manuals