EasyManua.ls Logo

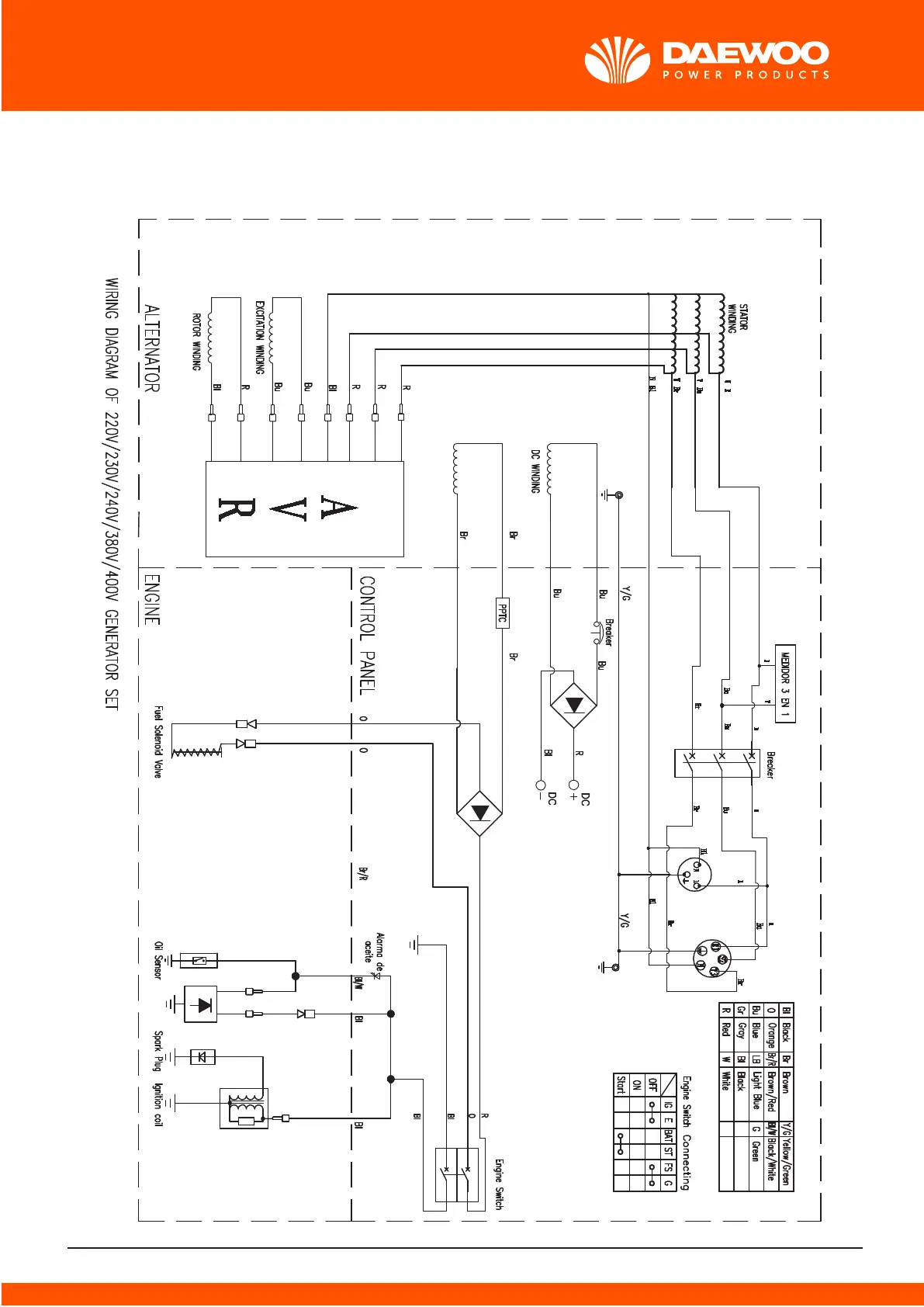
Daewoo GDA Series - ELECTRICAL SCHEMATIC DIAGRAM 6 - RECOIL START, THREE PHASE; Recoil Start Three Phase Wiring Diagram

Daewoo GDA Series
Print Icon
To Next Page IconTo Next Page
To Next Page IconTo Next Page
To Previous Page IconTo Previous Page
To Previous Page IconTo Previous Page
Loading...
ELECTRICAL SCHEMATIC DIAGRAM 6 - RECOIL START, THREE PHASE
47

Related product manuals