EasyManua.ls Logo

Daikin AGZ100E - Page 29

Daikin AGZ100E
112 pages
Print Icon
To Next Page IconTo Next Page
To Next Page IconTo Next Page
To Previous Page IconTo Previous Page
To Previous Page IconTo Previous Page
Loading...
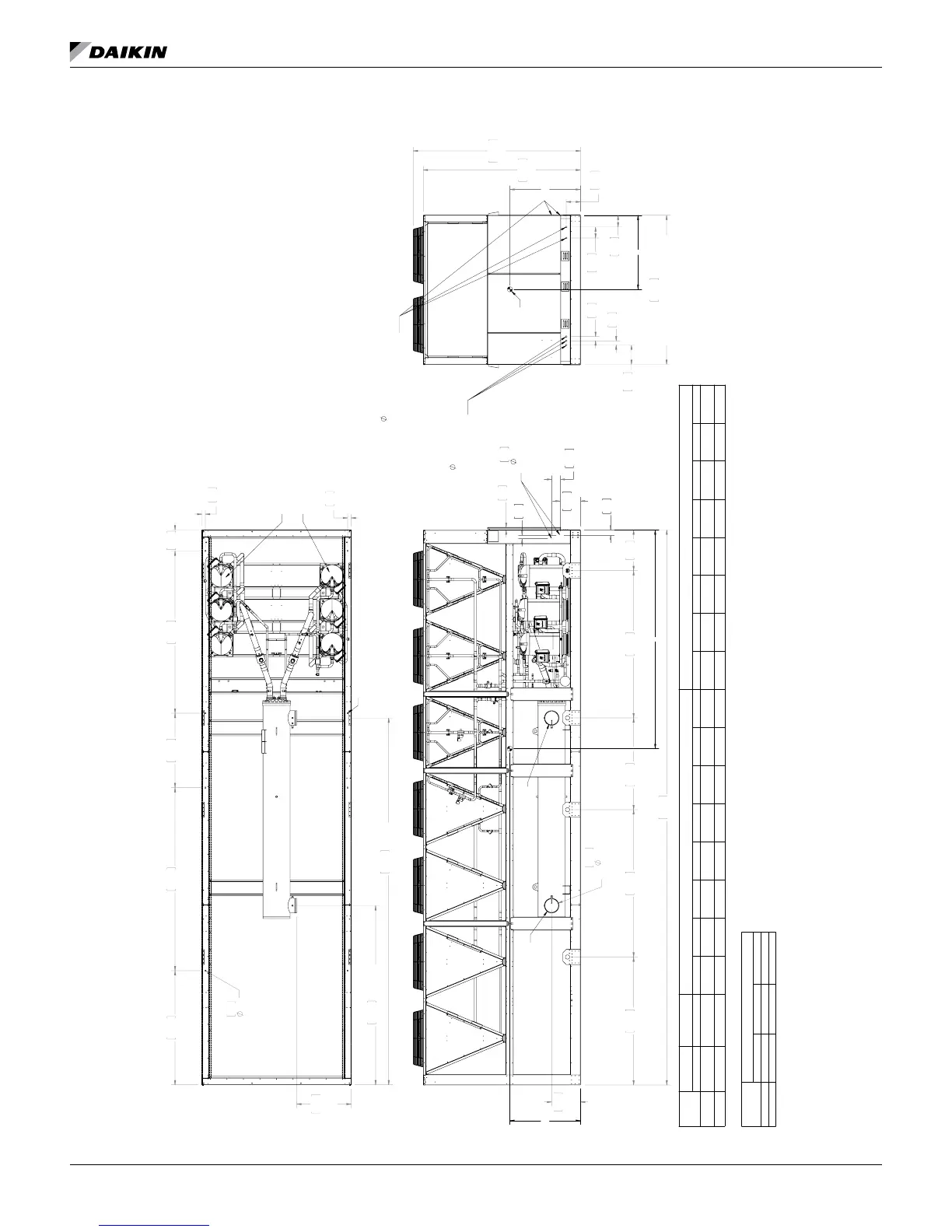
dImensIons and WeIghTs - paCkaged UnITs
www.DaikinApplied.com 27 IOM 1206-7 • TRAILBLAZER
MODEL AGZ CHILLERS
Figure 38: AGZ225E - AGZ240E
2235
88.0
DIMENSION DOES NOT
INCLUDE LIFTING BRACKETS
165
6.5
175
6.9
213
8.4
2355
92.7
2506
98.6
292
11.5
64
2.5
64
2.5
X
Y
CONTROL
BOX
[22]
.875 KNOCKOUTS
FIELD CONTROL
CONNECTIONS
CG
609
24.0
2207
86.9
1375
54.1
2207
86.9
1919
75.5
203
8.0
VICTAULIC
CONN. TYP.
8317
327.4
37
1.5
432
17.0
TYP.
127
5.0
51
2.0
305
12.0
22
.875
KNOCKOUTS
POWER ENTRY POINTS
ARE ON OPPOSITE
SIDE OF CONTROL BOX
Z
80
3.1
Y
L1
L2
L3
L4
L5
L6
L7
L8
EVAPORATOR
WATER
OUTLET
WATER
INLET
CG
814
32.1
TYP.
2743
108.0
1114
43.8
2433
95.8
315
12.4
52
2.0
52
2.0
1711
67.4
19
.75
QTY 8
5496
216.4
INLET
2685
105.7
OUTLET
COMPRESSORS
CIRCUIT #1
COMPRESSORS
CIRCUIT #2
ISOLATOR MOUNTING HOLE LOCATIONS ARE ON BOTTOM SURFACE OF UNIT.
M1
L1
M3
L3
M5
L5L7
M7
M2
L2
M4
L4
M6
L6L8
M8
NOTE:
LIFTING WEIGHTS ARE BASED ON UNIT SHIPPING WEIGHTS. MOUNTING
WEIGHTS ARE BASED ON UNIT OPERATING WEIGHT WITH EVAPORATOR
WATER INCLUDED. SHIPPING AND OPERATING WEIGHTS DO NOT INCLUDE
THE WEIGHTS OF ANY OPTIONS OR ACCESSORIES.
[22]
.875 KNOCKOUTS
POWER ENTRY POINTS
FRONT AND RIGHT SIDE
NOTES:
LEFT HAND EVAPORATOR VIEWS SHOWN. SEE SHEET 2 FOR
1.
VIEWS WITH RIGHT HAND EVAP.
TOP VIEW
WITH COILS
AND FANS
REMOVED
UNIT
MODEL
CG LOCATION IN (MM)
X Y
Z
AGZ225E
43.7 (1110) 40.7 (1034)
126.6 (3216)
AGZ240E
43.8 (1113) 40.8 (1036)
125.9 (3198)
UNIT
MODEL
SHIPPING
WEIGHT
OPERATING
WEIGHT
LIFTING (SHIPPING) WEIGHT BY CORNER, LBS (KG)
MOUNTING (OPERATING) WEIGHT, LBS (KG)
LBS (KG) LBS (KG)
L1 L2 L3 L4 L5 L6 L7 L8
M1 M2 M3 M4 M5 M6 M7 M8
PART NUMBER
334547141
INSTR,CERTIFIED DWG,AGZ-E 14 FANS
AGZ225E
9501 (4310)
10200 (4627)
1419 (644) 1403 (636) 1248 (566) 1234 (560) 1141 (518) 1128 (512)
970 (440) 959 (435)
1410 (640) 1394 (632) 1309 (594) 1294 (587) 1262 (572) 1248 (566) 1148 (521) 1135 (515)
AGZ240E
9589 (4349)
10288 (4667)
1443 (655) 1433 (650) 1260 (572) 1251 (567) 1146 (520) 1138 (516)
963 (437) 956 (434)
1433 (650) 1422 (645) 1320 (599) 1310 (594) 1269 (576) 1259 (571) 1141 (518) 1133 (514)

Related product manuals