EasyManua.ls Logo

Daikin AWV030 - Page 36

Daikin AWV030
92 pages
Print Icon
To Next Page IconTo Next Page
To Next Page IconTo Next Page
To Previous Page IconTo Previous Page
To Previous Page IconTo Previous Page
Loading...
IOM 1242-2 • PATHFINDER
®
MODEL AWV CHILLERS 36 www.DaikinApplied.com
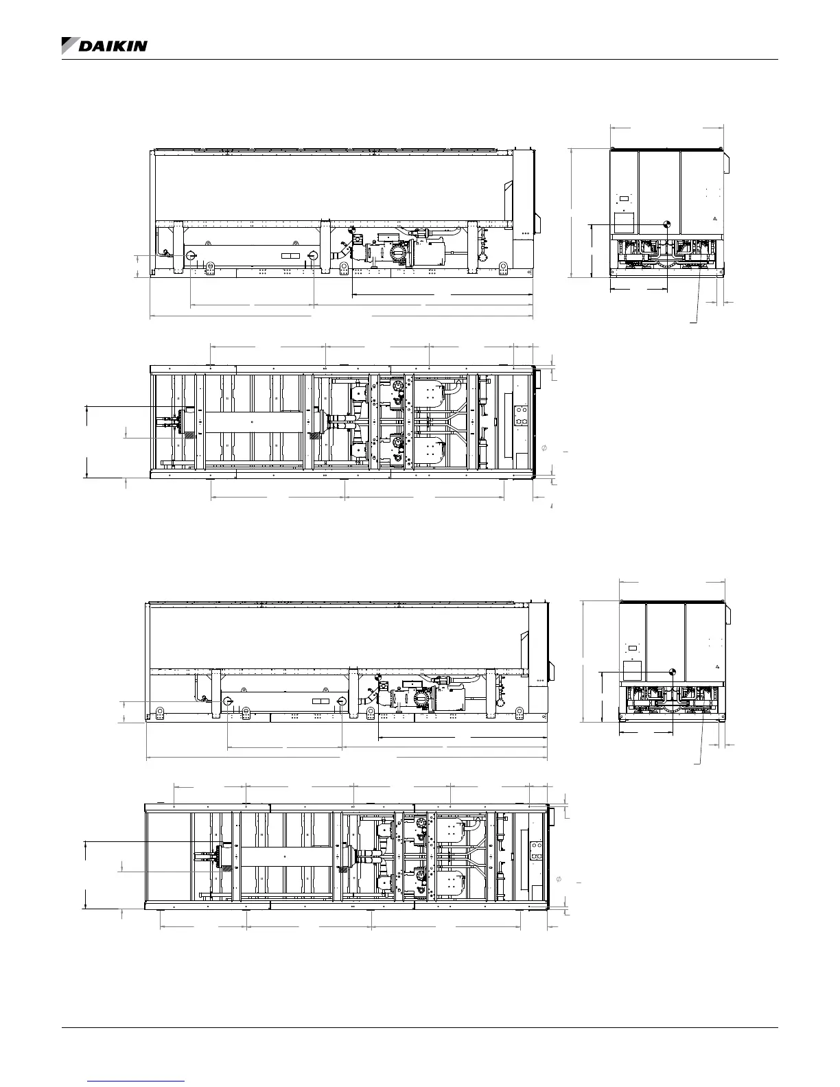
dImensIonal drawIngs
Figure 40: Reference Dimensional Drawing - 12 Fan and 14 Fan Congurations with Shell and Tube Evaporator
Figure 41: Reference Dimensional Drawing - 16 Fan - 30 Fan Congurations with Shell and Tube Evaporator
NOTE: Water connection sizes are given in Pressure Drop Data starting on page 39.
L” refers to Ling Eye Point locations. “M” refers to Mounting Point locations.
CG X
CG Y
CG Z
WATER INLET
WATER
OUTLET
M3 / M4
2.60
M1 / M2M7 / M8 M5 / M6
2.60
FIELD POWER ENTRY FROM
BOTTOM FOR SMALL
CONTROL BOX (SHOWN),
FROM SIDE FOR LARGE
CONTROL BOX,
100.1
87.6
DOES NOT INCLUDE
LIFTING LUGS
5.2 BASE
RAIL WIDTH
Z (BASE LENGTH)
A
C
B
L1 / L2L3 / L4L5 / L6
D RH
(OPTIONAL
RH WATER
CONN.)
D LH
(STANDARD
LH WATER
CONN.)
.750
TYP
MOUNTING HOLE SIZE
CG X
CG Y
CG Z
WATER INLET
WATER
OUTLET
M3 / M4
2.60
M1 / M2M7 / M8 M5 / M6
2.60
.750
TYP
FIELD POWER ENTRY FROM
BOTTOM FOR SMALL
CONTROL BOX (SHOWN),
FROM SIDE FOR LARGE
CONTROL BOX,
100.1
87.6
DOES NOT INCLUDE
LIFTING LUGS
5.2 BASE
RAIL WIDTH
Z (BASE LENGTH)
A
C
B
L1 / L2L3 / L4L5 / L6
D RH
(OPTIONAL
RH WATER
CONN.)
D LH
(STANDARD
LH WATER
CONN.)
M9 / M10
L7 / L8
MOUNTING HOLE SIZE

Table of Contents

Related product manuals