EasyManua.ls Logo

Daikin AWV030 - Reference Dimensional Drawing; Unit Dimensions by Configuration with Braze Plate Evaporator

Daikin AWV030
92 pages
Print Icon
To Next Page IconTo Next Page
To Next Page IconTo Next Page
To Previous Page IconTo Previous Page
To Previous Page IconTo Previous Page
Loading...
dImensIonal drawIngs
www.DaikinApplied.com 35 IOM 1242-2 • PATHFINDER
®
MODEL AWV CHILLERS
dImensIonal drawIngs
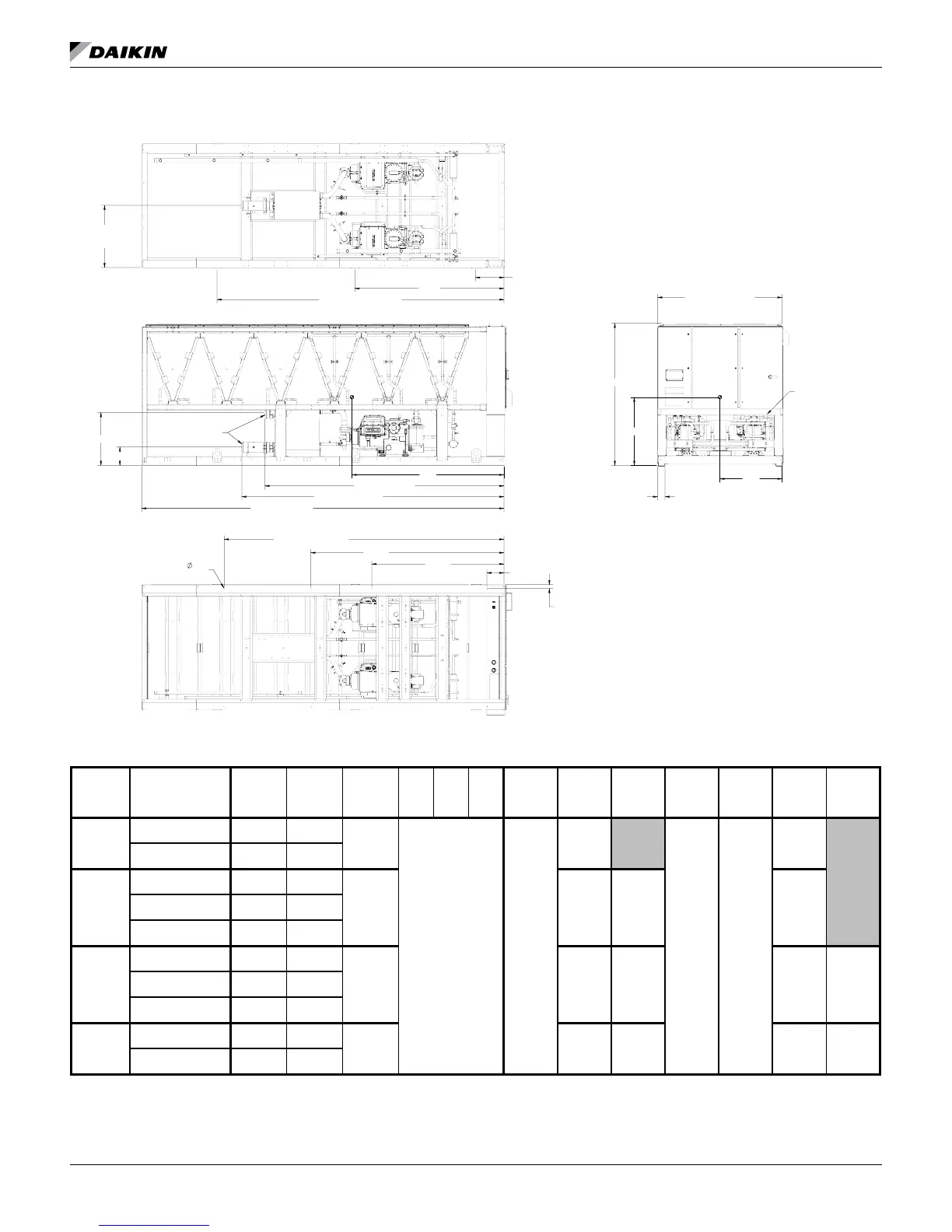
Figure 39: Reference Dimensional Drawing - 08 Fan to 14 Fan Congurations With Braze Plate Evaporator
Table 11: Unit Dimensions by Conguration with Braze Plate Evaporator
A (WATER INLET)
B (WATER OUTLET)
Z (BASE LENGTH)
37.21
13.00
CG Z
Ø6.0 GROOVED
CONNECTION
M1 / M2
M3 / M4
M5 / M6
M7 / M8 (12 & 14 FAN)
.750
TYP.
2.60
TYP.
87.6
DOES NOT INCLUDE
LIFTING LUGS
5.20 BASE
RAIL WIDTH
TYP.
100.1
CG Y
CG X
MINI CONTROL BOX
(ALL TURBOSCREW UNITS)
FIELD POWER ENTRY
AT BOTTOM OF BOX
43.8
WATER
INLET / OUTLET
L1 / L2
L3 / L4
L5 / L6 (10, 12 & 14 FAN)
# OF
FANS
EVAP A B Z CG X CG Y CG Z
L1 /
L2
L3 /
L4
L5 /
L6
M1 /
M2
M3 /
M4
M5 /
M6
M7 /
M8
8
ACH1000DQ-166 152.8 169.1
179.3
Refer to Submied As-Built Drawings
20
148 N/A
12 93
160
N/A
ACH1000DQ-206 156.5 172.8
10
ACH1000DQ-206 156.5 172.8
217.2 105 169 190ACH1000DQ-250 160.7 177
ACH1000DQ-330 168.3 184.6
12
ACH1000DQ-206 156.5 172.8
255.1 105 202 136 197ACH1000DQ-250 160.7 177
ACH1000DQ-330 168.3 184.6
14
ACH1000DQ-250 160.7 177.0
293.0 139.0 228.0 136.0 250.0
ACH1000DQ-330 168.3 184.6

Table of Contents

Related product manuals