EasyManua.ls Logo

Daikin D2CNL-A1A - Wiring Diagram

Daikin D2CNL-A1A
24 pages
Print Icon
To Next Page IconTo Next Page
To Next Page IconTo Next Page
To Previous Page IconTo Previous Page
To Previous Page IconTo Previous Page
Loading...
4 Installation
Installation Manual
14
D2CNL024A1AA
Wall-mounted condensing boiler
3P469346-12R – 2021.09
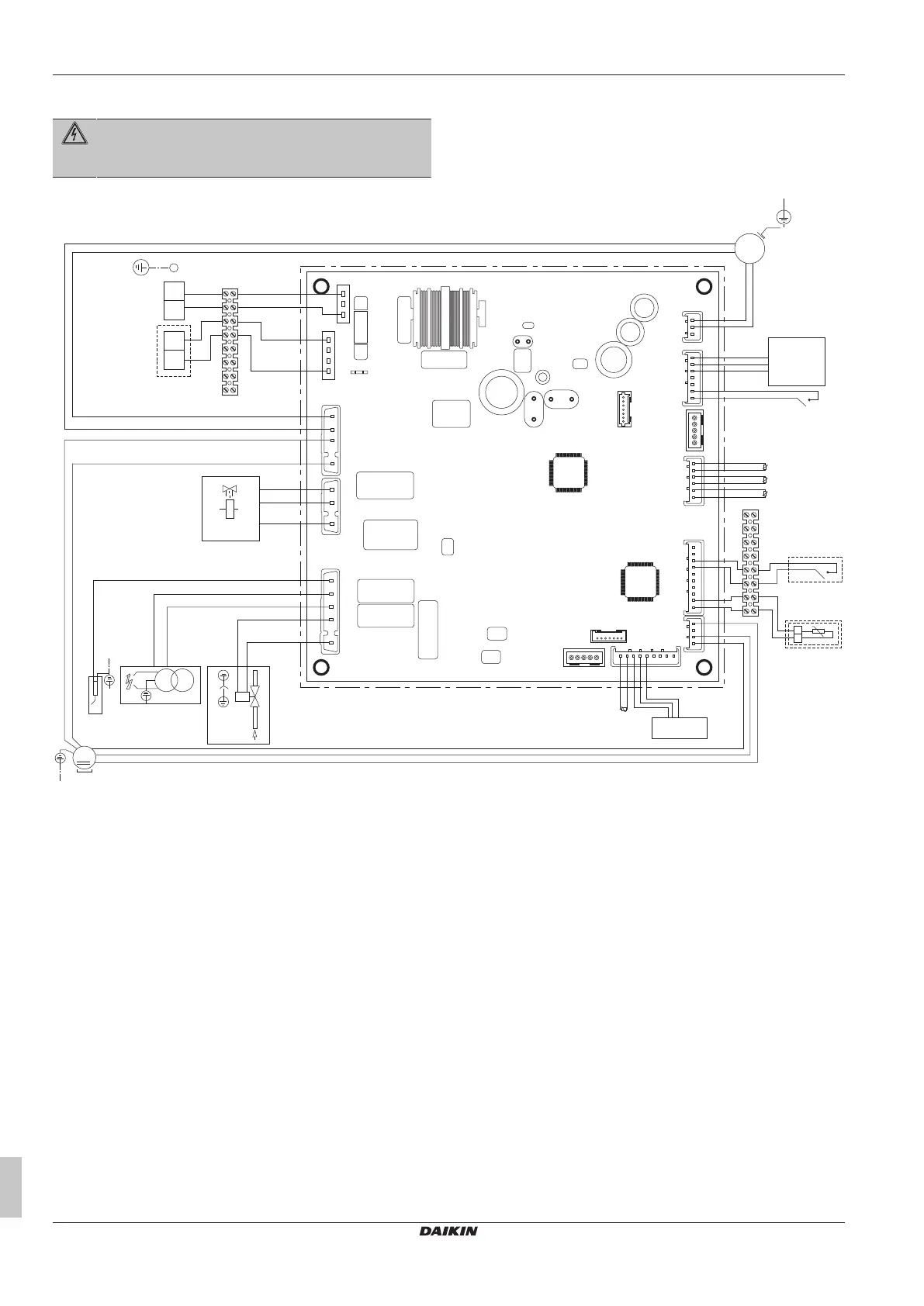
4.8.6 Wiring diagram
DANGER: RISK OF ELECTROCUTION
Disconnect the power supply for more than 10 minutes
before servicing
X1A
X2
X4
X5
X1M
X2M
X6A
X7
1
1
1
1
1
1
1
1
1
1
1
1
1
X12
X10
X11
X17
X15
X8
WPS1
DHW
FS1
NTC3
NTC4
NTC2
NTC5
PCB1
NTC1
K1
HE1
IT1
3WV1
F1
GV1
IE1
P1
Ext2
L
N
Ext3*
L
N

Related product manuals