EasyManua.ls Logo

Daikin DBC - Page 5

Daikin DBC
8 pages
Print Icon
To Next Page IconTo Next Page
To Next Page IconTo Next Page
To Previous Page IconTo Previous Page
To Previous Page IconTo Previous Page
Loading...
5
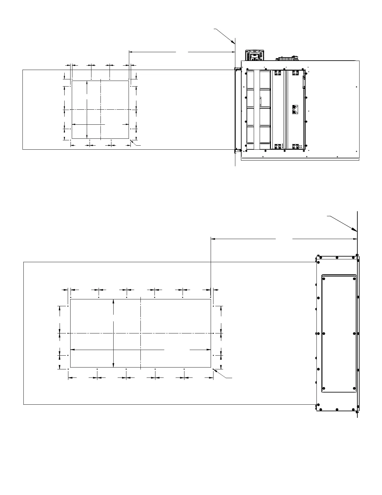
7.12 7.12 7.12 7.12 7.12
34.50 I.D.
16.75 I.D.
3.38
5.40
6.67
.69 6.88 6.88 6.88 6.88 6.88 .69
3.38
5.40
6.67
36.00
O
.144
HORIZONTAL RETURN AIR PANEL
Figure8-3to6TonDuctCut-OutDetail
Figure9–7½to12½TonDuctCut-OutDetail

Related product manuals