EasyManua.ls Logo

Daikin DBC - Page 6

Daikin DBC
8 pages
Print Icon
To Next Page IconTo Next Page
To Next Page IconTo Next Page
To Previous Page IconTo Previous Page
To Previous Page IconTo Previous Page
Loading...
6
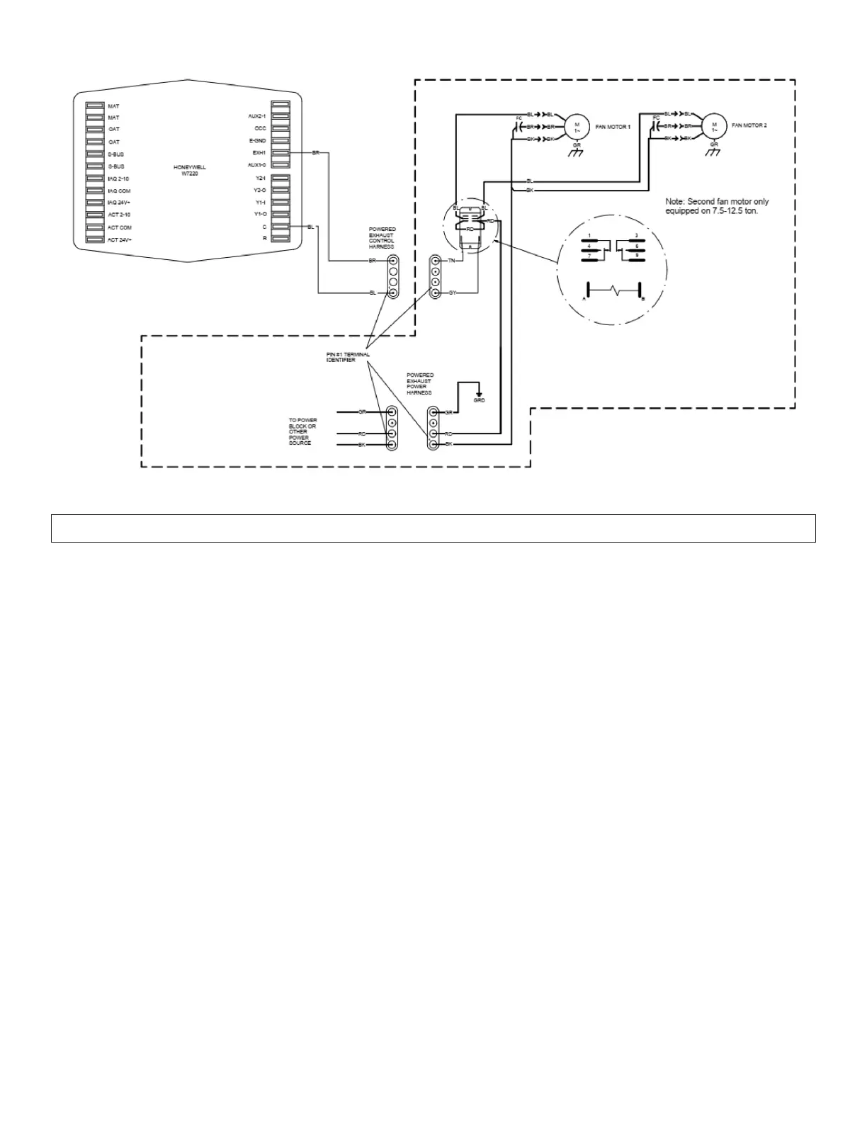
WiringDiagram–PowerExhaust–Propeller,Non-DDC,1PH/3PH(230V)
NOTE: 


Related product manuals