EasyManua.ls Logo

Daikin DM96SN0804CN - Wiring Diagram and Connections

Daikin DM96SN0804CN
68 pages
Print Icon
To Next Page IconTo Next Page
To Next Page IconTo Next Page
To Previous Page IconTo Previous Page
To Previous Page IconTo Previous Page
Loading...
64


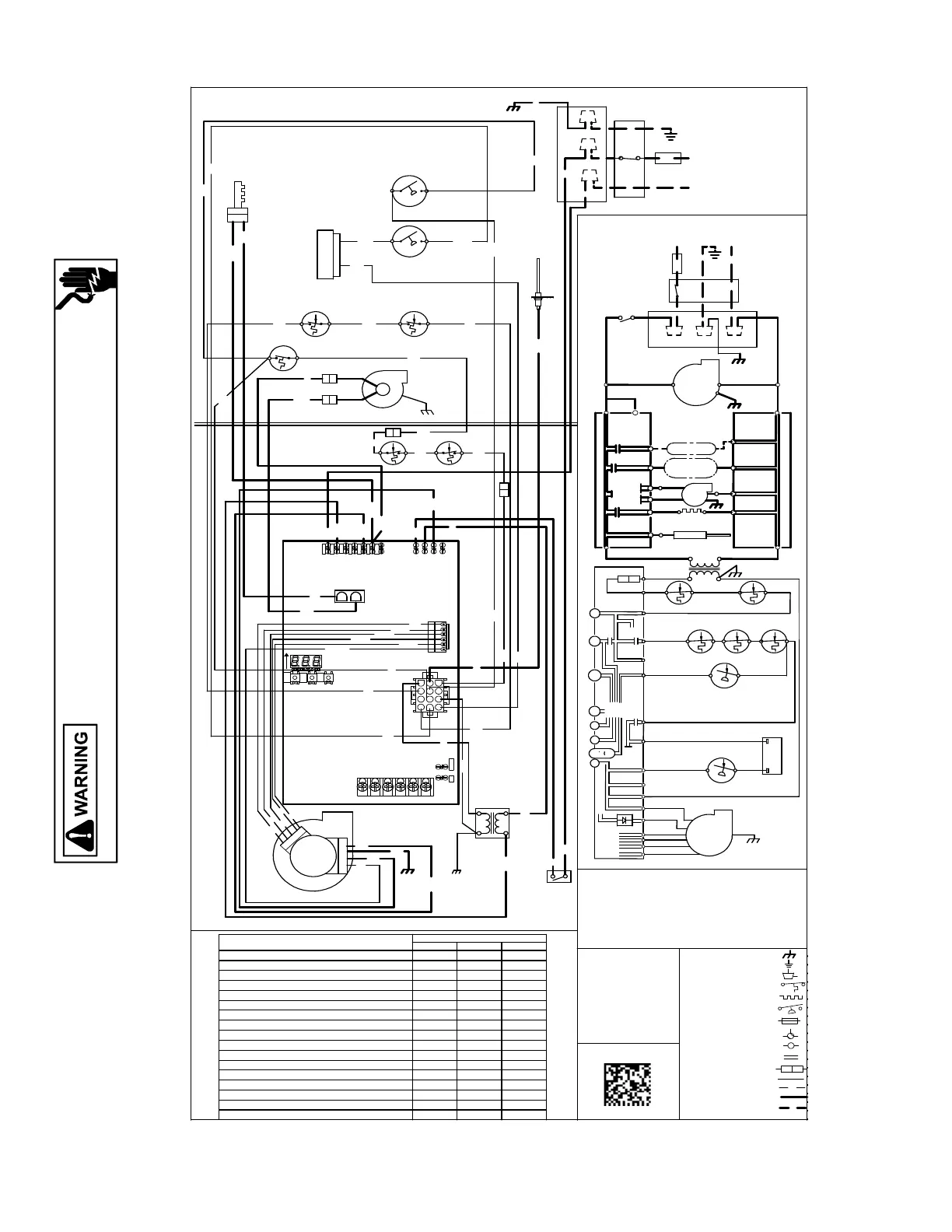
Wiring is subject to change. Always refer to the wiring diagram on the unit for the most up-to-date wiring.




G
N
G
N
D
R
D
GN
24
VAC
115
VAC
G
N
D
GRD
0
1
4
0
F
0
2
6
3
5
-
A
BK
E
A
C
H
U
M
ID
IF
IE
R
ID
N
E
U
T
R
A
L
W
IR
IN
G
T
O
U
N
I
T
L
INTEGRATED CONTROL MODULE
H
O
T
S
U
R
F
A
C
E
G
N
D
B
L
W
R
N
E
U
T
R
A
L
W
A
R
N
IN
G
:
G
R
O
U
N
D
E
D
.
O
V
E
R
C
U
R
R
E
N
T
P
R
O
T
E
C
T
IO
N
D
E
V
IC
E
M
U
S
T
B
E
P
R
O
P
E
R
L
Y
S
W
IT
C
H
N
E
U
T
R
A
L
E
L
E
C
T
R
O
N
IC
A
I
R
IG
N
IN
D
D
IS
C
O
N
N
E
C
T
F
S
P
O
L
A
R
IZ
E
D
A
N
D
N
E
U
T
R
A
L
L
IN
E
N
E
U
T
R
A
L
J
U
N
C
T
IO
N
B
O
X
B
L
W
R
IN
D
L
O
N
IN
D
O
O
R
A
IR
C
L
E
A
N
E
R
H
U
M
D
O
O
R
N
E
U
T
R
A
L
INTEGRATED CONTROL MODULE
T
O
1
1
5
V
A
C
/
1
Ø
/6
0
H
Z
P
O
W
E
R
S
U
P
P
L
Y
W
IT
H
1
1
5
V
A
C
H
U
M
-
O
U
T
IG
N
IT
E
R
C
IR
C
U
L
A
T
O
R
B
E
F
O
R
E
S
E
R
V
IC
IN
G
.
F
L
A
M
E
S
E
N
S
O
R
D
IS
C
O
N
N
E
C
T
P
O
W
E
R
L
IN
E
G
N
D
BR
WH
GY
YL
PK
GY
L
IM
IT
C
O
N
T
R
O
L
A
U
X
IL
IA
R
Y
A
U
T
O
R
E
S
E
T
P
K
W
A
R
N
IN
G
:
D
IS
C
O
N
N
E
C
T
40 VA
TRANSFORMER
N
G
C
S
E
N
S
O
R
F
L
A
M
E
1
R
O
L
L
O
U
T
S
W
IT
C
H
S
O
M
E
U
N
IT
S
M
A
Y
H
A
V
E
T
O
U
N
IT
M
U
S
T
B
E
P
U
RD
A
N
D
G
R
O
U
N
D
E
D
.
JUNCTION BOX
WH
BL
B
R
N
O
L
IM
IT
C
O
N
T
R
O
L
A
U
T
O
R
E
S
E
T
P
R
IM
A
R
Y
W
H
1
L
B
K
ID
B
L
O
W
E
R
P
R
E
S
S
U
R
E
S
W
IT
C
H
S
E
R
V
IC
IN
G
.
W
IR
IN
G
PK
RD
L
N
D
O
O
R
O
P
E
N
)
(O
P
E
N
W
H
E
N
D
O
O
R
S
W
IT
C
H
C
O
M
P
A
R
T
M
E
N
T
B
L
O
W
E
R
G
N
D
BLOWER
CIRCULATOR
Ø
/6
0
H
Z
D
IS
C
O
N
N
E
C
T
G
A
S
V
A
L
V
E
O
V
E
R
C
U
R
R
E
N
T
C
O
N
N
E
C
T
O
R
2
C
IR
C
U
IT
G
N
D
WH
CHASSIS
GROUND
IG
N
IT
E
R
S
U
R
F
A
C
E
H
O
T
2
YL
C
B
L
O
W
E
R
D
R
A
F
T
IN
D
U
C
E
D
BK
B
L
O
W
E
R
C
O
M
P
A
R
T
M
E
N
T
1
1
5
V
A
C
/
1
BK
ECM MTR
HARNESS
POWER BEFORE
BK
T
O
P
O
W
E
R
S
U
P
P
L
Y
W
IT
H
B
U
R
N
E
R
C
O
M
P
A
R
T
M
E
N
T
P
R
O
T
E
C
T
IO
N
D
E
V
IC
E
PROPERLY PO
LARIZED
NOTES:
1. SET HEAT ANTICIPATOR ON ROOM THERMOSTAT AT 0.7 AMPS.
2. MANUFACTURER'S SPECIFIED REPLACEMENT PARTS MUST BE USED
WHEN SERVICING.
3. IF ANY OF THE ORIGINAL WIRE AS SUPPLIED WITH THE FURNACE
MUST BE REPLACED IT MUST BE REPLACED WITH WIRING MATERIAL
HAVING A TEMPERATURE RATING OF AT LEAST 105
v
C. USE COPPER
CONDUCTORS ONLY.
4. UNIT MUST BE PERMANENTLY GROUNDED AND CONFORM TO N.E.C.
AND LOCAL CODES.
5. TO RECALL THE LAST 6 FAULTS, MOST RECENT TO LEAST RECENT,
DEPRESS SW ITCH FOR MORE THAN 2 SECONDS WHILE IN STANDBY
(NO THERMOSTAT INPUTS)
COLOR CODES:
PK PINK
BR BROWN
WH WHITE
BL BLUE
GY GRAY
RD RED
YL YELLOW
OR ORANGE
PU PURPLE
GN GREEN
BK BLACK
1
2
3
4
5
6
7
8
9
10
11
12
READ CODES FROM LEFT TO RIGHT
EAC-H
XFMR-H
CIRC-H
LINE-H
E20
E39
E2
E1
E15
E8
E5
E4
E3
E7
E6
LEFT
CENTER
RIGHT
S
W
3
3
1
3
1
3
S
W
1
R
2
2
3
S
W
2
6
R
2
2
6
RD
BL
RD
YL
YL
BK
BK
BK
WH
WH
WH
GY
OR
GN
PU
PU
PU
NEUT2
NEUT1
CIRC-N
EAC-N
HUM-N
XFMR-N
LINE-N
G
N
D
M
I
C
R
O
T
O
TR (7)
G
C
C
TH (3)
24V THERMOSTAT CONNECTIONS N.E.C. CLASS 2 WIRE
GAS VALVE
TRANSFORMER
HLI (8)
Y
2
Y
1
R
L
O
(
6
)
O
MV (10)
W
1
R
M
A
N
U
A
L
R
E
S
E
T
R
O
L
L
O
U
T
L
IM
IT
S
W
IT
C
H
P
R
E
S
S
.
S
W
IT
C
H
C
D
E
H
U
M
PS1(5)
A
U
T
O
R
E
S
E
T
P
R
IM
A
R
Y
L
IM
IT
2
4
V
A
C
NO
HI
MVC (11)
BLWR
AIR
INDOOR
CIRCULATOR
R
TO
MICRO
TO
T
O
+
V
D
C
40 VA
INTERGRATED CONTROL MODULE
RLI (12)
A
U
T
O
R
E
S
E
T
A
U
X
L
IM
IT
HLO (1)
Seven Segment Display
Error Code Status
Seg#3 Seg#2 Seg#1
Internal Faults or IRQ Loss
EEE
Lockout Due to Excessive Retries or Recycles E E 0
Pressure Switch Stuck Closed E E 1
Pressure Switch Open
E E 2
Open High Limit Switch E E 3
Flame Detected When no Flame Should be Present E E 4
Open Fuse E E 5
Low Flame Signal E E 6
Ignitor Relay Fault E E L
Reversed Line Polarity or Grounding Error E E A
Internal Gas Valve Error
E E b
External Gas Valve Error E E C
Open Rollout Switch E 1 1
Ignitor Open
E E n
Inducer Relay Error E E j
TWIN Error E E H
RD
C
H
I
1
2
RD
BK
BK
WH
WH
WH
WH
Grounding Error E10
5
21 43
R
D
B
K
O
R
B
L
Y
L
R
D
B
L
O
R
B
K
Y
L
T
1
T
2
T
3
T
4
T
5
C
O
M
R
D
N
O
C
GY
F
R
O
N
T
C
O
V
E
R
P
R
E
S
S
U
R
E
S
W
IT
C
H
C
NO
F
R
O
N
T
C
O
V
E
R
P
R
E
S
S
U
R
E
S
W
IT
C
H
YL
PU
GY
SWITCH (PRESS.)
FIELD SPLICE
FIELD GND
EQUIPMENT G
ND
INTERNAL TO
PROT. DEVICE
INTEGRATED CONTROL
PLUG CONNE
CTION
SWITCH (TEMP.)
JUNCTION
LOW VOLTAGE (24V)
OVERCURRENT
TERMINAL
IGNITER
LOW VOLTAGE FIELD
HI VOLTAGE (115V)
HI VOLTAGE FIELD
TWIN 24V HU M
E21
E24
W/W1 R
Y/Y1G C
Y2

Table of Contents

Related product manuals