EasyManua.ls Logo

Daikin DPS003 - Page 64

Daikin DPS003
122 pages
Print Icon
To Next Page IconTo Next Page
To Next Page IconTo Next Page
To Previous Page IconTo Previous Page
To Previous Page IconTo Previous Page
Loading...
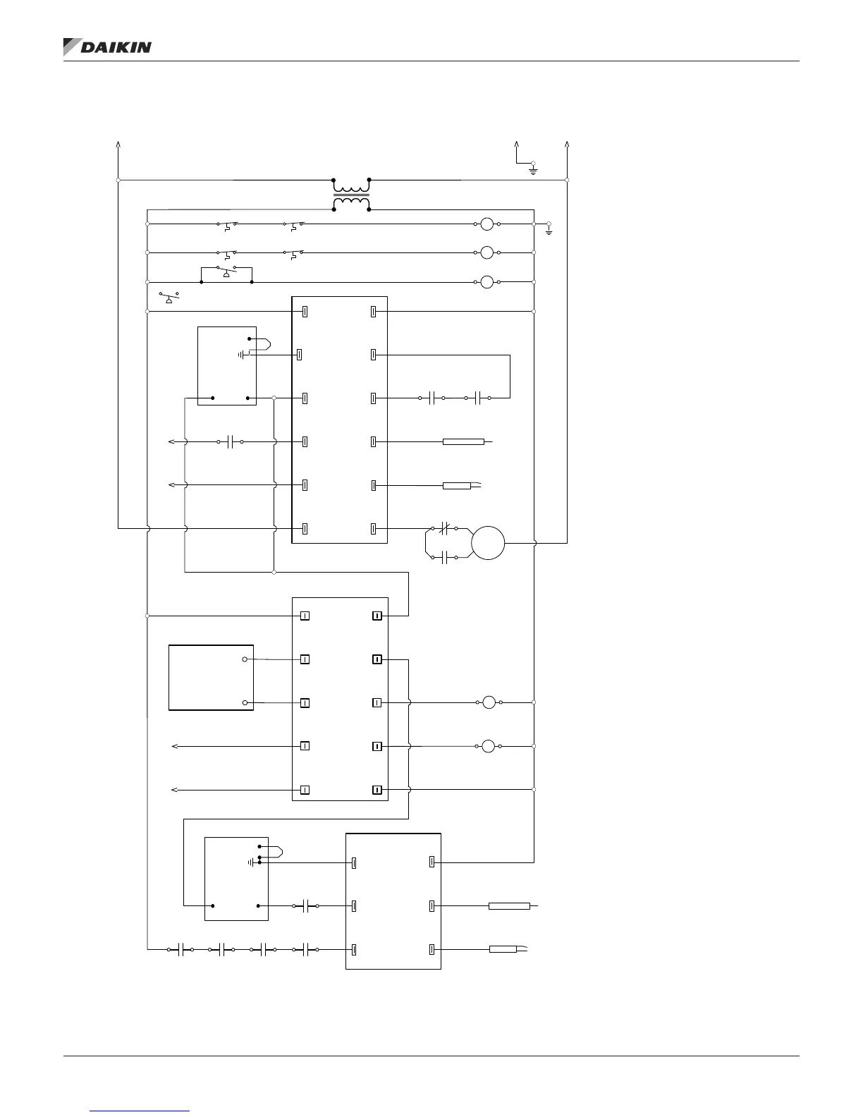
Figure 58: Typical Modulating Control Gas Furnace, 300/450/600 MBH — DPS 016–028 shown
UTEK 1016-575
L1
IND
COMX
MV
PS1
PS2
W
R
FS
HV
C
C
HI
LO
2R-1
1411
3R-1
11
14
4R-1
11 14
MTR
1R-1
11
12
1R-2
11
14
Maxitrol M520B Mod Gas Valve (for NG)
Maxitrol M520BH Mod Gas Valve (for LPG)
Maxitrol SC30-SM2N Controller (for NG)
Maxitrol SC30-SM2L Controller (for LPG)
T1
(com)
T15
EST
T3
(Mod)
+
T4
(Mod)
-
T7
(NO)
T9
(NO)
T11
(NO)
T12
(+)
T13
(-)
T2
(24VAC)
A1
A2
5R
W1
COM
MV
FS
HV
C
Ignition Module 2
UTEC 1016-578
2R
A1 A2
Roll-out Switch #1
TS03
3R
A1 A2
Aux Hi-Limit Switch
TS01
4R
A1 A2
A1
A2
1R
Air Pressure Switch, High
PSL
C
HI LO
5R-1
14
11
2R-2
3R-2
4R-2
5R-2
24
21
24
21
24
21
24
21
(Hi speed)
(Low speed)
24VAC
115VAC
602
601
600
604
603
606
608
605
607
610
612
609
611
614
613
615
616
617
619
621
618
620
623
625
622
624
627
629
626
628
631
630
633
635
632
634
637
639
636
638
641
640
643
645
642
644
603A 603B
605A 605B
608D
610C
612B
606A
608A
610A
612A
633A
605A
606B 606C
608B 608C
610B
615A
615B
618A
618B
618D
618E
616B
621B
621C
624A
624B
627B
627C
633B
603C
636A
639A
639B
642A
642B
645B
642C
639C
636B
645A
650B
650A
653A 653B 653C
656A
656B
656D
656E
TB10
TB10
606D
629A
(Daikin P/N 910172859; includes ignitor and wire)
(Daikin P/N 910172861; includes ignitor and wire)
P1-1/L1
P1-3/GND
Rebel C 300/450/600 MBH Gas Furnace Electrical Schematic
Modulating Control
LED Ignition Module Diagnostic Information
Steady Off: No power or Control hardware fault
Steady On: Power applied, Control OK
1 Flash: Combustion fan motor energized, Pressure switch open
2 Flashes: Combustion fan motor off, Pressure switch closed
3 Flashes: Ignition lockout from too many trials
4 Flashes: Ignition lockout from too many flame losses within single call for heat
5 Flashes: Control hardware fault detected
P1-2/L2
1/A
R/A
+/A
- /A
101
627A
TB10
TB10
102
103
TB10
TB10
TB10
TB10
TB10
TB10
TB10
TB10
TB10
GND
GND
TB10
TB10
TB10
TB10
TB10
103
103
104
104
105
105
108
108
109
109
109
110
110
618C
656C
T3
Class II
40VA
T01
Hi-Limit Switch
TS02
606E
Roll-out Switch #2
TS04
PSH
Air Pressure Switch, Low
Ignition Module #1
IM01
HW VR8305Q Valve (for NG)
HW VR8205Q Valve (for LPG)
Gas Safety Shutoff Valve #1
GSSV01
621A
627A
Maxitrol Controller
MC01
618A
633B
647
646
649
648
651
653
650
652
654
656
655
Maxitrol Modulating Gas Valve
MGV01
636B
Gas Safety Shutoff Valve #2
GSSV02
605A
Flame Sensor
FS01
Spark Igniter
S101
Inducer Fan Motor
IFM01
Flame Sensor
FS02
Spark Igniter
S102
PWR (blue): Main Power
SU (yellow): Start Up
R1 (red): Relay 1 energized
R2 (red): Relay 2 energized
R3 (red): Relay 3 energized
AFS (green): AFS (Air Flow Switch)
MOD (green): Modulation
LED Modulating Control Status
HW VR8305Q Valve (for NG)
HW VR8205Q Valve (for LPG)
IM 1125-7 • REBEL ROOFTOPS 64 www.DaikinApplied.com
opTIonal gas heaT

Table of Contents

Related product manuals