EasyManua.ls Logo

Daikin FCA125AV16 - Installation Site Selection Criteria

Daikin FCA125AV16
68 pages
Print Icon
To Next Page IconTo Next Page
To Next Page IconTo Next Page
To Previous Page IconTo Previous Page
To Previous Page IconTo Previous Page
Loading...
I
 









  



2-3. NOTE TO THE INSTALLER



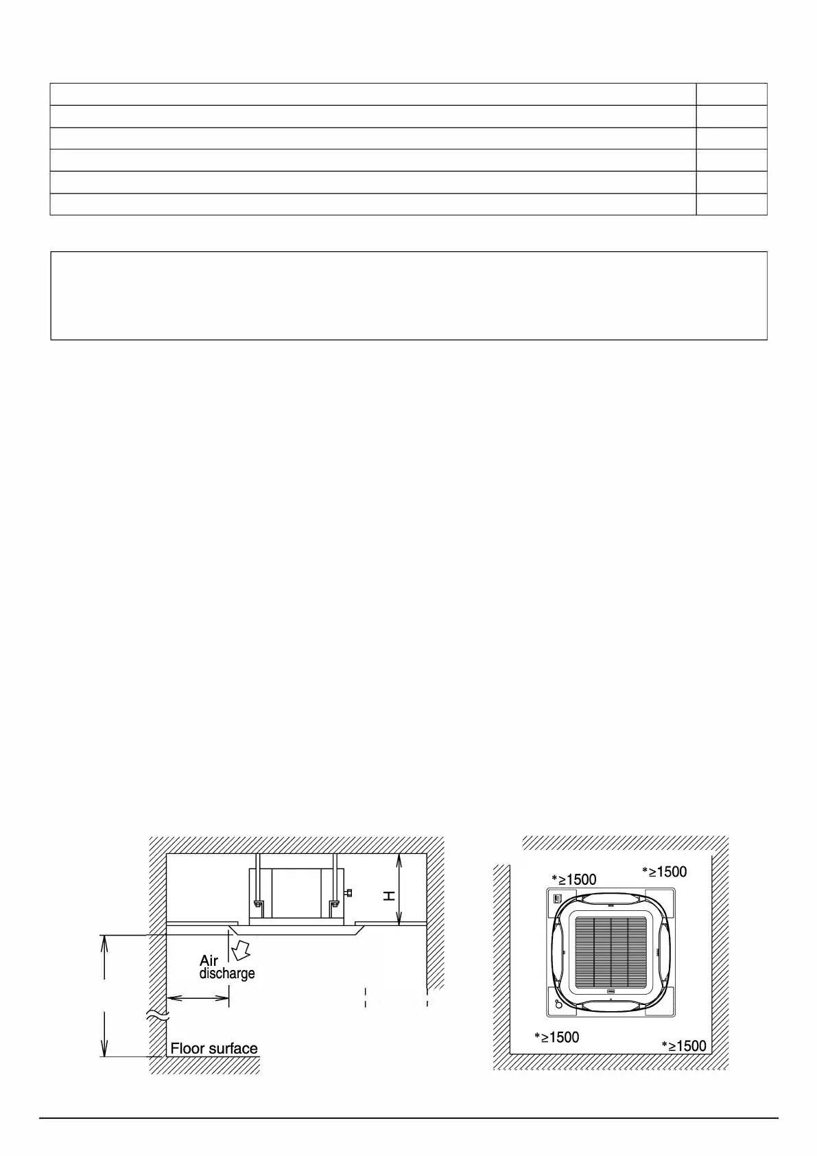
3. SELECTING INSTA LL ATION SITE



°




 

 














2 i1





5


Related product manuals