EasyManua.ls Logo

Daikin FCA125AV16 - Ceiling Opening and Bolt Position

Daikin FCA125AV16
68 pages
Print Icon
To Next Page IconTo Next Page
To Next Page IconTo Next Page
To Previous Page IconTo Previous Page
To Previous Page IconTo Previous Page
Loading...
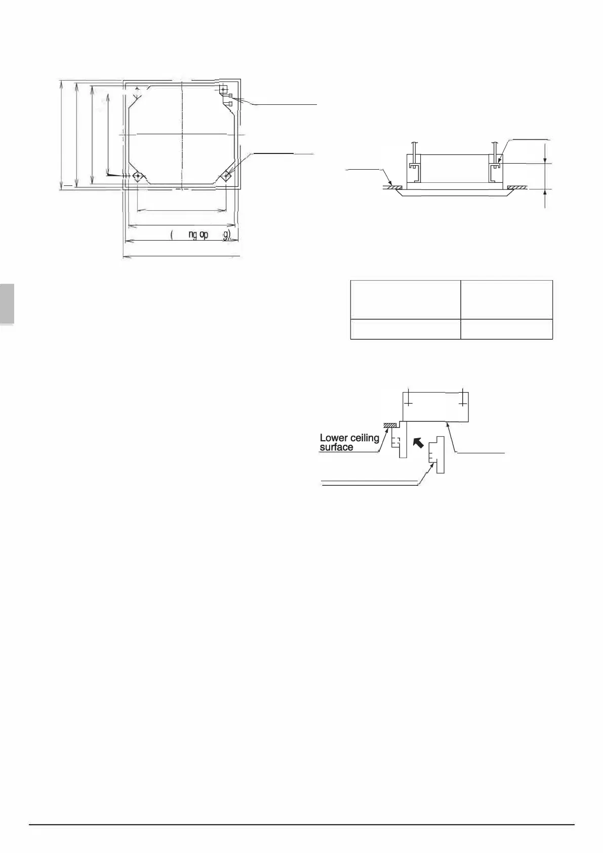
4. PREPARATIONS BEFORE INSLLATION
 
-1-
 



  


 
  
  g -�
  
0 
o
Om�


 

 
 
I
s
.

 



 





(x4)







Decoration Panel
C (mm)
125~130



7





BYCQ125EAF
6/
EA
K
BYCQ125EAF
6/
EA
K

Related product manuals