EasyManua.ls Logo

Daikin FFQ25C - 5 Dimensional Drawings

Daikin FFQ25C
25 pages
Print Icon
To Next Page IconTo Next Page
To Next Page IconTo Next Page
To Previous Page IconTo Previous Page
To Previous Page IconTo Previous Page
Loading...
3
5
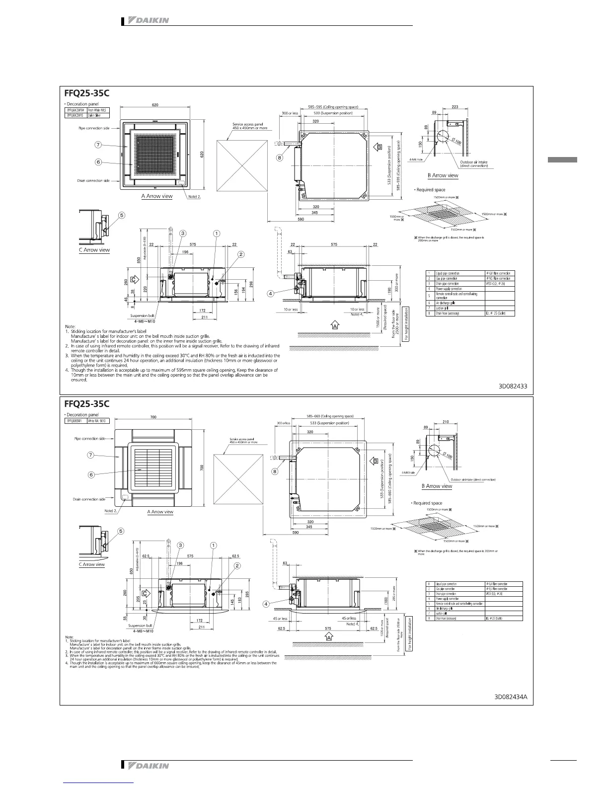
Split - Sky Air • FFQ-C
7
Indoor Unit • FFQ-C
5 Dimensional drawings
5 - 1 Dimensional Drawings

Related product manuals