EasyManua.ls Logo

Daikin FFRN25CXV1 - Page 12

Daikin FFRN25CXV1
73 pages
Print Icon
To Next Page IconTo Next Page
To Next Page IconTo Next Page
To Previous Page IconTo Previous Page
To Previous Page IconTo Previous Page
Loading...
9
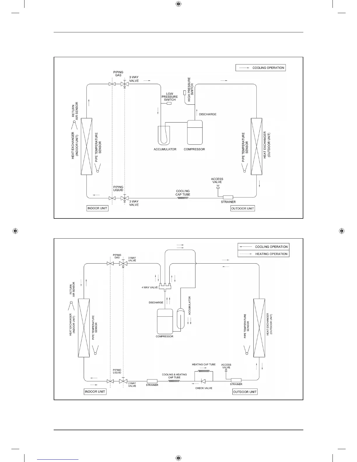
Application Information
Model: FCRN100EXV1 – RR90DXV1 / FCRN100EXV1 – RR100DXV1 / FCRN100EXV1 – RR100DXY1 /
FCRN125EXV1 – RR125DXY1
Model: FCQN50EXV1 – RYN50CXV1 / FCQN60EXV1 – RYN60CXV1
DAIKIN_FFRN.indb 9DAIKIN_FFRN.indb 9 12/27/2012 9:28:08 AM12/27/2012 9:28:08 AM

Related product manuals