EasyManua.ls Logo

Daikin FTK50HVEC - Page 316

Daikin FTK50HVEC
410 pages
Print Icon
To Next Page IconTo Next Page
To Next Page IconTo Next Page
To Previous Page IconTo Previous Page
To Previous Page IconTo Previous Page
Loading...
Si18-201 Troubleshooting - Outdoor Unit Related
Service Diagnosis 303
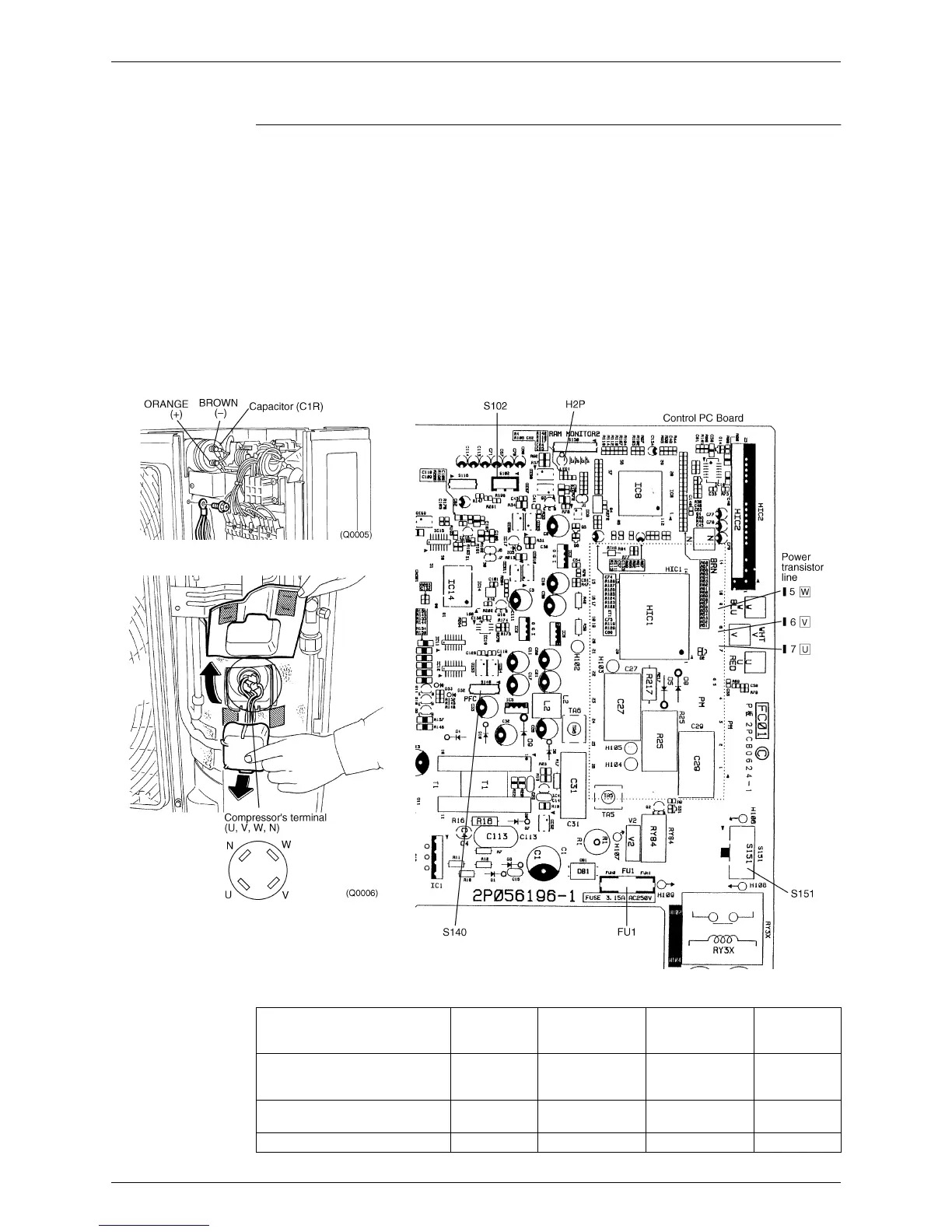
3.4.6 Power Transistor Check (Capacitor Voltage Check)
Check No.6 Power Transistor Check
"
Do not touch the charging unit for 10 minutes after turning the breaker off.
"
Even when touching the charging unit after 10 minutes, use a multiple meter to ensure that
the power supply voltage of power transistor is 50V or less.
"
Measure U,V,W either on terminals of control PC board on the substrate side or on the
compressor terminals.
"
Measure (+),() of the power transistor on (+) / () section of capacitor as shown in the figure
below.
If the resistance value is not normal, replace the control PC board.
Capacitor Voltage Check
"
Follow the below figure to measure the capacitor voltage with breaker kept ON, while take
enough care not to touch the charging unit .
Negative () terminal of tester
(positive (+) terminal for digital
type)
(+) of power
transistor
UVW () of power
transistor
UVW
Positive (+ terminal of tester
(negative () terminal for digital
type)
UVW (+) of power
transistor
UVW () of power
transistor
Normal resistance
Several K
to
several M
Several K
to
several M
Resistance for NG 0 0 to several
0 to several
0

Table of Contents

Related product manuals