EasyManua.ls Logo

Daikin FTK50HVEC - Page 384

Daikin FTK50HVEC
410 pages
Print Icon
To Next Page IconTo Next Page
To Next Page IconTo Next Page
To Previous Page IconTo Previous Page
To Previous Page IconTo Previous Page
Loading...
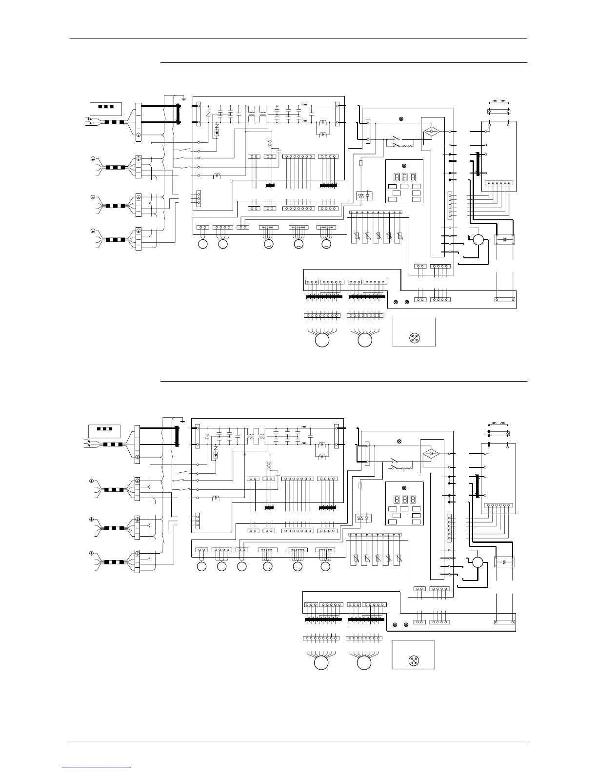
Si18-201 Wiring Diagrams
Appendix 371
RMK140JVMT9
RMX140JVMT9
OIS15 :SOLID STATE RELAY
N :NEUTRAL
M1F
,
M2F :FAN MOTOR
M1C :COMPRESSOR MOTOR
LED2~LED4 :7 SEGMENT
L900~L904 :COIL
L1R
,
L2R :REACTOR
L :LIVE
PM :POWER MODULE
HPS :HIGH PRESSURE SW
H1P~H4P :PILOT LAMP
H102~H105 :WIRE HARNESS
FG1~FG3 :PROTECTIVE EARTH
F1U :FUSE
C900~C927 :CAPACITOR
C1R :CAPACITOR
ACP :CONNECTOR
ACN :CONNECTOR
CT900~CT902:CURRENT TRANSFORMER
PCB1 ~ PCB4 :PRINTED CIRCUIT BOARD
POWER SUPPLY
~ 60Hz 220V
BP 1
BP 3
BP 2
FIELD WIRING
1
3
2
1
3
2
1
3
2
TO BP UNIT
X3M
X2M
X4M
X1M
N
2
2
3
3
1
3
2
L
1
1
RED
REDRED
BLK
BLK
GRN
YLW
Z1C
GRN
WHT
YLW
BLK
BRN
RED
YLW
BLK
Z1C~Z6C :FERRITE CORE
X1M~X4M :TERMINAL STRIP
TB2~TB8 :CONNECTOR
TA 5
,
TA6 :CONNECTOR
V900~V901:VARISTOR
SP :LOW PRESSURE SENSOR
SA900 :SURGE ABSORBER
S7W :TEST OPERATION SW
S6W :SET SW
S5W :
(
UP
)
S4W :PUMP DOWN SW
(
DOWN
)
S1W~S2W :ADDRESS SELLECT SW
S101~S952:CONNECTOR
RY3X
,
RY84:MAGNETIC RELAY
R1T~R5T :THERMISTOR
R250
,
R251 :RESISTOR
S3W :OPERATION MODE SELLECT SW
Y1E~Y3E :ELECTRONIC EXPANSION VALVE
PCB2
S906
1
S952
ACN
S131
ACP
FG2
HPS
FG3
FG1
V900
2
1
1
3
5
3
CT900
1
S105
SA900
SP
V901
C925
C923
4
C926
C924
S111
1
C900
2
1
1
S908
S132
L900
L904
WHT
3
Z2C
2
S907
1
BLK
L903
S110
1
1
S107
Y3E
EV
P
M
C905
C902
WHT
3
3
BLK
5
C916
C915
C927
1
1
1
C903
WHT
C904
S109
S104
Y2E
EV
L
BLK
Z4C
S904
M
BLK
L902
H2P
BLK
L901
PCB3
6
C906
S514
BLK
5
BLK
3
REDRED
Z3C
7
7
(
Lower Side
)
BLK
1
CT901
WHTWHT
1
1
1
CT902
3~
1
BLKBLK
S108
M
Y1E
EV
G
S903
S103
GRYGRY
M
WHT
S504
YLWYLW
BLK
S951
M1F
BLUBLU
6
BLK
ORGORG
4
4
BLK
(
DISCHARGE
)
PNKPNK
2
1
5
Z5C
RED
RED
1
S516
5
R5T
3
REDRED
(
Upper Side
)
(
SUCTION
)
1
WHTWHT
t˚
3~
R4T
1
BLKBLK
2
1
M
S151
PCB1
0IS15
F1U
3.15A
GRYGRY
(
OUTDOOR
)
S506
S114
YLWYLW
t˚
N
L
R3T
M2F
BLUBLU
ORGORG
(
LIQUID
)
t˚
PNKPNK
R2T
5
PCB4
(
CONDENSER
)
LED2
S7W
S1W
H3P
RY84
t˚
R1T
RY3X
TERMINALS OF THE COMP.
ASSIGNMENTS OF
S3W
10
R250
H1P
LED3
S2W
H4P
t˚
U
N
R251
LED4
S4W
1
S6W
S5W
1
S501
S101
~
~
W
V
WHT
2
2
BLK
PM
1
1
N-
P+
S502
S102
W
U
N
V
WHT
+
BLK
6
1
S140
H103
H102
BLK
H104
H105
TA 5
TA 6
4
W
4
N
U
V
BLK
WHT
ORG
BLK
BLK
BLK
BLK
BLK
WHT
ORG
BRN
BRN
BRN
RED
BRN
ACTIVE
MODULE
BLU
WHT
U
N
V
Z6C
3~
M
WHT
WHT
W
M1C
TB8
TB5
TB2
TB4
1
L1R
3D024688C
TB7
1
C1R
S517
WHT
WHT
RED
L2R
+
TB6
6
3
BLK
GRN
YLW
GRN
YLW
GRN
YLW
GRN
YLW
GRN
YLW
GRN
YLW
ACP :CONNECTOR
HPS :HIGH PRESSURE SW
PM :POWER MODULE
N :NEUTRAL
ACN :CONNECTOR
C1R :CAPACITOR
C900~C927 :CAPACITOR
F1U :FUSE
FG1~FG3 :PROTECTIVE EARTH
H102~H105 :WIRE HARNESS
H1P~H4P :PILOT LAMP
L :LIVE
L900~L904 :COIL
L1R
,
L2R :REACTOR
LED2~LED4 :7 SEGMENT
M1C :COMPRESSOR MOTOR
M1F
,
M2F :FAN MOTOR
OIS15 :SOLID STATE RELAY
CT900~CT902:CURRENT TRANSFORMER
PCB1~PCB4 :PRINTED CIRCUIT BOARD
POWER SUPPLY
~ 60Hz 220V
BP 1
BP 2
BP 3
FIELD WIRING
1
3
2
1
1
3
3
2
2
TO BP UNIT
X2M
X3M
X4M
X1M
N
L
1
3
2
1
1
3
3
2
2
RED
RED
RED
BLK
BLK
Z1C
WHT
YLW
BLK
BRN
BLK
R250
,
R251 :RESISTOR
R1T~R5T :THERMISTOR
RY3X
,
RY84:MAGNETIC RELAY
S101~S952:CONNECTOR
S1W~S2W :ADDRESS SELLECT SW
S4W :PUMP DOWN SW
(
DOWN
)
S5W :
(
UP
)
S6W :SET SW
S7W :TEST OPERATION SW
SA900 :SURGE ABSORBER
V900~V901:VARISTOR
SP :LOW PRESSURE SENSOR
TA 5
,
TA6 :CONNECTOR
TB2~TB8 :CONNECTOR
X1M~X4M :TERMINAL STRIP
Y1R :REVERSING SOLENOID VALVE
Z1C~Z6C :FERRITE CORE
S3W :OPERATION MODE SELLECT SW
Y1E~Y3E :ELECTRONIC EXPANSION VALVE
PCB2
S131
1
S952
S906
ACN
ACP
FG2
HPS
FG3
FG1
V900
2
1
1
5
3
3
S105
1
CT900
SA900
SP
C925
V901
C923
4
C926
C924
S111
1
C900
Y1R
S132
2
S908
1
1
L900
L904
WHT
Z2C
2
3
1
S907
BLK
L903
S110
1
1
S107
Y3E
EV
P
M
C905
C902
WHT
3
3
BLK
5
C916
C915
1
C927
1
1
C903
WHT
S109
C904
S104
BLK
Z4C
Y2E
EV
L
S904
M
L902
BLK
H2P
L901
C906
BLK
PCB3
6
S514
BLK
5
BLK
3
RED
RED
Z3C
7
7
BLK
CT901
1
WHT
WHT
1
1
1
CT902
3~
S108
BLK
BLK
1
M
S103
S903
GRY
GRY
EV
G
Y1E
M
WHT
S504
YLW
YLW
S951
BLK
M1F
BLU
BLU
6
BLK
ORG
ORG
4
4
BLK
PNK
PNK
2
1
5
Z5C
S516
5
1
R5T
3
RED
RED
1
WHT
WHT
t˚
3~
R4T
BLK
BLK
1
M
1
2
S151
PCB1
0IS15
F1U
3.15A
GRY
GRY
S506
S114
YLW
YLW
t˚
N
L
R3T
M2F
BLU
BLU
ORG
ORG
t˚
PNK
PNK
R2T
5
PCB4
RY84
H3P
S7W
S1W
t˚
RY3X
R1T
TERMINALS OF THE COMP.
ASSIGNMENTS OF
S3W
10
R250
H1P
S2W
H4P
t˚
U
N
R251
1
1
S501
S101
S4W
S5W
S6W
~
~
W
V
WHT
2
2
BLK
PM
1
1
P+
N-
S502
S102
W
U
N
V
WHT
+
BLK
6
1
BLK
H104
W
TA 5
TA 6
U
N
4
4
V
BLK
WHT
WHT
BLK
BLK
BLK
BLK
BLK
BRN
RED
BRN
BRN
BRN
ORG
ACTIVE
MODULE
BLU
WHT
U
N
Z6C
V
3~
M
M1C
W
WHT
WHT
TB8
TB4
TB2
TB5
1
3D024687C
L1R
TB7
1
C1R
S517
RED
WHT
WHT
L2R
+
TB6
6
3
BLK
RED
RED
RED
LED2
LED3
LED4
(
DISCHARGE
)
(
OUTDOOR
)
(
CONDENSER
)
(
LIQUID
)
(
SUCTION
)
ORG
H105
H102
H103
S140
(
Lower Side
)
(
Upper Side
)
GRN
YLW
GRN
YLW
GRN
YLW
GRN
YLW
GRN
YLW
GRN
YLW
GRN
YLW
GRN
YLW

Table of Contents

Related product manuals