EasyManua.ls Logo

Daikin FTK50HVEC - Page 391

Daikin FTK50HVEC
410 pages
Print Icon
To Next Page IconTo Next Page
To Next Page IconTo Next Page
To Previous Page IconTo Previous Page
To Previous Page IconTo Previous Page
Loading...
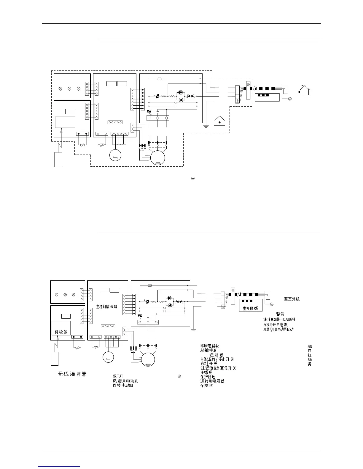
Wiring Diagrams Si18-201
378 Appendix
FLK25 / 35 / 50 / 60HVE (A) , FLK25 / 35 / 50 / 60HVET
FLK25 / 35 / 50 / 60HVEC
SIGNAL
RECEIVER
LED
H1P
PCB4
PCB3
CONTROLLER
WIRELESS
LED
H2P
S7W
REMOTE
LED
H3P
R1T
S31
t˚
S27
S25
S24
S26
R2T
(
S32
H1P~H3P:PILOT LAMP
M1F :FAN MOTOR
M1S :SWING MOTOR
t˚
CONTROL
CENTRALIZED
S2W
PCB1
S21
M
S6
S8W
M1S
X21A
S37
(
S7
PCB2
S36S36
S1
BLK
1~
M
3.15A
t
FU
˚
C70
WHT
M1F
RED
X11A
C70 :RUNNING CAPACITOR
FU :FUSE
X1M :TERMINAL STRIP
S8W :CLEANING INDICATOR RESET SWITCH
S2W :ADDRESS SWITCH
S7W :OPERATION SWITCH
R1T
,
R2T :THERMISTOR
PCB1~PCB4 :PRINTED CIRCUIT BOARD
S1~S37
,
X11A
,
X21A:CONNECTOR
:PROTECTIVE EARTH
H3
H2
H1
indoor
WHT
RED
BLK
X1M
1
2
3
NOTE THAT OPERATION WILL
RESTART AUTOMATICALLY IF
THE MAIN POWER SUPPLY IS
TURNED OFF AND THEN BACK
ON AGAIN.
FIELD WIRING.
CAUTION
1
3
2
3D024309
outdoor
TERMINAL FOR
GRN
/
YLW
RECEIVER
SIGNAL
H1P
LED
PCB4
PCB3
H2P
LED
WIRELESS
REMOTE
CONTROLLER
S7W
H3P
LED
R1T
S31
t˚
S27
S25
S24
S26
(
R2T
S32
H1P~H3P : PILOT LAMP
M1F : FAN MOTOR
M1S : SWING MOTOR
t˚
TERMINAL FOR
S2W
PCB1
S21
M
S6
S8W
M1S
X21A
S37
S7
S36
PCB2
S1
BLK
3.15A
1~
FU
M
t˚
C70
WHT
M1F
RED
X11A
PCB1~PCB4 : PRINTED CIRCUIT BOARD
R1T
,
R2T : THERMISTOR
S1~S37
,
X11A
,
X21A: CONNECTOR
S7W : OPERATION SWITCH
S2W : ADDRESS SWITCH
S8W :
CLEANING INDICATOR RESET SWITCH
X1M : TERMINAL STRIP
: PROTECTIVE EARTH
C70 : RUNNING CAPACITOR
FU : FUSE
H3
H2
H1
GRN
NOTE THAT OPERATION WILL
RESTART AUTOMATICALLY IF
THE MAIN POWER SUPPLY IS
TURNED OFF AND THEN BACK
ON AGAIN.
WHT
RED
BLK
/
YLW
X1M
CAUTION
1
2
3
FIELD WIRING.
1
3
2
TO OUTDOOR UNIT
BLK:
WHT:
RED:
GRN:
YLW:
3D024345
CENTRALIZED
CONTROL
)

Table of Contents

Related product manuals