EasyManua.ls Logo

Daikin FTK60HVEC - Page 392

Daikin FTK60HVEC
410 pages
Print Icon
To Next Page IconTo Next Page
To Next Page IconTo Next Page
To Previous Page IconTo Previous Page
To Previous Page IconTo Previous Page
Loading...
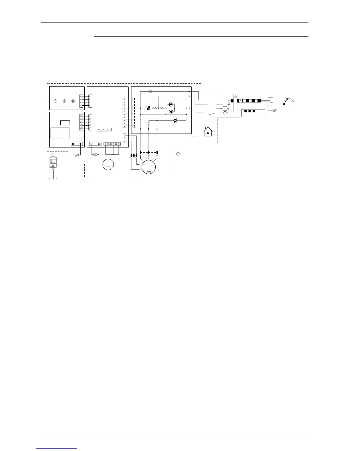
Si18-201 Wiring Diagrams
Appendix 379
FLK50 / 60JVEA (9)
SIGNAL
RECEIVER
LED
H1P
PCB4
PCB3
CONTROLLER
WIRELESS
LED
H2P
S1W
REMOTE
LED
H3P
R1T
S31
t˚
S27
S25
S24
S26
R2T
S32
t˚
S21
PCB1
HA
M
S6
M1S
X21A
S37
S7
PCB2
S36
H4
100˚C
3.15A
1~
M
t
FU
H5
˚
C70
M1F
H6
X11A
C70 :RUNNING CAPACITOR
FU :FUSE
H1P~H3P :PILOT LAMP
M1F :FAN MOTOR
M1S :SWING MOTOR
:PROTECTIVE EARTH
H1
H2
H3
GRN
indoor
WHT
RED
BLK
YLW
X1M
1
2
3
NOTE THAT OPERATION WILL
RESTART AUTOMATICALLY IF
THE MAIN POWER SUPPLY IS
TURNED OFF AND THEN BACK
ON AGAIN.
PCB1~PCB4 :PRINTED CIRCUIT BOARD
R1T
,
R2T :THERMISTOR
S6~S37
,
X11A
,
X21A :CONNECTOR
S1W :OPERATION SWITCH
(
SW7
)
X1M :TERMINAL STRIP
CAUTION
1
3
2
3D025030
outdoor
FIELD WIRING.

Table of Contents

Related product manuals