EasyManua.ls Logo

Daikin FTK60HVEC - Page 400

Daikin FTK60HVEC
410 pages
Print Icon
To Next Page IconTo Next Page
To Next Page IconTo Next Page
To Previous Page IconTo Previous Page
To Previous Page IconTo Previous Page
Loading...
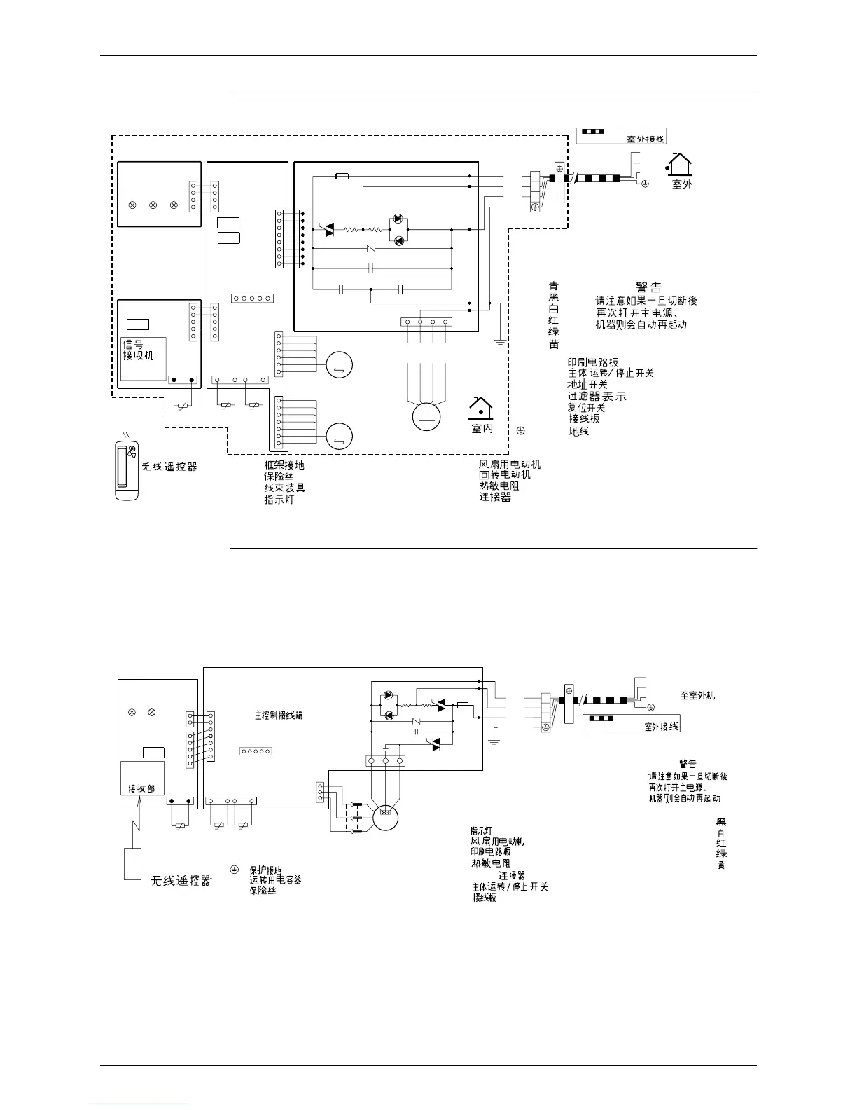
Si18-201 Wiring Diagrams
Appendix 387
FTX50 / 60HVEC
CDX25 / 35 / 50 / 60HAVEC, CDX25 / 35JVEC
RECEIVER
SIGNAL
H1P
LED
PCB3
PCB4
S1W
CONTROLLER
LED
H2P
WIRELESS
REMOTE
LED
H3P
R1T
S31
t˚
S27
S25
H1P,H2P,H3P
H1,H2,H3
FU
FG
S24
S26
S2W
S8W
R2T
S32
t˚
S21
PCB1
HA
R3T
t˚
S37
:
:
:
:
S6
S8
S36
PCB2
PILOT LAMP
FRAME GROUND
HARNESS
FUSE
3.15A
M
M
Fu
M1S
M2S
S1
RED
M1F
M
BLU
S1~S37
R1T~R3T
M1S,M2S
M1F
YLW
WHT
FG
FG
H2
H1
H3
indoor
:
:
:
:
GRN
WHT
RED
BLK
/
YLW
X1M
S8W
S2W
S1W
PCB1~PCB4
WHT:
GRN:
YLW:
RED:
BLU:
BLK:
X1M
THERMISTOR
SWING MOTOR
CONNECTOR
FAN MOTOR
1
3
2
:
:
:
:
:
:
FIELD WIRING.
RESTART AUTOMATICALLY IF
THE MAIN POWER SUPPLY IS
NOTE THAT OPERATION WILL
TURNED OFF AND THEN BACK
ON AGAIN.
CAUTION
PRINTED CIRCUIT BOARD
CLEANING INDICATOR
OPERATION SWITCH
ADDRESS SWITCH
RESET SWITCH
PROTECTIVE EARTH
TERMINAL STRIP
1
3
2
outdoor
3D013001A
SIGNAL
RECEIVER
H1P
LED
PCB2
S1W
LED
H2P
CONTROLLER
WIRELESS
REMOTE
RTH1
R1T
t˚
S27
S25
S26
R2T
t˚
S21
S32
PCB1
(
R3T
t˚
CENTRALIZED CONTROL
TERMINAL FOR
C70:
FU :
:
S7
RUNNING CAPACITOR
PROTECTIVE EARTH
FUSE
)
X11A
S1
C70
1~
M
M1F
R1T~R3T :
H1P~H2P :
M1F :
PCB1~PCB2 :
S1W :
X1M :
S1~S32,RTH1,X11A:
3.15A
FU
H3
H2
H1
NOTE THAT OPERATION WILL
RESTART AUTOMATICALLY IF
THE MAIN POWER SUPPLY IS
TURNED OFF AND THEN BACK
ON AGAIN.
GRN
WHT
RED
BLK
/
YLW
CAUTION
X1M
1
2
3
PRINTED CIRCUIT BOARD
OPERATION SWITCH
(
SW7
)
TERMINAL STRIP
PILOT LAMP
THERMISTOR
FAN MOTOR
CONNECTOR
FIELD WIRING.
1
3
2
TO OUTDOOR UNIT
GRN :
BLK :
RED :
WHT :
YLW :
3D024408

Table of Contents

Related product manuals