EasyManua.ls Logo

Daikin FTKD60JVE - Page 399

Daikin FTKD60JVE
410 pages
Print Icon
To Next Page IconTo Next Page
To Next Page IconTo Next Page
To Previous Page IconTo Previous Page
To Previous Page IconTo Previous Page
Loading...
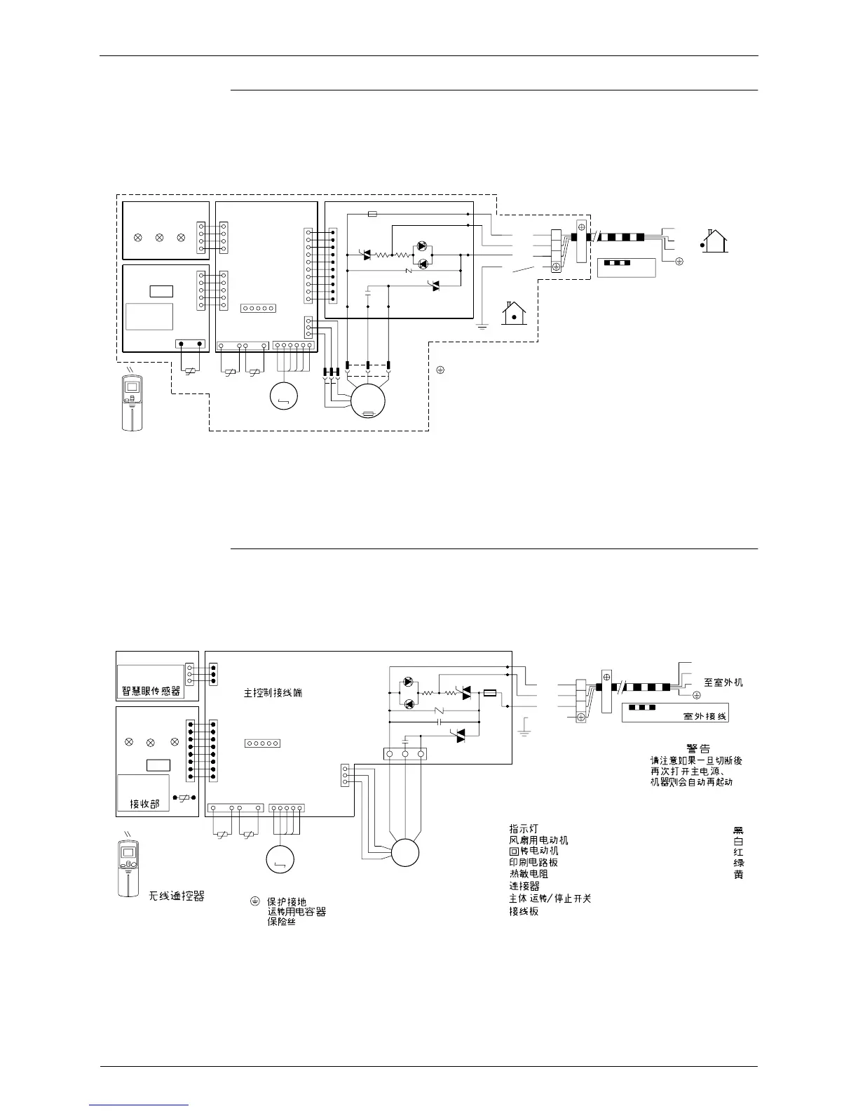
Wiring Diagrams Si18-201
386 Appendix
FLX50 / 60JVEA (9) , FLX50 / 60JV1B
FTX25 / 35JVEC
SIGNAL
RECEIVER
LED
H1P
PCB4
PCB3
CONTROLLER
LED
H2P
S1W
WIRELESS
REMOTE
LED
H3P
R1T
S31
t˚
S25
S27
S24
S26
R2T
t˚
S32
R3T
S21
PCB1
HA
t˚
M
S6
M1S
S37
X21A
S7
PCB2
S36
H4
100˚C
3.15A
1~
M
t
FU
H5
˚
C70
M1F
H6
X11A
C70 :RUNNING CAPACITOR
FU :FUSE
H1P~H3P :PILOT LAMP
M1F:FAN MOTOR
M1S:SWING MOTOR
:PROTECTIVE EARTH
H1
H2
H3
indoor
GRN
WHT
RED
BLK
YLW
X1M
1
2
3
NOTE THAT OPERATION WILL
THE MAIN POWER SUPPLY IS
TURNED OFF AND THEN BACK
RESTART AUTOMATICALLY IF
ON AGAIN.
PCB1~PCB4 :PRINTED CIRCUIT BOARD
R1T~R3T :THERMISTOR
S1W :OPERATION SWITCH
(
SW7
)
X1M :TERMINAL STRIP
S6~S37
,
X11A
,
X21A :CONNECTOR
CAUTION
1
3
2
3D025029
outdoor
FIELD WIRING.
LED1
PCB2
PCB3
H1P
EYE SENSOR
INTELLIGENT-
RECEIVER
SIGNAL
LED2
H2P
CONTROLLER
S1W
WIRELESS
REMOTE
LED3
H3P
R1T
S27
t˚
S36 S35
S26
R2T
t˚
S32
S21
PCB1
(
R3T
CENTRALIZED CONTROL
TERMINAL FOR
t˚
C70
FU
:
:
:
RUNNING CAPACITOR
FUSE
PROTECTIVE EARTH
M
S6
M1S
S7
)
S1
C70
M
1~
M1F
X1M
S1W
S1~S36
PCB1~PCB3
R1T~R3T
M1S
M1F
H1P~H3P
3.15A
FU
H3
H2
H1
:
:
:
:
:
:
:
:
RESTART AUTOMATICALLY IF
THE MAIN POWER SUPPLY IS
NOTE THAT OPERATION WILL
TURNED OFF AND THEN BACK
ON AGAIN.
GRN
CONNECTOR
THERMISTOR
SWING MOTOR
PILOT LAMP
FAN MOTOR
OPERATION SWITCH
(
SW7
)
PRINTED CIRCUIT BOARD
TERMINAL STRIP
RED
WHT
BLK
/
YLW
CAUTION
X1M
2
3
1
FIELD WIRING.
WHT
BLK
GRN
YLW
RED
:
:
:
:
:
2
1
3
3D020024A
TO OUTDOOR UNIT

Table of Contents