EasyManua.ls Logo

Daikin FTX20JV - 5 Piping Diagrams

Daikin FTX20JV
13 pages
Print Icon
To Next Page IconTo Next Page
To Next Page IconTo Next Page
To Previous Page IconTo Previous Page
To Previous Page IconTo Previous Page
Loading...
3
1
5
Spli t - Sky Air • Indoor Unit
7
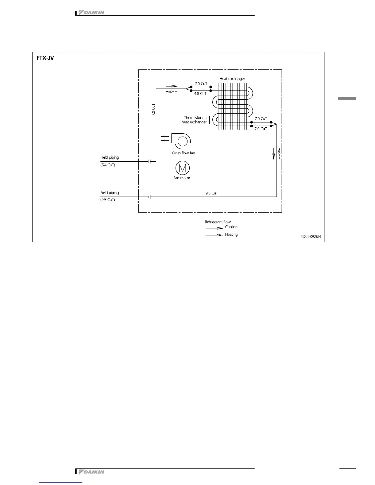
Indoor Unit • Wall mounted unit • FTX-JV
5 Piping diagrams
5 - 1 Piping Diagrams

Related product manuals