EasyManua.ls Logo

Daikin FTXC35EV1B - Sleep Operation; Powerful Operation

Daikin FTXC35EV1B
18 pages
Print Icon
To Next Page IconTo Next Page
To Next Page IconTo Next Page
To Previous Page IconTo Previous Page
To Previous Page IconTo Previous Page
Loading...
ENGLISH
10
To start SLEEP operation
1. Press button.
is displayed on the LCD.
LED Indication lights of unit will be dimmed down.
To cancel SLEEP operation
2. Press button.
will disappear from the LCD.
SLEEP Operation
Notes on SLEEP operation
• Pressing causes the setting to be
cancelled and disappears from the LCD.
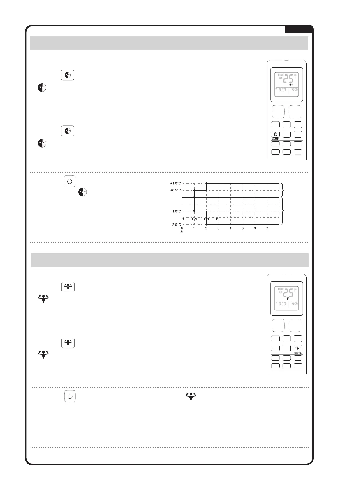
This operation automatically adjust the set
temperature of the air conditioner to provide
a comfort sleeping environment.
SLEEP only available in COOL and HEAT
mode.
COOL
HEAT
1 hour1 hour 1 hour
Enable SLEEP function
Set Temperature
To start POWERFUL operation
1. Press button.
will be displayed on the LCD.
POWERFUL operation ends in 20 minutes. The previous setting
used before POWERFUL operation will be resumed.
To cancel POWERFUL operation
2. Press button.
will disappear from the LCD. The previous setting used before
POWERFUL operation will be resumed.
POWERFUL Operation
Notes on POWERFUL operation
• Pressing causes the setting to be cancelled and disappears from the LCD.
In condition where POWERFUL is started, it will temporarily override the operation of other
functions for 20 minutes.
Indoor unit operating sound will appear to be louder during POWERFUL operation.
POWERFUL operation will not increase the capacity of air conditioner if the air conditioner is
already operating in its maximum capacity.
POWERFUL is available in all operating mode.
1-OM_FTXC_DAIKIN_3P621306-4 D_EN_A4.indd 101-OM_FTXC_DAIKIN_3P621306-4 D_EN_A4.indd 10 21/3/2025 8:49:42 AM21/3/2025 8:49:42 AM

Related product manuals