EasyManua.ls Logo

Daikin FTXS20D3VMW - Page 345

Daikin FTXS20D3VMW
355 pages
To Next Page IconTo Next Page
To Next Page IconTo Next Page
To Previous Page IconTo Previous Page
To Previous Page IconTo Previous Page
Loading...
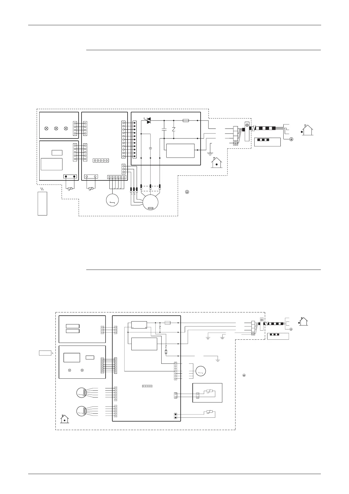
Wiring Diagrams SiENBE12-713
334 Appendix
2.1.3 Floor / Ceiling Suspended Dual Type
FLKS25BAVMB, FLKS35BAVMB, FLKS50BAVMB, FLKS60BAVMB
FLXS25BAVMB, FLXS35BAVMB, FLXS50BAVMB, FLXS60BAVMB
2.1.4 Floor Standing Type
FVXS25FV1B, FVXS35FV1B, FVXS50FV1B
LED
H1P
PCB3
LED
H2P
PCB4
S1W
LED
H3P
R1T
S31
t°
S27
S25
S24
S26
S32
R2T
t°
PCB1
S21
HA
M
S6
M1S
S37
S7
X21A
S36
H4
100
1~
M
t°
H5
C70
°C
M1F
H6
X11A
PCB2
H1P~H3P : PILOT LAMP
M1F : FAN MOTOR
FU : FUSE
M1S : SWING MOTOR
C70 : RUNNING CAPACITOR
3.15A
Fu
: PROTECTIVE EARTH
H2
H3
H1
indoor
GRN
WHT
RED
BLK
/
YLW
X1M
2
3
1
S1W : OPERATION SWITCH
(
SW7
)
S6~S37
,
X11A
,
X21A : CONNECTOR
PCB1~PCB4 : PRINTED CIRCUIT BOARD
R1T~R2T : THERMISTOR
X1M : TERMINAL STRIP
CAUTION
FIELD WIRING.
2
3
1
outdoor
®
NOTE THAT OPERATION WILL
RESTART AUTOMATICALLY IF
THE MAIN POWER SUPPLY IS
TURNED OFF AND THEN BACK
ON AGAIN.
TRANSMISSION
CIRCUIT
SIGNAL
RECEIVER
INFRARED
REMOTE
CONTROL
3D033909E
M
S1W
outdoor
FIELD WIRING.
F1U
M
M
S2W(4)
3
2
1
indoor
3
X1M
2
1
E3
S26
BLU
S4W
:
AIR OUTLET SELECTION SWITCH
S42
PCB4
S48
S41
M1S
X1M
H1P,H2P
3.15A
BRN
RED
1
RECTIFIER
RED
LED2
WHT
M1S
V2
5
H2
GRN
S4W
ORG
6
M2S
PNK
PCB3
V1
4
YLW
E4 :
EARTH TERMINAL(SHIELD PLATE)
LED1
H3
S21
S1
BLU
SA1
S32
E3
: EARTH TERMINAL(HEAT EX.)
H1
S46
HA
S27
M1F
M1F
RED
PCB1
1
F1U
E4
E3
BLU
GRN/YLW
GRN
YLW
E1
1
t°
M2S
: LOWER AIR OUTLET MOTOR
PCB2
H1P
R1T
7
ORG
PNK
BLK
R1T,R2T
S47
t°
H2P
RED
S49
S2W(4)
:
UPWARD AIR FLOW LIMIT SWITCH
R2T
S1W
WHT
ORG
: FUSE
: PILOT LAMP
: FAN MOTOR
: OPERATION SWITCH
PCB1~PCB4
: PRINTED CIRCUIT BOARD
: THERMISTOR
S1~S49
: CONNECTOR
: TERMINAL STRIP
: SWING MOTOR
: PROTECTIVE EARTH
CAUTION
®
~~
NOTE THAT OPERATION WILL
RESTART AUTOMATICALLY IF
THE MAIN POWER SUPPLY IS
TURNED OFF AND THEN BACK
ON AGAIN.
TRANSMISSION
CIRCUIT
SIGNAL
RECEIVER
INFRARED
REMOTE
CONTROL
3D055953

Table of Contents

Other manuals for Daikin FTXS20D3VMW

Related product manuals