EasyManua.ls Logo

Daikin FTXS35D3VMW - Page 343

Daikin FTXS35D3VMW
355 pages
Print Icon
To Next Page IconTo Next Page
To Next Page IconTo Next Page
To Previous Page IconTo Previous Page
To Previous Page IconTo Previous Page
Loading...
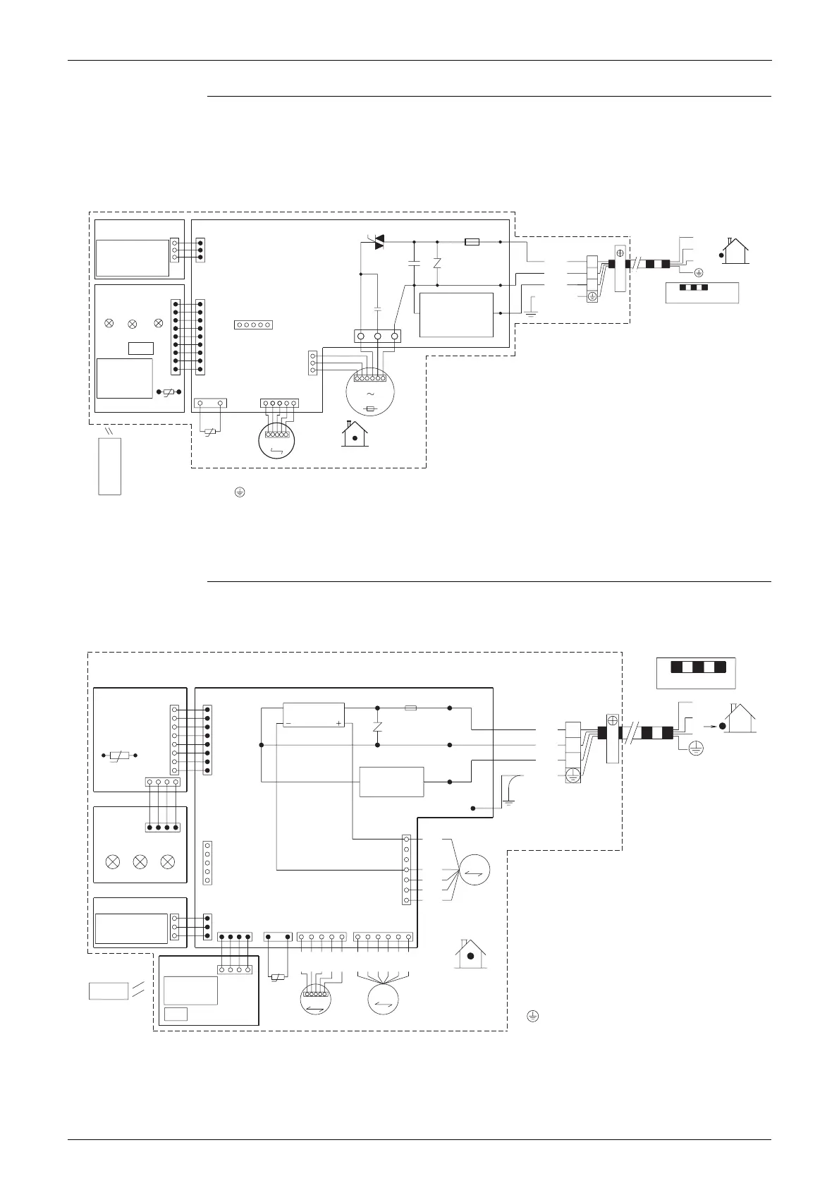
Wiring Diagrams SiENBE12-713
332 Appendix
FTKS20CAVMB, FTKS25CAVMB, FTKS35CAVMB
FTXS20CAVMB, FTXS25CAVMB, FTXS35CAVMB
FTKS50FV1B, FTKS60FV1B, FTKS71FV1B
FTXS50FV1B, FTXS60FV1B, FTXS71FV1B
LED1
PCB2
PCB3
H1P
LED2
H2P
S1W
LED3
H3P
R1T
S27
t
°
S36 S35
S26
S32
R2T
t
°
S21
PCB1
(
FU
C70
:
:
:
S6
FUSE
M
PROTECTIVE EARTH
RUNNING CAPACITOR
M1S
S7
indoor
)
S1
1
t
°
M
M1F
C70
140
°
C
3.15A
Fu
H1P~H3P : PILOT LAMP
M1F : FAN MOTOR
M1S : SWING MOTOR
PCB1~PCB3 : PRINTED CIRCUIT BOARD
R1T~R2T : THERMISTOR
S1~S36 : CONNECTOR
S1W : OPERATION SWITCH
X1M : TERMINAL STRIP
H2
H3
H1
GRN
WHT
RED
BLK
/
YLW
X1M
2
3
1
CAUTION
FIELD WIRING.
2
3
1
outdoor
®
NOTE THAT OPERATION WILL
RESTART AUTOMATICALLY IF
THE MAIN POWER SUPPLY IS
TURNED OFF AND THEN BACK
ON AGAIN.
TRANSMISSION
CIRCUIT
INFRARED
REMOTE
CONTROL
INTELLIGENT
EYE SENSOR
SIGNAL
RECEIVER
TERMINAL FOR
CENTRALIZED CONTROL
3D033599G
PCB4
PCB3
PCB5
LED1
H1P
R1T
t
S37
S38
°
LED2
H2P
LED3
H3P
PCB2
S27
S36
S1W
S26
S35
S21
S29
S28
PCB1
R2T
S32
t°
~
RECTIFIER
1
RED
M1S
M
S6
ORG
YLW
~
PNK
5
BLU
1
BRN
RED
M2S
S8
M
ORG
YLW
7
1
3.15A
S1
PNK
6
Fu
BLU
WHT
BRN
RED
BLU
ORG
H2
H3
H1
INDOOR
FG
M1F
M
GRN
R1T, R2T
M1S, M2S
PCB1~ PCB5
WHT
RED
/
BLK
Fu
M1F
H1 ~ H3
S1 ~ S38
H1P ~ H3P
FG
YLW
X1M
S1W
X1M
3
2
1
: PROTECTIVE EARTH
FIELD WIRING.
CAUTION
3
2
1
OUTDOOR
: FRAME GROUND
: FUSE
: HARNESS
: PILOT LAMP
: FAN MOTOR
: SWING MOTOR
: PRINTED CIRCUIT BOARD
: THERMISTOR
: CONNECTOR
: OPERATION SWITCH
: TERMINAL STRIP
NOTE THAT OPERATION WILL
RESTART AUTOMATICALLY IF
THE MAIN POWER SUPPLY IS
TURNED OFF AND THEN BACK
ON AGAIN.
INFRARED
REMOTE
CONTROL
SIGNAL
RECEIVER
INTELLIGENT
EYE SENSOR
TRANSMISSION
CIRCUIT
3D038530N

Table of Contents

Other manuals for Daikin FTXS35D3VMW

Related product manuals