EasyManua.ls Logo

Daikin FTY-J series - Model

Daikin FTY-J series
60 pages
Print Icon
To Next Page IconTo Next Page
To Next Page IconTo Next Page
To Previous Page IconTo Previous Page
To Previous Page IconTo Previous Page
Loading...
39
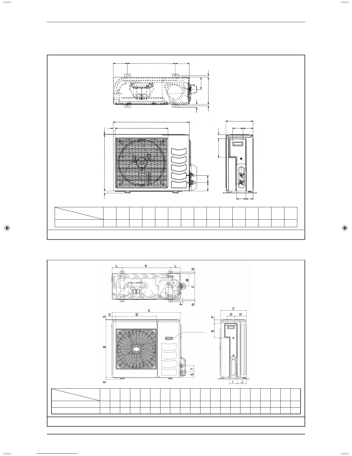
Outline & Dimension
Outdoor Unit
Model: R(Y)09/15CXV1
3
)1.0(
B
FE
NCN
KLL
M
30
)2.
1
(
A
D
19
)
7.
0
(
C
GH
IJ
O
80
3(
.
)1
65
2
(
.
)6
Dimension
Model
ABCDEFGH I JKLMNO
R(Y)09/15CXV1 700 521 250 485 175 36 95 93 86 68 441 130 111 15 18
Note: Dimension in mm
Model: R18/25CXV1 / RY20/25CXV1
For R/RY25CXV1
Dimension
Model
ABCDE FGH I J KLMNOPQRS T
R18/RY20CXV1 855 628 328 508 181 44 93 149 101 113 603 126 164 17 49 32 3 23 73 75
R(Y)25CXV1 855 730 328 513 182 44 93 149 101 113 603 126 164 17 47 32 3 23 73 75
Note: Dimension in mm
DAIKIN_FT(Y).indb 39DAIKIN_FT(Y).indb 39 10/15/2012 4:27:16 PM10/15/2012 4:27:16 PM

Related product manuals