EasyManua.ls Logo

Daikin RCS 140D - Page 72

Daikin RCS 140D
152 pages
Print Icon
To Next Page IconTo Next Page
To Next Page IconTo Next Page
To Previous Page IconTo Previous Page
To Previous Page IconTo Previous Page
Loading...
IM 893-10 • ROOFPAK SINGLEZONE UNITS 72 www.DaikinApplied.com
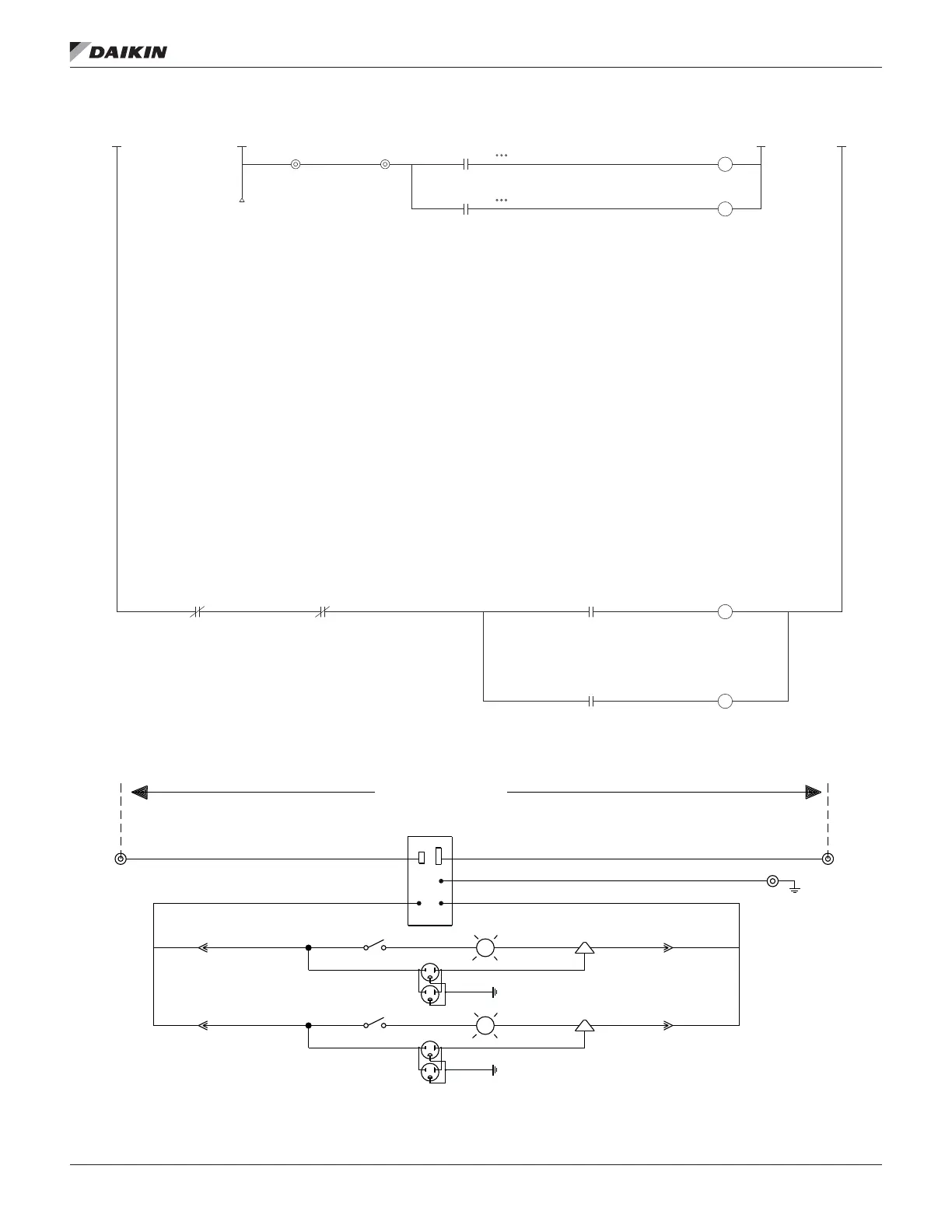
WIrIng dIagraMs
Figure 68 continued: CV Fan Control (SAF and RAF)
Figure 71: Light and Receptacle Power (Field Power)
401A
404A
426C426B426A
431A
TB2
42
TB2
45
2
R68
10
2
R67
10
R68
3
404
1
R67
3
401
1
M20
A2A1
M10
A2A1
jprs
24V SRC
MCB
2 2NO
BO2
RETURN FAN
207
jprs
24V SRC
MCB
1 1NO
BO1
SUPPLY FAN
207
61-9CRS
MCB
207
11(31)
MMP10
12(32)
11(31)
MMP20
12(32)
TO MOTHERBOARD
WIRED INTERNAL
SOURCE 9-16
T3_COM
11.3/
T3_24V
11.3/
115VAC_GF/1
T1_N
86.1/
FIELD SUPPLIED 115V/60/1
1003B1003A
1004B
1005B1005A
N
TB7
G
TB7
H
TB7
REC1
CP SL
GRD
SLCP
PL32
1
S11
PL31
1
S10
G1004
2
PL32
G1012
N
G
REC11
H
31
LT11
BLK WHT
w
2
PL31
G1009
N
G
REC10
H
30
LT10
BLK WHT
w
FIELD SUPPLIED 115V/60/1
H1010-2H1010-1
H775
H776
H775
H1006-2
H1006-1
H776
H775
H775

Table of Contents