EasyManua.ls Logo

Daikin RKD60BVMT - Page 200

Daikin RKD60BVMT
210 pages
Print Icon
To Next Page IconTo Next Page
To Next Page IconTo Next Page
To Previous Page IconTo Previous Page
To Previous Page IconTo Previous Page
Loading...
Si04-306 Wiring Diagrams
Appendix 191
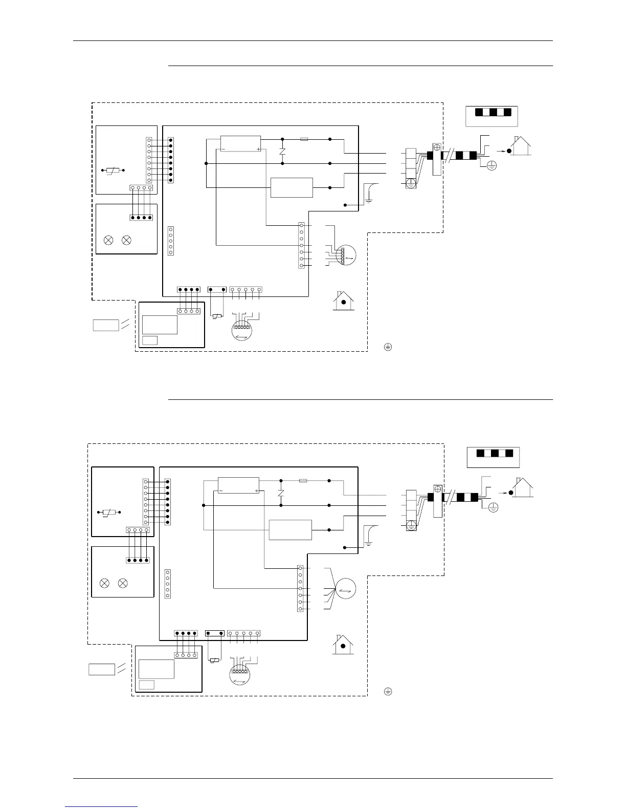
FT(Y)S50BVMB
FT(Y)S60BVMB
CONTROLLER
WIRELESS
REMOTE
PCB4
PCB3
LED1
H1P
R1T
t˚
S37
S38
LED2
H2P
PCB2
S27
S1W
RECEIVER
SIGNAL
S26
S21
S29
S28
PCB1
R2T
S32
t˚
~
RECTIFIER
1
RED
M1S
M
S6
ORG
YLW
~
PNK
5
BLU
TRANSMISSION
CIRCUIT
7
1
3.15A
S1
Fu
WHT
BRN
RED
BLU
ORG
H2
H3
H1
INDOOR
M1F
FG
M
GRN
R1T
,
R2T : THERMISTOR
M1S : SWING MOTOR
Fu : FUSE
H1~H3 : HARNESS
WHT
RED
/
BLK
M1F : FAN MOTOR
H1P~H3P : PILOT LAMP
S1~S38 : CONNECTOR
FG : FRAME GROUND
YLW
X1M : TERMINAL STRIP
S1W : OPERATION SWITCH
PCB1~PCB4
: PRINTED CIRCUIT BOARD
X1M
3
2
1
: PROTECTIVE EARTH
THE MAIN POWER SUPPLY IS
ON AGAIN.
TURNED OFF AND THEN BACK
NOTE THAT OPERATION WILL
RESTART AUTOMATICALLY IF
FIELD WIRING.
CAUTION
3
2
1
OUTDOOR
3D038466A
CONTROLLER
WIRELESS
REMOTE
PCB4
PCB3
LED1
H1P
R1T
t˚
S37
S38
LED2
H2P
PCB2
S27
S1W
RECEIVER
SIGNAL
S26
S21
S29
S28
PCB1
R2T
S32
t˚
~
RECTIFIER
1
RED
M1S
M
S6
ORG
YLW
~
PNK
5
BLU
TRANSMISSION
CIRCUIT
7
1
3.15A
S1
Fu
WHT
BRN
RED
BLU
ORG
H2
H3
H1
INDOOR
FG
M1F
M
GRN
R1T
,
R2T : THERMISTOR
M1S : SWING MOTOR
Fu : FUSE
H1~H3 : HARNESS
WHT
RED
/
BLK
M1F : FAN MOTOR
H1P~H3P : PILOT LAMP
S1~S38 : CONNECTOR
FG : FRAME GROUND
YLW
X1M : TERMINAL STRIP
S1W : OPERATION SWITCH
PCB1~PCB4
: PRINTED CIRCUIT BOARD
: PROTECTIVE EARTH
X1M
3
2
1
THE MAIN POWER SUPPLY IS
ON AGAIN.
TURNED OFF AND THEN BACK
NOTE THAT OPERATION WILL
RESTART AUTOMATICALLY IF
FIELD WIRING.
CAUTION
3
2
1
OUTDOOR
3D038532A

Table of Contents

Other manuals for Daikin RKD60BVMT

Related product manuals