EasyManua.ls Logo

Daikin RKD60BVMT - Outdoor Units

Daikin RKD60BVMT
210 pages
Print Icon
To Next Page IconTo Next Page
To Next Page IconTo Next Page
To Previous Page IconTo Previous Page
To Previous Page IconTo Previous Page
Loading...
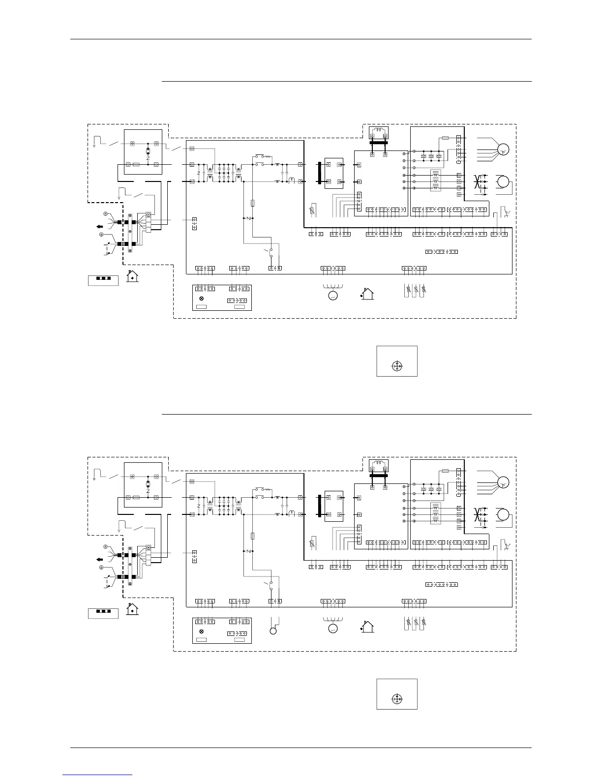
Si04-306 Wiring Diagrams
Appendix 193
2.2 Outdoor Units
RKS 50/60/71 BVMA, RKS 50/60/71 BVMB, RS 50/60 BVMB
RKD 50/60/71 BVM, RKD 50/60/71 BVMA, RKD 50/60/71 BVMT
RXS 50/60/71 BVMA, RXS 50/60/71 BVMB, RYS 50/60 BVMB
RXD 50/60/71 BVMA, RXD 50/60/71 BVMT
~60Hz 220-230V
~50Hz 220-240V
FIELD WIRING
TO INDOOR UNIT
POWER SUPPLY
N
L
2
3
1
V2~V5 : VARISTOR
MRC/W : MAGNETIC RELAY
Y2E :
ELECTRONIC EXPANSION VALVE
E
,
AC1
,
AC2
Z1C
,
Z2C : FERRITE CORE
MRM10
,
MRM20
R1T~R3T : THERMISTOR
X1M : TERMINAL STRIP
H1
,
H2
,
HL
L1
,
L2
,
X11A : CONNECTOR
HE1
,
HE2
,
HAC1
GRN
FU1
,
FU2, FU201
: FUSE
YLW
HL
indoor
HE2
GRN
30A
FU1
BLK
PCB2
YLW
SA1
V3
X1M
2
3
1
HAC1
HE1
GRN
WHT
BLK
RED
YLW
AC2
AC1
E
S10
V2
1
1
3
LEDA
S1W
1
BLU
S52
S51
BLU
S4W : LOCAL SETTING SW
(
SW4
)
S2~S102 : CONNECTOR
LEDA : PILOT LAMP
L : LIVE
N : NEUTRAL
S1W :
FORCED OPERATION ON/OFF SW
(
SW1
)
PCB1
,
PCB2
:
PRINTED CIRCUIT BOARD
SA1 : SURGE ARRESTER
DB1 : DIODE BRIDGE
M1C : COMPRESSOR MOTOR
M1F : FAN MOTOR
BLU
BLU
5
5
BLU
S2
1
1
RED
S102
S4W
S101
BLK
WHT
5
5
V5
GRN
MRM20
MRM10
FU2
3.15A
1
MRC W
3
S80
CT1
H2
H1
SPM : SYSTEM POWER MODULE
CT1 : CURRENT TRANSFORMER
Q1L : OVERLOAD PROTECTOR
L1R : REACTOR
MID :
MOLDED INTER CONNECT DEVICE
t˚
YLW
BLU
R12T
1
BLK
S91
Z2C
BLK
3
1
WHT
YLW
Y2E
S20
~
DB1
M
~
1
ORG
BLK
+
-
BLU
S32
BLK
BRN
PCB1
6
BLK
RED
BLK
RED
BLK
5
BLK
CN11
outdoor
5
1
+
-
ORG
L1
1
1
BLK
BLK
SPM
BLK
S31
BLK
CN14
BLK
ORG
L2
V
BLK
L1R
Z1C
BLK
W
U
BLK
(
OUTDOOR
)
P2
9
N1
P1
W
V
U
BLK
10
ASSIGNMENTS OF
TERMINALS OF THE COMP.
R3T
N
1
(
CONDENSER
)
BLU
t˚
BLU
R2T
S90
GRY
1
1
(
DISCHARGE
)
TB6
TB4
TB5
P2
N1
P1
WHT
t˚
GRY
MID
R1T
S6
ORG
BLK
6
+++
BRN
t˚
BLK
S72
S71
1
BLU
8
8
FU201
3.15A
RED
1
1
S70
BRN
W
V
U
N
7
1
8
RED
S33
S34
YLW
WHT
BLU
RED
BRN
ORG
RED
BRN
BLU
YLW
X11A
10
10
BLU
YLW
BRN
BLU
RED
1
3D037866D
GRY
V
S40
1
~
3
~
M1F
M1C
M
M
BLK
4
W
U
Q1L
BLK
N
~60Hz 220-230V
~50Hz 220-240V
FIELD WIRING
TO INDOOR UNIT
POWER SUPPLY
N
L
2
3
1
V2~V5 : VARISTOR
MRC/W : MAGNETIC RELAY
Y2E :
ELECTRONIC EXPANSION VALVE
E
,
AC1
,
AC2
Z1C
,
Z2C : FERRITE CORE
MRM10
,
MRM20
R1T~R3T : THERMISTOR
X1M : TERMINAL STRIP
H1
,
H2
,
HL
L1
,
L2
,
X11A : CONNECTOR
HE1
,
HE2
,
HAC1
GRN
FU1
,
FU2, FU201
: FUSE
YLW
HL
indoor
HE2
GRN
30A
FU1
BLK
PCB2
YLW
SA1
V3
X1M
2
3
1
HAC1
HE1
GRN
WHT
BLK
RED
YLW
AC2
AC1
E
S10
V2
1
1
3
LEDA
S1W
1
BLU
S52
S51
BLU
S4W : LOCAL SETTING SW
(
SW4
)
S2~S102 : CONNECTOR
LEDA : PILOT LAMP
L : LIVE
N : NEUTRAL
S1W :
FORCED OPERATION ON/OFF SW
(
SW1
)
PCB1
,
PCB2
:
PRINTED CIRCUIT BOARD
SA1 : SURGE ARRESTER
Y1R :
REVERSING SOLENOID VALVE COIL
DB1 : DIODE BRIDGE
M1C : COMPRESSOR MOTOR
M1F : FAN MOTOR
BLU
BLU
5
5
BLU
S2
1
1
RED
S102
S4W
S101
BLK
WHT
5
5
V5
GRN
MRM20
MRM10
FU2
3.15A
1
MRC W
Y1R
BLK
3
BLK
S80
CT1
H2
H1
SPM : SYSTEM POWER MODULE
CT1 : CURRENT TRANSFORMER
Q1L : OVERLOAD PROTECTOR
L1R : REACTOR
MID :
MOLDED INTER CONNECT DEVICE
t˚
YLW
BLU
R12T
1
BLK
S91
Z2C
BLK
3
1
WHT
YLW
Y2E
S20
~
DB1
M
~
1
ORG
BLK
+
-
BLU
S32
BLK
BRN
PCB1
6
BLK
RED
BLK
RED
BLK
5
BLK
CN11
outdoor
5
1
+
-
ORG
L1
1
1
BLK
BLK
SPM
BLK
S31
BLK
CN14
BLK
ORG
L2
V
BLK
L1R
Z1C
BLK
W
U
BLK
(
OUTDOOR
)
P2
9
N1
P1
W
V
U
BLK
10
ASSIGNMENTS OF
TERMINALS OF THE COMP.
R3T
N
1
(
CONDENSER
)
BLU
t˚
BLU
R2T
S90
GRY
1
1
(
DISCHARGE
)
TB6
TB4
TB5
P2
N1
P1
WHT
t˚
GRY
MID
R1T
S6
ORG
BLK
6
+++
BRN
t˚
BLK
S72
S71
1
BLU
8
8
FU201
3.15A
RED
1
1
S70
BRN
W
V
U
N
7
1
8
RED
S33
S34
YLW
WHT
BLU
RED
BRN
ORG
RED
BRN
BLU
YLW
X11A
10
10
BLU
YLW
BRN
BLU
RED
1
3D037854D
GRY
V
S40
1
~
3
~
M1F
M1C
M
M
BLK
4
W
U
Q1L
BLK
N

Table of Contents

Other manuals for Daikin RKD60BVMT

Related product manuals