EasyManua.ls Logo

Daikin Super Multi NX FDKS60CVMB

Daikin Super Multi NX FDKS60CVMB
501 pages
To Next Page IconTo Next Page
To Next Page IconTo Next Page
To Previous Page IconTo Previous Page
To Previous Page IconTo Previous Page
Loading...
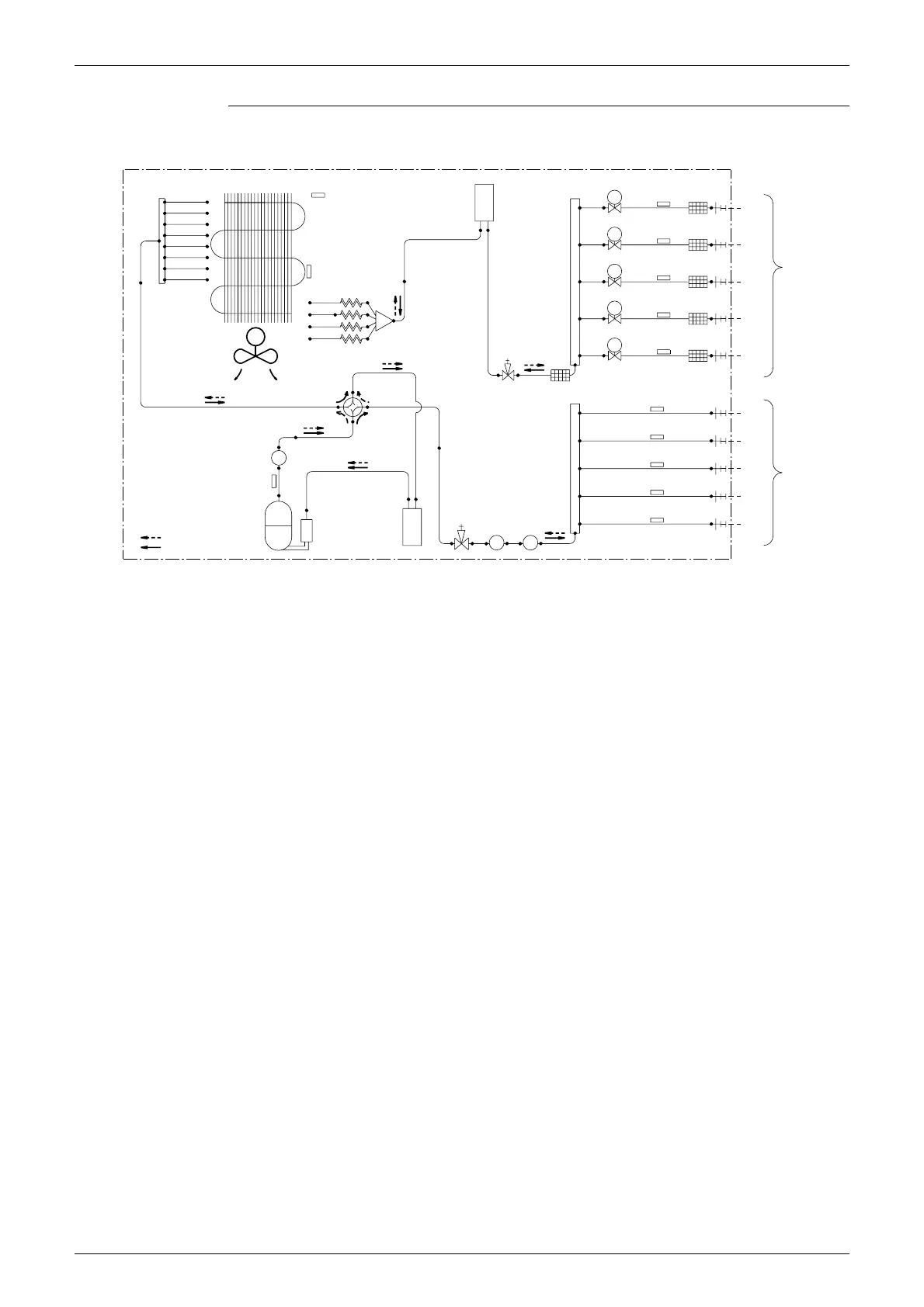
Piping Diagrams SiBE121021_C
474 Appendix
5MXS90E2V3B
12.7CuT
HEATING
7.9CuT
7.9CuT
7.9CuT
7.9CuT
7.9CuT
7.9CuT
7.9CuT
7.9CuT
15.9CuT
MUFFLER
7.9CuT
7.9CuT
7.9CuT
7.9CuT
15.9CuT
15.9CuT
9.5CuT
15.9CuT
9.5CuT
15.9CuT
9.5CuT
9.5CuT
FILTER
7.9CuT
7.9CuT
7.9CuT
7.9CuT
7.9CuT
12.7CuT
12.7CuT
12.7CuT
12.7CuT
12.7CuT
15.9CuT 12.7CuT
15.9CuT
OUTDOOR TEMPERATURE
THERMISTOR
DISCHARGE PIPE
THERMISTOR
GAS LINE
STOP VALVE
LIQUID LINE
STOP VALVE
MOTOR OPERATED
VALVE (A)
MOTOR OPERATED
VALVE (B)
MOTOR OPERATED
VALVE (C)
MOTOR OPERATED
VALVE (D)
MOTOR OPERATED
VALVE (E)
LIQUID PIPE
THERMISTOR
(ROOM-A)
LIQUID PIPE
THERMISTOR
(ROOM-B)
LIQUID PIPE
THERMISTOR
(ROOM-C)
LIQUID PIPE
THERMISTOR
(ROOM-D)
LIQUID PIPE
THERMISTOR
(ROOM-E)
FIELD
PIPING
LIQUID
FIELD
PIPING
GAS
HEAT EXCHANGER
(CONDENSER)
THERMISTOR
GAS PIPE THERMISTOR
(ROOM-A)
GAS PIPE THERMISTOR
(ROOM-B)
GAS PIPE THERMISTOR
(ROOM-C)
GAS PIPE THERMISTOR
(ROOM-D)
GAS PIPE THERMISTOR
(ROOM-E)
ROOM A
(6.4 CuT)
ROOM B
(6.4 CuT)
ROOM C
(6.4 CuT)
ROOM D
(6.4 CuT)
ROOM E
(6.4 CuT)
ROOM A
(9.5 CuT)
ROOM B
(9.5 CuT)
ROOM C
(12.7 CuT)
ROOM D
(15.9 CuT)
ROOM E
(15.9 CuT)
HEAT EXCHANGER
HEADER
DC FAN MOTOR
M
PROPELLER FAN
4-WAY
VALVE
CAPILLARY TUBE
DISTRIBUTOR
RECEIVER
HEADER
EVB
EVC
EVD
EVE
FILTER
FILTER
FILTER
FILTER
FILTER
HEADER
MUFFLER
MUFFLER
ACCUMULATOR
ACCUMULATOR
COMPRESSOR
REFRIGERANT FLOW
COOLING
HEATING
MUFFLER
3D051936A
OUTDOOR UNIT
EVA

Table of Contents

Related product manuals