EasyManua.ls Logo

Daikin Super Multi NX FDKS60CVMB

Daikin Super Multi NX FDKS60CVMB
501 pages
To Next Page IconTo Next Page
To Next Page IconTo Next Page
To Previous Page IconTo Previous Page
To Previous Page IconTo Previous Page
Loading...
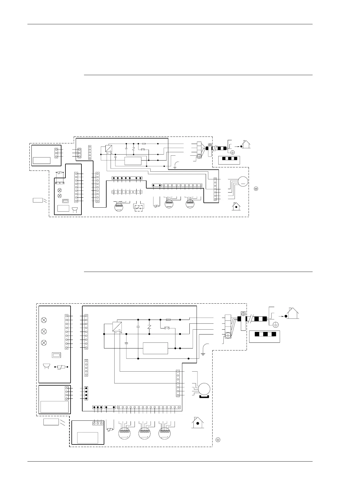
SiBE121021_C Wiring Diagrams
Appendix 475
2. Wiring Diagrams
2.1 Indoor Unit
2.1.1 Wall Mounted Type
FTXG25/35JV1BW(S), CTXG50JV1BW(S)
FTXS20/25/35/42/50G2V1B, FTXS20/25/35/42/50J2V1B, ATXS20/25/35/42/50G2V1B
X1M
1
A1P
F1U
H1
S21
2
BLK
1
S25
3.15A
~
3
2
WHT
A3P
C102 V1
1
1
BLK
H2
OUTDOOR
RED
3
MR10
S36
HA
BLK
GRN
/
BLK
3
3
YLW
C101
H3
GRN
FIELD WIRING.
/
YLW
FG
A2P
S51
S46
S200
BLK
11
71S42
R1T
BLK
7
S41S32
RED
S52
BLK
M
12 3 1028597416
BLK
1
3
4
BLK
BLK
BLK
BLK
BLK
BLK
BLK
BLK
3
1
8
BLU
M1F
H1P
BLK
BRN
BLK
CAUTION
BLU
BLU
ORG
PNK
PNK
BLK
BLK
RED
RED
H2P
YLW
YLW
ORG
ORG
BLK
1
WHT
BLK
BLK
BLK
BLK
BLK
BLK
BLK
BLK
S1W
99
MSW
MSW
BZ
M
R2T
M2SM1S
INDOOR
S1C
M1
(SUB)(MAIN)
INTELLIGENT EYE
SENSOR
WIRELESS
REMOTE
CONTROLLER
SIGNAL
RECEIVER
TRANSMISSION
CIRCUIT
FG
F1U
H1P, H2P
M1F
M1S, M2S
M1
A1P~A3P
R1T, R2T
S25~S200
S1W
S1C
X1M
BZ
: FRAME GROUND
: FUSE
: PILOT LAMP
: FAN MOTOR
: SWING MOTOR
: STEPPING MOTOR
: PRINTED CIRCUIT BOARD
: THERMISTOR
: CONNECTOR
: OPERATION SWITCH
: LIMIT SWITCH
: TERMINAL STRIP
: BUZZER
: PROTECTIVE EARTH
NOTE THAT OPERATION WILL
RESTART AUTOMATICALLY IF
THE MAIN POWER SUPPLY IS
TURNED OFF AND THEN BACK
ON AGAIN.
3D065507B
1
FU1
X1M
PCB1
PCB3
S46
S49
2
H1
F1U
BLK
11
BLK
1
LED1
3
BLK
3.15A
H1P
WHT
~
2
BLK
C102 V1
BLK
LED2
RED
3
H2
MR10
BLK
GRN
H2P
BLK
BLK
LED3
GRN
C101
BLK
/
H3
YLW
H3P
99
BLK
FG
SW1
S21
S1
HA
7
RED
RTH1BZ
R1T
4
BLU
S25
MS
BRN
BLK
11
PCB4
ORG
BLK
3~
S26
BLK
1
WHT
S41
S47 S32
44
BLK
M1F
16 4121121431311027359611815
BLK
BLK
BLK
BLK
BLK
PNK
PNK
PNK
BLU
BLU
BLU
RED
RED
RED
ORG
ORG
ORG
YLW
YLW
YLW
S48
PCB2
1
3
R2T
MSW MSWMSW
M2SM1S M3S
WIRELESS
REMOTE
CONTROLLER
INTELLIGENT EYE
SENSOR
SIGNAL
RECEIVER
TRANSMISSION
CIRCUIT
FIELD WIRING.
NOTE THAT OPERATION WILL RESTART
AUTOMATICALLY IF THE MAIN POWER SUPPLY
IS TURNED OFF AND THEN BACK ON AGAIN.
BZ
C101, C102
FG
F1U
H1P~H3P
MR10
M1F
M1S~M3S
PCB1~PCB4
R1T, R2T
S1~S49
SW1
V1
X1M
: BUZZER
: CAPACITOR
: FRAME GROUND
: FUSE
: PILOT LAMP
: MAGNETIC RELAY
: FAN MOTOR
: SWING MOTOR
: PRINTED CIRCUIT BOARD
: THERMISTOR
: CONNECTOR
: OPERATION SWITCH
: VARISTOR
: TERMINAL STRIP
:PROTECTIVE EARTH
CAUTION
OUTDOOR
INDOOR
3D058246D

Table of Contents

Related product manuals