EasyManua.ls Logo

Daikin VRV-W IV - Main Components in the Electrical Component Box; Selecting an Installation Location

Daikin VRV-W IV
60 pages
To Next Page IconTo Next Page
To Next Page IconTo Next Page
To Previous Page IconTo Previous Page
To Previous Page IconTo Previous Page
Loading...
RWEYQ8+10T7Y1B
VRV-W IV System Air Conditioner
4P347465-1A 2013.04
Installation and operation manual
7
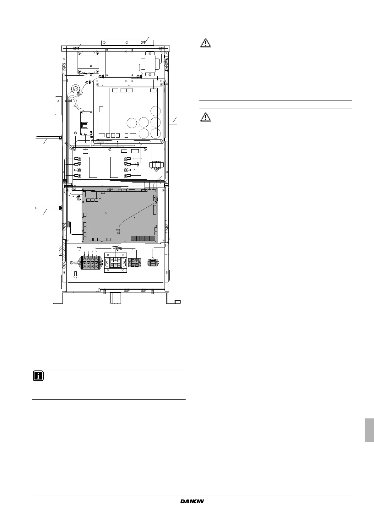
5.3. Main components in the electrical component box
1 X1M: Power supply connection terminal: Main terminal
block which allows easy connection of field wiring for
power supply.
2 X2M: Pump operation output terminal.
3 X3M: Connection of interlock circuit terminal.
4 A1P Main PCB
5 X1M Terminal on main PCB: Terminal block for
transmission wiring.
6 Cable tie mountings: the cable tie mountings allow to fix
the field wiring with cable ties to the electrical component
box to ensure pull relief.
6. Selecting an installation location
This unit does not have specifications for outdoor installation. The
unit must be installed indoors (example: machine room, …) Always
install it in a room (machine room, etc.).
Paying attention to the conditions mentioned below, select the place
for installation with prior approval of customer.
The foundation is strong enough to support the weight of the unit
and the floor is flat to prevent vibration, noise generation and to
have sufficient stability.
Consider the space required for refrigerant piping work when
installing. Refer to "7. Dimensions and service space" on
page 8.
There is no danger of fire due to leakage of inflammable gas.
The equipment is not intended for use in a potentially explosive
atmosphere.
The piping length between the outdoor unit and the indoor unit
may not exceed the allowable piping length. See "9. Refrigerant
pipe size and allowable pipe length" on page 10.
Be sure that sufficient precautions are taken, in accordance with
the applicable legislation, in case of refrigerant leakage.
Take care that in the event of a water leak, water cannot cause
any damage to the installation space and surroundings.
Select the location of the unit in such a way that the sound
generated by the unit does not disturb anyone, and the location
is selected according the applicable legislation.
Locations with airflow and ventilation holes capable of
dissipating heat from the machine and where the ambient
temperature around the outdoor unit is between 0 and 40°C and
the humidity does not exceed 80%.
INFORMATION
For more details refer to the wiring diagram of the units.
The wiring diagram is located on the inside of the electrical
component box.
2
1
4
5
U VW
3
6
6
6
6
6
6
6
WARNING
Be sure to provide for adequate measures in order to
prevent that the unit be used as a shelter by small animals.
Small animals making contact with electrical parts can
cause malfunctions, smoke or fire. Please instruct the
customer to keep the area around the unit clean and clear.
This is a class A product. In a domestic environment this
product may cause radio interference, in which case the
user may be required to take adequate measures.
CAUTION
Appliance not accessible to the general public, install it in a
secured area, protected from easy access.
This appliance is intended to be used by expert or trained
users in shops, in light industry and on farms, or for
commercial use by lay persons.
4P347465-1A.book Page 7 Monday, August 5, 2013 2:26 PM

Table of Contents

Related product manuals