EasyManua.ls Logo

Danfoss VLT 3032 - Page 58

Danfoss VLT 3032
158 pages
Print Icon
To Next Page IconTo Next Page
To Next Page IconTo Next Page
To Previous Page IconTo Previous Page
To Previous Page IconTo Previous Page
Loading...
57MG.30.A7.02 - VLT
®
is a registered Danfoss trademark
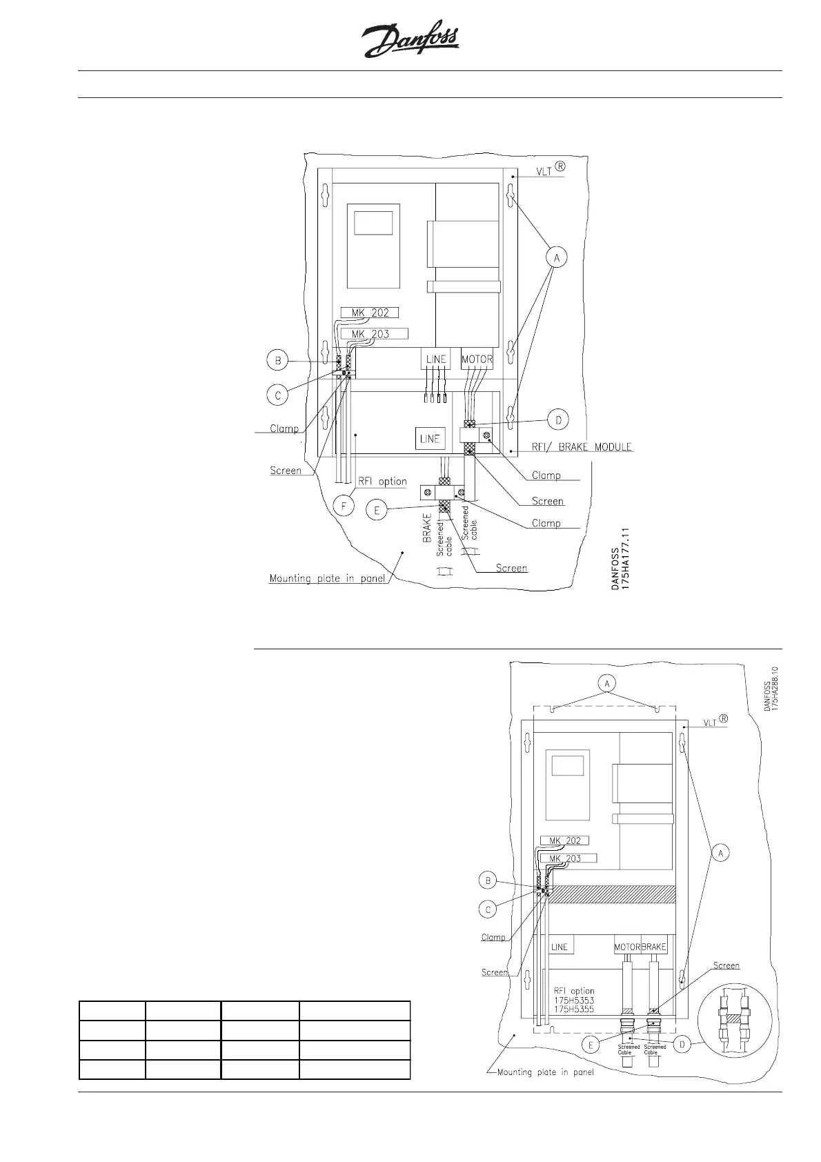
EMC installation
VLT 3002-3008
VLT 3011-3052
Hole size Cable ø Screen ø Danfoss code No.
PG 21 17.0 - 20.0 12.5 - 17.5 175H2882
PG 29 22.0 - 26.0 15.0 - 21.0 175H2883
PG 36 30.0 - 32.0 24.0 - 30.0 175H2884
Artisan Technology Group - Quality Instrumentation ... Guaranteed | (888) 88-SOURCE | www.artisantg.com

Other manuals for Danfoss VLT 3032

Related product manuals