EasyManua.ls Logo

Dantherm Cooling PS060100B - PS035 XXX-XX Series Mounting; PS060 XXX-XX Series Mounting

Default Icon
14 pages
Print Icon
To Next Page IconTo Next Page
To Next Page IconTo Next Page
To Previous Page IconTo Previous Page
To Previous Page IconTo Previous Page
Loading...
Page 8 of 14
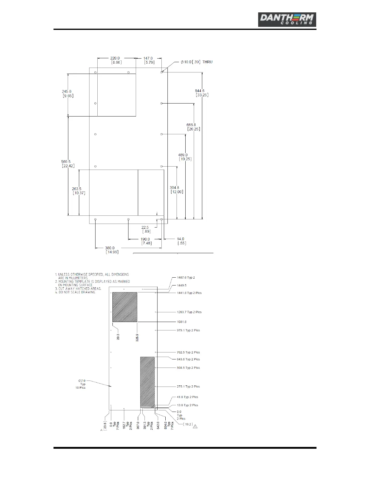
5.2.5. Cut Out & Mounting Information PS035XXX-XX series
5.2.6. Cut Out & Mounting Information PS060XXX-XX series
Dantherm Cooling , Inc. Heat Exchanger Operating & Maintenance Manual
HexFlow Pinnacle Series Product Information Manual

Related product manuals