EasyManua.ls Logo

Del ozone Eclipse-1 - 4 D Trouble Shooting

Del ozone Eclipse-1
8 pages
Print Icon
To Next Page IconTo Next Page
To Next Page IconTo Next Page
To Previous Page IconTo Previous Page
To Previous Page IconTo Previous Page
Loading...
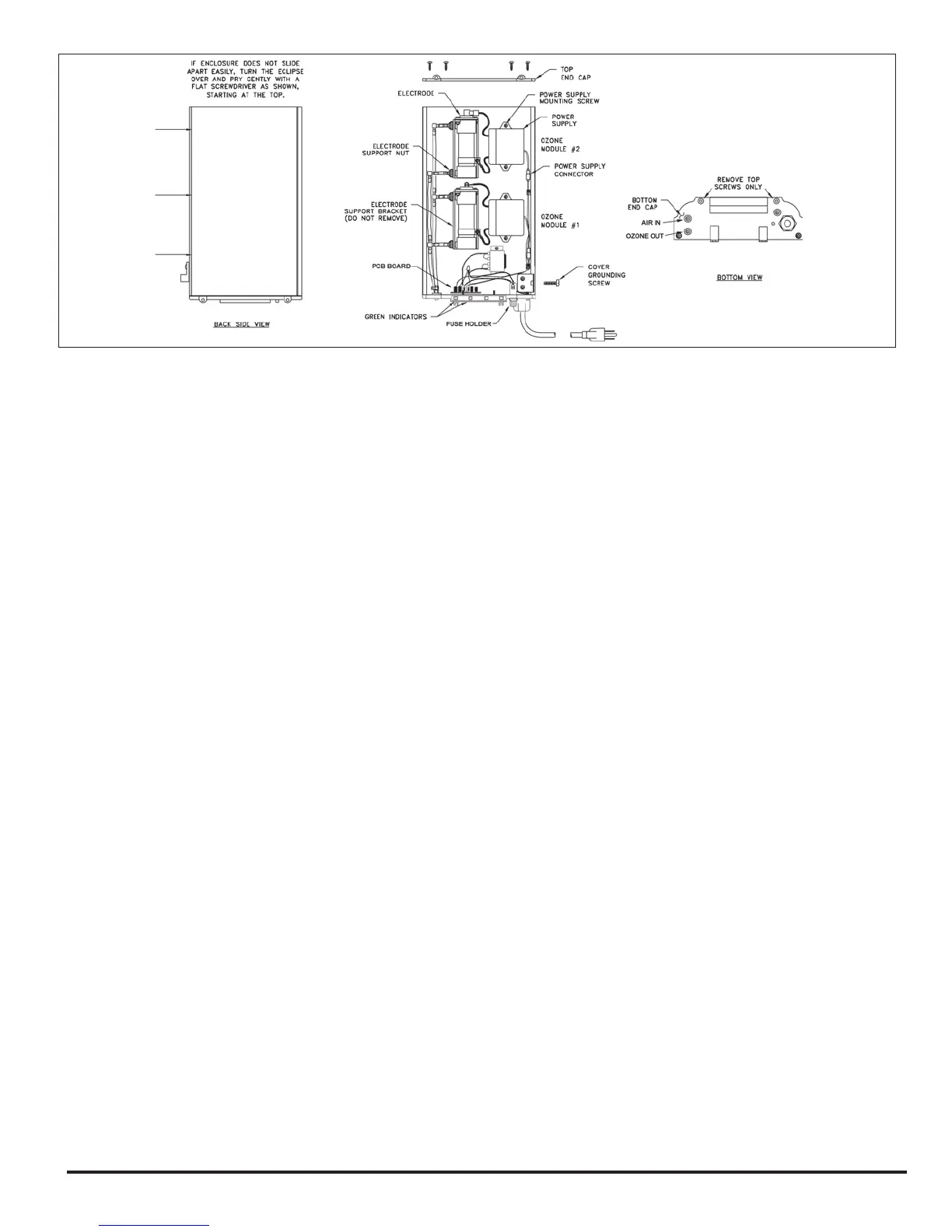
Figure 4 Component Locations (Eclipse-2 Shown). Additional transformers are used on 240V models, which are not shown in this diagram.
4D. Trouble Shooting
Knowledge of electrical applications is required for trouble shoot-
ing. Contact a certied electrician if you are unsure of your ability to
service the equipment. Improper servicing will void generator war-
ranty. If any condition persists, call DEL at 800-676-1335, ext. 248
for technical assistance or visit our website at www.delozone.com.
Symptom: “LED Indicator” not lit when pool system is on.
1. No power to the ozone generator from the power source:
a. Check circuit breaker at the power distribution box.
b. Check for loose connections or wiring breaks from the
power distribution box to the generator.
c. Fuse in the unit has blown and needs to be replaced.
2. G.F.C.I. has tripped.*
a. Check power cord and reset G.F.C.I. (*If G.F.C.I. or
breaker continues to trip after reset, call 1-800- 676-
1335, ext 248 for technical assistance).
Symptom: Flowmeternotindicatingow.
1. Injector not supplying adequate suction.
a. Checkpumpandensurewaterisowingthroughinjector.
b. Check by-pass valve and adjust if necessary to obtain proper
pressure differential in order to reestablish suction.
c. Check that injector is plumbed in the right direction.
d. Ensure that there is no debris clogged inside the injector.
2. Tubing is impaired.
a. Check for kinks or clogs.
b. Check for cracks or cuts.
c. Check connections.
d. Check that the check valve is installed with the arrow
pointing towards the injector.
e. Be sure that the check valve has not become fouled with
debris. Disconnect the ozone tubing from the ozone gen-
erator and the check valve. With the pump running, test
the end of the ozone tubing with your thumb, and feel
for suction. Wash your hands immediately afterwards
to remove any residual nitric acid that may be on the
tubing.Ifthereissufcientsuctionwithoutthecheck
valve, replace the check valve with a new one.
Symptom: LED Indicator has turned red.
a. Thismeansthatthepowersupplyofthatspecicozone
module is no longer drawing power and needs to be
replaced. Inside the Eclipse the modules are numbered
from the bottom up. So on an Eclipse 4, the top ozone
module is #4 and the bottom ozone module is #1. These
correspond to the LED ozone indicators at the bottom of
the Eclipse, numbered 1-4 from left to right. This should
tell you which ozone module has failed. Refer to section
4C3 for instructions on how to replace the correspond-
ingozonemodule.Ifyouarehavingdifculties,contact
Del’s service department at 1(800)676-1335 ext. 248.
Note: it is normal for the LED indicators to shine red for
several seconds as the system powers up. As long as they
turn back to green several seconds after startup. This is
caused by the electronics charging up to create ozone.
Symptom: Ozone tubing becomes yellow/brown and brittle.
a. The high concentration of ozone created by the DELZONE
Eclipse family of corona discharge ozone generators ,
as well as environmental conditions like UV sunlight will
tend to deteriorate the supplied ozone tubing. This is
normal and acceptable, as long as the tubing doesn’t
become cracked and leak. Because of this, DEL rec-
ommends replacing the ozone supply tubing and your
check valve every year. More ozone tolerant tubing is
available through DEL, however, it is still required that
you change your check valve annually.
Symptom: Cant get ball to stay on centerline of owmeter.
a. The flowmeter provided is a general tool to setup
owtotheozonegenerator.Flowwillvarydepending
on pressures across the injector, and therefore can
be affectedby thingssuchas lter orstrainer load-
ing. The ozone generator’s efciencyis optimized at
near the centerline of the ow meter. However, the
DELZONE Eclipse ozone generator will still perform
quitewellatowsaboveandbelowtherecommended
range. As long as the ball is moving, and not stuck
on the bottomof theowmeter, you should bene.
DELZONE
®
Eclipse 1, 2, & 4 Corona Discharge Ozone Generators
4

Related product manuals