EasyManua.ls Logo

Delabie TEMPOMATIC - Page 3

Delabie TEMPOMATIC
Print Icon
To Next Page IconTo Next Page
To Next Page IconTo Next Page
To Previous Page IconTo Previous Page
To Previous Page IconTo Previous Page
Loading...
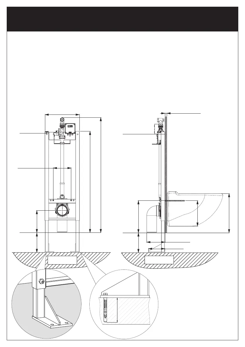
180-230
350
1020
225
1160
0-200
0
s
1000
s
350kg/m
3
166
26-130mm
325
157-177
0-200
0
s
1000
s
350kg/m
3
410
220
Mini
KIT 1 : 547005
80 mini

Other manuals for Delabie TEMPOMATIC

Related product manuals